315.11 Vakuumtoaletter

Bruksområder
Vakuumtoaletter er velkjente fra skip og fritidsboliger der avløpsvannet føres til tette tanker. Etter hvert som teknologien og spesielt lydnivået er blitt bedre, er det stadig mer vanlig å benytte vakuumtoaletter (og urinaler) i vanlige boliger og større bygg, også der hvor det er kommunalt avløpsanlegg. Det er ingen restriksjoner for bruk av systemene i bygg. Systemene egner seg spesielt godt ved ombygninger og rehabiliteringsarbeider. Der det er mulig å benytte gratis gravitasjonskraft og det ikke er problemer med fremføringsveier, er vanlige toaletter å foretrekke, både prismessig og driftsmessig. Norge er et land med nok vann og et godt utbygd offentlig avløpsnett med gode renseanlegg som gjør bruk av vakuumtoaletter mindre aktuelt enn vanlige toaletter i boliger. Vakuumtoaletter i boliger vil derfor være mest aktuelle der det er vanskelig og kostbart å komme frem med store selvfallsledninger. I næringsbygg kan det også være grunn til å vurdere vakuumløsninger, spesielt ved installasjoner der uttrekksledninger ligger høyere enn toalettene. Vakuumtoalettene bruker kun en liter vann pr. spyling, og er derfor svært miljøvennlige.
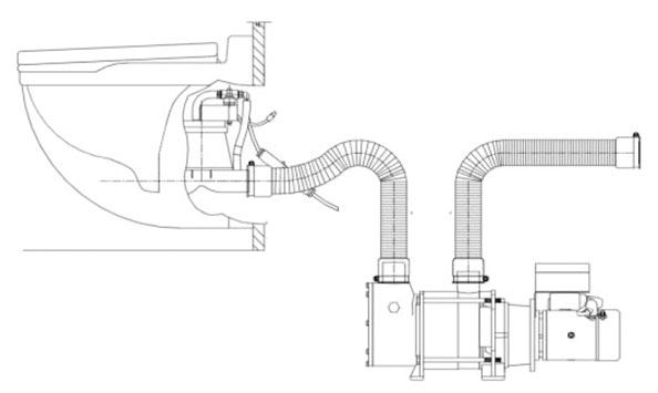
Systemet

Figur 1. Systemet. Kilde: Jets AS.
Vakuumtoalettet ser ut som et helt vanlig porselenstoalett, kan monteres på gulv eller vegghengt, og har en vakuumventil som åpnes når man trykker på spyleknappen. Samtidig starter en vakuumpumpe, som gjerne plasseres rett bak toalettet eller et sentralt sted for sammenkopling av flere toaletter.
Pumpen har tre funksjoner:
- Kverner kloakken fra toalettet
- Skaper vakuum i sugeledningen
- Pumper ut kloakken til en tank eller til avløpssystemet
Det er to hovedsystemer:
- Med konstant, kontinuerlig vakuum i nettet – brukes ved mer enn fire toaletter
- Med start av pumpen ved utspyling fra toalettet – brukes ved små anlegg med færre enn fire toaletter
Installasjon
Rørinstallasjonen har en sugeside fram til vakuumpumpen og en trykkside fra pumpen til kloakkanlegget.
Til sugesiden brukes 50 mm standard PP-rør uten 90 graders bend (settes sammen av to stk. 45 graders bend). Rørene klamres ved skjøter og ellers ett klammer pr. meter. Samlet lengde skal ikke overstige 12 meter. Sugerørene legges med fall 1:100. Dersom det ikke er mulig, skal det lages en «transportlomme» ca. midt på strekket dersom det er over 6 meter langt. Sugeledningen skal aldri legges med stigning til pumpen. Monteringen til sugesiden på pumpen skal skje med en «omvendt svanehals» med en høyde på maksimum 80 cm. Unngå bruk av andre slanger enn de som følger med fra leverandøren av systemet.

Figur 2. Alternative føringer for sugeledningen.
Til trykksiden brukes 32 mm PEH-rør med faste koplinger tilpasset rørtypen. Maksimum løftehøyde er som regel 2 meter for en vanlig pumpe, men kan økes helt opp til 5 meter (sjekk aktuell pumpe). Minste løftehøyde skal være 32 cm. Det monteres en spesiell tilbakeslagsventil ved løftehøyder over 1 meter. Trykkledningen kan ha 90 graders bend, og skal normalt ikke overstige 30 meters totallengde (kontakt i så fall leverandøren). Klammeravstanden bør være maks. 2 meter, helst 1 meter. Er det fare for hevertvirkning, bør rørdimensjonen økes til 50 mm eller monteres en spesiell lufteventil på det høyeste punktet på ledningen.
Fordeler med vakuumtoaletter:
- Miljøvennlige med redusert vannforbruk og kloakkmengde
- Små rørdimensjoner (50 mm og 32 mm) som gir enklere fremføringsveier
- Ikke avhengig av fall og gravitasjon
- Kan løfte kloakken inntil 5 meter
- Uavhengig av innlagt vann
- Kjent rør- og installasjonsteknologi for rørleggeren
Ulemper med vakuumtoaletter:
- Dyrere i anskaffelse og drift
- Støy (avhengig av plassering)
Vakuumtoalett må ikke forveksles med pumpe-, kverntoalettsystemer som baseres på maling av kloakken før den pumpes ut i systemet med en minste vannmengde på 6 liter pr. spyling.

Figur 3. Kilde: Jets AS.