Gå til hovedinnhold
Gå til footer
uSkinned
Menu
Publikasjoner
Kontakt
Nyhetsbrev
Nemitek
Se våre andre nettsider:
Logg inn
Expand Search
På denne side
Publikasjoner
Rørhåndboka Pluss 2025
Expand sub pages Publikasjon 1
Forord
Expand sub pages Kapittel
1
Forord
Kontakt
Expand sub pages Kapittel
3.1
Hovedkontor
3.2
Avdeling
3.3
Opplæringskontorer
3.4
Styret
310. Sanitærinstallasjoner
Expand sub pages Kapittel
Aktuelle leverandører innenfor dette området
4.1
310.00 Prosjektering av sanitæranlegg
4.2
310.01 Vannkvalitet
4.3
310.02 Vannrensing – drikkevann
4.4
310.04 Vannforbruk
4.5
310.05 Vannmålere og montering av disse
4.6
310.21 Bransjeregler for nybygg og rehabilitering
4.7
310.22 Bransjeregler for service
4.8
310.23 ABC for dokumentering ved riktig installasjon – samsvarserklæring
4.9
310.24 Samvarserklæring servicejobb
4.10
310.31 Søknadspliktige sanitærinstallasjoner
311. Bunnledninger for sanitærinstallasjoner
Expand sub pages Kapittel
Aktuelle leverandører innenfor dette området
5.1
311.01 Jordingsmuffe og jording på rørnett
5.2
311.02 Forgreninger, høyder, oppstikk og etterarbeider
5.3
311.03 Dimensjoner, lufting og stakepunkter
5.4
311.04 Vannledninger i kjellergulv
5.5
311.05 Oppheng av bunnledning
5.6
311.06 Radonsperre og oppstikk
312. Ledningsnett for sanitærinstallasjoner
Expand sub pages Kapittel
6.1
312.03 Dimensjonering og lufting av ventilerte og uventilerte avløpsledninger
6.2
312.04.1 Dimensjonering av vannledninger
6.3
312.04.2 Tilstrekkelig vannmengde og tilfredsstillende trykk
6.4
312.05 Regneark for enkel dimensjonering av vann- og avløpsledninger
6.5
312.06 Trykktapsnomogram for vannledninger
6.6
312.07 Rørkvaliteter – vannledninger
6.7
312.08 Rørkvaliteter – avløpsledninger
6.8
312.09 ABS-avløpsrør
6.9
312.10 Våtromsgjennomføringer i gulv
6.10
312.11 Gjennomføringer i våtromsvegger
6.11
312.15 Eldre vannledninger – reparasjon og tilknytninger
6.12
312.16 Støy fra rør – generelt
6.13
312.17 Støy fra avløpsrør
6.14
312.18 Støy fra vannledninger
6.15
312.31 Tetthetsprøving av vann- og avløpsledninger innomhus
6.16
312.40 Lufting av avløpsledninger
6.17
312.41 Avløp fra klosetter
6.18
312.42 Avløp fra utstyr - uten lufting
6.19
312.43 Avløp fra utstyr med lufting
6.20
312.45 Strømningsforhold i avløpsrør
6.21
312.50 Rør-i-rør-system – generelt
6.22
312.51 Tegning av rør-i-rør-system 1
6.23
312.52 Tegning av rør-i-rør-system 2 – forslag til symboler
6.24
312.53 Fordelerskap for rør-i-rør-system - lekkasjesikring
6.25
312.54 Utskifting av innerrør i rør-i-rør-system
6.26
312.70 Ventetider og tappetemperatur for kaldt- og varmtvann
6.27
312.71 Sirkulasjonsledninger 1
6.28
312.72 Sirkulasjonsledninger 2
6.29
312.73 Varmekabler for varmtvannsrør
6.30
312.74 Varmeoverføring fra varmtvannsrør til kaldtvannsrør
6.31
312.81 Takavvanning
6.32
312.82 Innvendig taknedløp – dimensjonering
314. Armaturer for sanitærinstallasjoner
Expand sub pages Kapittel
7.1
314.01 Blandebatterier
7.2
314.02 Sviktende vanntilførsel
7.3
314.03 Plassering av ventiler
7.4
314.06 Vanninntak, inntaksskap og etterarbeider
7.5
314.08 Automatiske lekkasjestoppere
7.6
314.08.1 Sjekkliste for montering av automatisk lekkasjestopper
7.7
314.09 Lekkasjestoppere i nærings- og publikumsbygg, hoteller og institusjoner
7.8
314.10 Alternative løsninger for vannskadesikring av toalettrom
7.9
314.11 Berøringsfrie armaturer
7.10
314.21 Utette armaturer - lekkasjemengder
7.11
314.45 Tilbakestrømming i vannledninger
7.12
314.46 Tilbakestrømming i vannledninger – valg av sikring etter NS 1717
7.13
314.47 Plassering av tilbakeslagsventiler i boliger
7.14
314.48 Tilbakeslagsventil, reduksjonsventil og ekspansjonskar
7.15
314.50 Hagevanning
315. Utstyr for sanitærinstallasjoner
Expand sub pages Kapittel
8.1
315.01 Servant
8.2
315.02 Veggmonterte klosetter med skjulte sisterner
8.3
315.03 Bidet
8.4
315.04 Vaskekar og utslagsvask
8.5
315.05 Brannskap og branntromler
8.6
315.06 Badekar, dusjbatteri og tappekran
8.7
315.07 Urinal og drikkefontene
8.8
315.08 Kjøkkenbenk med oppvaskmaskin
8.9
315.09 Sammenfatning av høyder på sanitærutstyr
8.10
315.11 Vakuumtoaletter
8.11
315.20 Spikerslag for utstyr
8.12
315.21 Feste av vegghengte toaletter
8.13
315.30 Plassbehov – alminnelig sanitærutstyr
8.14
315.40 Plassbehov – sanitærrom for bevegelseshemmede
8.15
315.41 Universell utforming
8.16
315.43 Vannlåser
8.17
315.45 Sluk
8.18
315.46 Slukrenner
8.19
315.47 Hjørnesluk
8.20
315.51 Feilsøking på element i standard vannvarmere
8.21
315.52 Lavtrykksvannvarmere
8.22
315.53 Høytrykksvannvarmere (varmtvannsberedere)
8.23
315.54 Høytrykksvannvarmere – indirekte oppvarming
8.24
315.55 Varmt forbruksvann fra fjernvarmeanlegg
8.25
315.60 Hydroforanlegg – generelt
8.26
315.61 Hydroforanlegg, anlegg for sugehøyder mindre enn 7 meter
8.27
315.62 Hydroforanlegg, anlegg for større sugehøyder enn 7 meter
8.28
315.65 Trykkøkningsanlegg i boliger
8.29
315.81 Avfallskverner
8.30
315.91 Våtromskabiner
316. Isolasjon av sanitærinstallasjoner
Expand sub pages Kapittel
9.1
316.01 Isolering av innvendige sanitæranlegg
9.2
316.05 Isolering mot legionella
9.3
316.11 Isolering av utvendige sanitæranlegg
320. Varmeanlegg, generelt
Expand sub pages Kapittel
10.1
320.00 Prosjektering av vannbåret varmeanlegg
10.2
320.01 Huskeliste for dimensjonering, valg og plassering av komponenter
321. Ledningsnett, Varmeanlegg
Expand sub pages Kapittel
11.1
321.02 Dimensjonering av varmeledninger
11.2
321.05 Krav til lekkasjesikring av varme- og kuldeinstallasjoner
11.3
321.10 Lufting av varme- og kjøleanlegg
11.4
321.11 Luft i vannbårne anlegg – Vakuumavgasser
11.5
321.12 Vakuumutluftere
11.6
321.31 Vannbehandling av vannbårne anlegg - generelt
11.7
321.32 Vannkvalitet i lukkede anlegg – luft, korrosjon og sedimentering
11.8
321.33 Vannkvalitet i lukkede anlegg – analyse og vannbehandlingsmetoder
324. Armatur, varmeanlegg
Expand sub pages Kapittel
12.1
324.01 Montering av shuntventiler
12.2
324.02 Shuntventiler – typer og plassering
12.3
324.03 Varmelåser
12.4
324.04 Dynamiske reguleringsventiler – innreguleringsfrie anlegg
12.5
324.10 Innregulering
12.6
324.21 Energimålere
325. Utstyr, varmeanlegg
Expand sub pages Kapittel
13.1
325.01 Effekt- og energibehov – overslagsberegninger
13.2
325.02 Energikrav etter TEK17
13.3
325.03 Energimerking av bygg – 1
13.4
325.04 Energimerking av bygg – 2
13.5
325.05 Energimerking av bygg – 3
13.6
325.06 Energimåling for anlegg med varmepumper
13.7
325.07 Radiatorer 1 – størrelser og plassering
13.8
325.08 Radiatorer – typer og koblinger
13.9
325.09 Konvektorer
13.10
325.10 Viftekonvektorer og varmluftsvifter
13.11
325.11 Gulvvarmeanlegg – argumenter for valg
13.12
325.12 Gulvvarmeanlegg – kvalitetssikring av prosjektering og utførelse
13.13
325.13 Kombinasjon ettrørsanlegg – torørsanlegg og gulvvarme
13.14
325.15 Ettrørsanlegg for vannbåren varme
13.15
325.18 Snøsmelting og gateoppvarming 1
13.16
325.19 Snøsmelting og gateoppvarming 2
13.17
325.20 Prosjektering og uttak av pumper i energianlegg
13.18
325.21 Montering av pumper
13.19
325.22 Merking av pumper
13.20
325.23 Energibruk i varmeprodukter
13.21
325.31 Montering av trykkekspansjonskar
13.22
325.32 Trykkekspansjonskar – overslagsberegninger
13.23
325.33 Sikkerhetsventiler og sikkerhetsledninger
13.24
325.35 Ekspansjonskar med kompressor
13.25
325.36 Trykkekspansjonskar med pumpe
13.26
325.40 Varmepumper – typer og regelverk
13.27
325.41 Akkumuleringstank i varmeanlegg – koblingsalternativer
13.28
325.42 Sammenkobling av varmepumpe og andre varmekilder
13.29
325.43 Varmepumpe for rom- og/eller tappevannsoppvarming
13.30
325.44 Prinsipper for alternativ energibruk for gulvvarmeanlegg
13.31
325.45 Fjernvarme I
13.32
325.46 Fjernvarme II
13.33
325.47 Varmevekslere
13.34
325.48 Prinsipper for alternative koblinger til fjernvarme
13.35
325.49 Akkumuleringstank til varmepumpe – dimensjonering
13.36
325.51 Røkgassanalyse
13.37
325.52 Lagring av olje utendørs
13.38
325.53 Lagring av olje innendørs
13.39
325.54 Tilkopling av oljetanker
13.40
325.55 Sanering av oljetanker
13.41
325.56 Biofyringsolje
13.42
325.61 Røykkanaler
13.43
325.71 Biobrenselanlegg 1
13.44
325.72 Biobrenselanlegg 2
13.45
325.74 Solenergianlegg 1
13.46
325.75 Solenergianlegg 2
13.47
325.82 Dimensjonering av energibrønner til væske/vann-varmepumper
13.48
325.81 Energibrønner til væske/vann-varmepumper
326. Isolasjon – varmeanlegg
Expand sub pages Kapittel
Aktuelle leverandører
14.1
326.01 Isolasjonsmaterialer for rør
14.2
326.02 Isolasjonstykkelser – varmeanlegg
330–390. Andre anleggstyper og branngjennomføringer
Expand sub pages Kapittel
Aktuelle leverandører
15.1
332.01 Sprinkleranlegg – generelt/lover og regelverk
15.2
332.02 Sprinkleranlegg – myndighetskrav
15.3
332.03 Sprinkleranlegg – anleggstyper
15.4
332.04 Sprinkleranlegg – kontrollventilsett
15.5
332.05 Sprinkleranlegg – rørnett
15.6
332.06 Sprinkleranlegg – sprinklerhoder
15.7
332.07 Sprinkleranlegg – plassering av sprinklerhoder
15.8
332.08 Sprinkleranlegg – galvaniserte rør i sprinkleranlegg
15.9
332.10 Vanntåkeanlegg
15.10
332.11 Vanntåkeanlegg i boliger
15.11
332.20 FG-regler for automatiske slokkesystemer
15.12
332.25 Innvendig inspeksjon av sprinklerrør
15.13
338.01 Brannsikkerhet og branngjennomføringer
15.14
338.02 Branngjennomføringer 2 – tettemetoder
15.15
338.03 Branngjennomføringer 3 – brannisolering med mineralull
15.16
338.04 Branngjennomføringer 4 – brannisolering med cellegummi
15.17
338.05 Manuelt slokkeutstyr
15.18
340.01 LPG – gassanlegg for boliger
15.19
340.02 Gassrør av plast
15.20
340.03 Gassanlegg i boliger og fritidshus
15.21
340.05 Gassvettregler
15.22
345.00 Huskeliste trykkluftanlegg
15.23
345.01 Trykkluftanlegg – ledningsnett
15.24
345.02 Trykkluftanlegg – armatur
15.25
345.03 Trykkluftanlegg – aktuelle rør og slanger
15.26
345.10 Forskrift om trykkpåkjent utstyr (FTPU) eller Pressure Equipment Directive (PED)
15.27
360.01 Boligventilasjon I
15.28
360.02 Boligventilasjon II – dimensjonering og tegning
15.29
360.03 Kanaler/ventilasjonsrør
15.30
360.11 Varmegjenvinning i småhus I – statiske gjenvinnere
15.31
360.12 Varmegjenvinning i småhus II – sykliske gjenvinnere
15.32
360.13 Varmegjenvinning i småhus III – varmepumpe for avtrekksluft i bad
15.33
370.00 Kjøling av bygg – generelt
15.34
370.01 Kjøling av bygg – passivhus
15.35
370.02 Passiv mekanisk kjøling – frikjøling
15.36
370.03 Kombinert passiv og aktiv mekanisk kjøling
15.37
370.04 Isvannsanlegg
15.38
370.05 Frostmedier – typer og egenskaper
15.39
370.06 Frostmedier – blandingsforhold og påfylling
15.40
370.11 Rør i isvannsanlegg
15.41
370.16 Kondensisolering av rør i isvannsanlegg
15.42
x332.02 Sprinkleranlegg – krav, godkjenning, klassifisering og standarder
430. Elektriske arbeider
Expand sub pages Kapittel
16.1
430.01 Hva kan en rørlegger utføre av elektriske installasjoner
16.2
430.02 Instruert personell
16.3
430.03 Krav til jording
16.4
430.04 Utskiftning av hovedvanninnlegg fra kobber til plast
16.5
430.05 Vannrør som fører strøm
16.6
430.06 El-ulykker og strømskader
16.7
430.07 Rapportering av el-ulykker og strømskader
16.8
430.08.1 Elektrisk tilkobling av varmtvannsberedere
16.9
430.081.2 Sjekkliste for service av bereder
16.10
430.081.3 Sjekkliste for utskiftning/nyinstallering av bereder
16.11
430.08.2 Brannfarlige beredere
731. Utvendig sanitæranlegg
Expand sub pages Kapittel
17.1
731.01 Sikkerhet i grøfter
17.2
731.02 Fall og høydeforhold
17.3
731.03 Tilkobling til hovedvannledning
17.4
731.04 Tilkobling til hovedavløpsledning
17.5
731.05 Plassering av rør i grøft
17.6
731.06 Utvendige kummer
17.7
731.07 Utvendig stengeventil
17.8
731.08 Prøving av utvendige avløpsledninger
17.9
731.09 Prøving av utvendige vannledninger
17.10
731.10 Avløp fellessystem (AF-ledning) og separering av avløpssystemer
17.11
731.11 Stikkledninger – generelt
17.12
731.12 Alternative føringsveier for vanninnlegg
17.13
731.20 Utslipp av avløpsvann fra hus og hytter
17.14
731.21 Jordrenseanlegg i spredt bebyggelse, infiltrasjon 1
17.15
731.22 Jordrenseanlegg i spredt bebyggelse, infiltrasjon 2
17.16
731.23 Jordrenseanlegg i spredt bebyggelse, våtmarksanlegg
17.17
731.24 Separate avløpsanlegg – slamavskillere og fordelingskummer
17.18
731.24.1 Minirenseanlegg for avløpsvann
17.19
731.25 Separate avløpsanlegg
17.20
731.26 Høydeberegninger – overvann
17.21
731.27 Høydeberegninger – spillvann
17.22
731.28 Olje- og bensinutskillere
17.23
731.29 Fettutskillere
17.24
731.30 Nivellering 1 – utstyr
17.25
731.31 Nivellering 2 – høydemålinger
17.26
731.35 Koordinatangivelser og GPS-måling
17.27
731.41 Rørgrøfter – omfyllingsmasser i ledningssonen
17.28
731.51 Rør- og kummaterialer for stikkledninger
17.29
731.52 Avløpspumper
17.30
731.55 Symboler og angivelser – VA-anlegg
17.31
731.61 Infeksjoner og vaksinasjon
17.32
731.71 Overvannshåndtering 1
17.33
731.72 Overvannshåndtering 2
17.34
731.73 Overvannshåndtering 3
17.35
731.74 Sirkulær disponering av vann
17.36
731.75 Oversvømmelser i kjellere
17.37
731.91 Påvisning av utvendige vannledninger - utførelse og ansvar
910. Bedrift, helse, miljø, og sikkerhet
Expand sub pages Kapittel
18.1
910.01 Sjekkliste for HMS på byggeplass/arbeidssted
18.2
910.02.1 Melding om ulykke eller nesten ulykke
18.3
910.02.2 Bedriftens registreringsplikt ved skader og sykdom
18.4
910.02.3 Arbeidstakers plikter i det organiserte verne- og miljøarbeidet i virksomheten
18.5
910.02.4 Kritikkverdige forhold på arbeidsplassen med varslingsskjema
18.6
910.03 Brannfarlige og giftige gasser og stoffer – kriterier og merking
18.7
910.04 Vernearbeid på byggeplassen
18.8
910.05 Trykkluft og sveisearbeid
18.9
910.06 Behandling av gassflasker
18.10
910.07 Legionella i sanitæranlegg
18.11
910.07.1 Sjekkliste for vurdering av risiko vedr. legionella og for planlegging av tiltak
18.12
910.08 Legionella i kjøleanlegg
18.13
910.09 Skålding
18.14
910.10 Sikker jobbanalyse
18.15
910.11 Entrepriseformer
18.16
910.12 Avhendingslov – Krav til dokumentasjon av de fleste typer jobber på fast eiendom
18.17
910.13 Aktuelle lover, forskrifter og veiledninger
18.18
910.14 Plan- og bygningsloven (Pbl) og forskrifter
18.19
910.15 Byggteknisk forskrift – TEK17
18.20
910.16.1 Arbeid i høyden
18.21
910.16.2 Arbeid i grøfter NYTT!
18.22
910.16.3 Arbeid i kummer og trange rom NYTT!
18.23
910.16.4 Personlig verneutstyr NYTT!
18.24
910.17 Avfallshåndtering og farlig avfall
18.25
910.18 Bruk av stillas
18.26
910.19 Varme arbeider
18.27
910.20 Aktuelle norske standarder
18.28
910.21.1 NS 3420 Beskrivelsestekster for bygg, anlegg og installasjoner, del I
18.29
910.21.2 NS 3420 Beskrivelsestekster for bygg, anlegg og installasjoner, del II
18.30
910.22 Bygningsdelstabell og posteringsstandard
18.31
910.25 NS 8405 og varsling – veiledning til varslingsskjema
18.32
910.26 Varslingsskjema
18.33
910.27 NS 8407 og NS 8417
18.34
910.28 Kontrakter og formularer
18.35
910.29 FDV-dokumentasjon og samsvarserklæring
18.36
910.31 Akkordseddel
18.37
910.41 Kvalitetssikring - definisjoner/terminologi
18.38
910.42 CE-merking av produkter
18.39
910.43 Varer levert av kunden
18.40
910.44 Ti gode grunner for å unngå «rør»
18.41
910.45 Kundens overprøving av faglig råd
18.42
910.46 TFM-merkesystem for bygninger
18.43
910.47 Effektiv (trimmet) bygging
18.44
910.50 Garantier og reklamasjoner
18.45
910.56 Vannskader
18.46
910.57 Reparasjons- og rehabiliteringsarbeider
18.47
910.61 Gjennomføring av svenneprøven i rørleggerfaget
18.48
910.71 BIM
18.49
910.81 Tekniske rom for varme- og sanitæranlegg – størrelse og innredning
18.50
910.91.1 Asbest – et livsfarlig materiale
18.51
910.91.2 Asbest – hvor finner vi det?
18.52
910.92 Råd og tips for oppdrag i forbrukerforhold
18.53
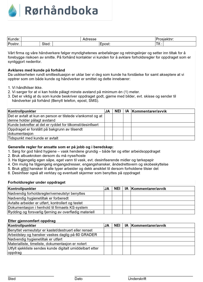
910.97.1 Smittevern på arbeidsplassen NYTT!
18.54
910.97.2 Trygghet for kunde og rørlegger - Sjekkliste Sikker Rørlegger NYTT!
18.55
910.93 Råd og tips for oppdrag mellom næringsdrivende
920. Utregner vekter og mål
Expand sub pages Kapittel
19.1
920.01 Lengdemål og omkretser
19.2
920.02 Flatemål (areal)
19.3
920.03 Rommål (volum, kubikkmål)
19.4
920.04 Overflatemål av legemer
19.5
920.06 Trekanter og vinkler
19.6
920.10 Egenvekt og vekt
19.7
920.22 Omregningstabell for effekt energi og trykk
19.8
920.42 Monteringsmål for isolerte rør
930. Symboler, enheter, omregningstabeller
Expand sub pages Kapittel
20.1
930.20 Prefikser, greske bokstaver og symboler
20.2
930.21 Størrelser, symboler og enheter
20.3
930.50 Rør- og ventilsymboler o.l. for varme- og sanitæranlegg
20.4
930.51 Utstyrssymboler for sanitæranlegg
20.5
930.55 Tegnesymboler for utvendige VA-anlegg
940. Føringsveier, rør og vannskadesikring
Expand sub pages Kapittel
Aktuelle leverandører
21.1
940.00 Føringsveier – generelt
21.2
940.01 Åpne rørføringer
21.3
940.02 Rør i vegger og etasjeskiller
21.4
940.03 Skjulte, tilgjengelige rør
21.5
940.04 Problemløsere
21.6
940.05 Hull i bjelker og stendere
21.7
940.06 Sjakter
21.8
940.08 Innkassing av rør
21.9
940.09 Rør i himlinger
21.10
940.10 Vannskadesikring - generelt
21.11
940.11 Vannskadesikre løsninger 1
21.12
940.12 Vannskadesikre løsninger 2
21.13
940.13 Vannskadesikring – næringsbygg
21.14
940.14 Vannskadesikring av kjøkken
21.15
940.16 Korrosjon
21.16
940.21 Stålrør for gjenging - sorte og galvaniserte
21.17
940.22 Stålrør – sveiste
21.18
940.23 Stålrør – sømløse
21.19
940.24 Stålrør – lette
21.20
940.26 Stålbend og flenser
21.21
940.31 Kobberrør
21.22
940.32 Skjøting av kobberrør
21.23
940.35 Bøying av kobberrør 1
21.24
940.36 Bøying av kobberrør 2
21.25
940.41 Definisjoner av byggtyper – boliger
21.26
940.50 Plastrør – generelt
21.27
940.51 Plastrørtyper
21.28
940.55 PEX-rør
21.29
940.60 Andre rørtyper – generelt
21.30
940.70 Skjøtemetoder – generelt
21.31
940.71 Gjengede rørdeler
21.32
940.72 Metallkoblinger for ulike rørtyper
21.33
940.73 Lodding
21.34
940.74 Pressrør og deler – kvaliteter og bruksområder
21.35
940.75 Rillerør og deler – bruksområder
21.36
940.77 Sveising med beskyttelsesgass
21.37
940.78 Sveising av PE- og PP-rør
21.38
940.82 Trykkprøving med luft
21.39
940.90 Klamring og oppheng – generelt
21.40
940.91 Festemateriell
21.41
940.92 Klammer og oppheng
21.42
940.93 Klammeravstander
21.43
940.94 Fastklammer
21.44
940.95 Glideklammer
950. Personvern og informasjonssikkerhet
Expand sub pages Kapittel
22.1
950.01 Personopplysninger – krav og rutiner for den enkelte medarbeider
22.2
950.02 Personvern og kontrolltiltak på arbeidsplassen
Førstehjelpsider
Expand sub pages Kapittel
Rørhåndboka 2005–2017
Expand sub pages Publikasjon 1
Rørhåndboka 2005 (PDF)
Expand sub pages Kapittel
Kap. A Utvendig sanitæranlegg 731
Kap. B Bunnledninger 311
Kap. C Ledningsnett, sanitær 312
Kap. D Armatur, sanitær 314
Kap. E Utstyr, sanitær 315
Kap. F Isolering, sanitæranlegg 316
Kap. G Ledningsnett, varmeanlegg 321
Kap. H Armatur, varmeanlegg 324
Kap. I Utstyr, varmeanlegg 325
Kap. K Andre anleggstyper 330-390
Kap. L Bedrift, helse, miljø og sikkerhet
Kap. M Utregninger, tabeller, symboler
Rørhåndboka 2006 (PDF)
Expand sub pages Kapittel
Kap. A Utvendig, generelt sanitæranlegg 731
Kap. B Bunnledninger 311
Kap C. Ledningsnett 312
Kap. D Armatur, sanitær 314
Kap. E Utstyr, sanitær 315
Kap. F Isolering, sanitæranlegg 316
Kap. G Isolering, sanitæranlegg - Ledningsnett,varmeanlegg 316-321
Kap. H Ledningsnett,varmeanlegg - Armatur, varme 321-324
Kap. I Armatur, varme - Utstyr, varme 324-325
Kap. K Andre anleggstyper- Gass og trykkluft- Kulde - Utstyr, luftbehandling 332-340-350-360
Kap. L Utstyr, luftbehandling 360- Bedrift, helse, miljø, sikkerhet L01-L61, M01
Kap. M Utregninger, tabeller, symboler M02-M82
Rørhåndboka 2008 (PDF)
Expand sub pages Kapittel
Kap A. Utvendig, generelt sanitæranlegg 731-310
Kap B. Sanitæranlegg generelt, Bunnledninger 310-311
Kap. C Bunnledninger, Ledningsnett 311-312
Kap. D Ledningsnett 314
Kap. E Armatur, sanitær., Utstyr, sanitær 315
Kap F. Utstyr, sanitær 315
Kap. G Sanitær armatur 315
Kap. H Utstyr, sanitær,. Isolering, sanitæranlegg 315-316
Kap. I Isolering, sanitæranlegg., Ledningsnett,varmeanlegg., Armatur, varme ., Utstyr, varme 316- 321-324-325
Kap. K Utstyr, varme 325
Kap. L Andre anleggstyper 332-360., Bedrift, helse, miljø og sikkerhet L01-L14
Kap. M Bedrift, helse, miljø og sikkerhet L15-M82
Rørhåndboka 2009 (PDF)
Expand sub pages Kapittel
Kap. A Utvendig sanitæranlegg 731/Sanitærinstallasjoner, generelt 310
Kap. B Bunnledninger 311
Kap. C Ledningsnett, sanitær 312
Kap. D Armatur, sanitær 314
Kap. E Utstyr, sanitær 315
Kap. F Isolering, sanitæranlegg 316
Kap. G Ledningsnett, varmeanlegg 321
Kap. H Armatur, varmeanlegg 324
Kap. I Utstyr, varmeanlegg 325
Kap. K Andre anleggstyper 330-390
Kap. L Bedrift, helse, miljø og sikkerhet
Kap. M Utregninger, tabeller, symboler
Rørhåndboka 2010 (PDF)
Expand sub pages Kapittel
Kap. A Utvendig sanitæranlegg 731/Sanitærinstallasjoner, generelt 310
Kap. B Bunnledninger 311
Kap. C Ledningsnett, sanitær 312
Kap. D Armatur, sanitær 314
Kap. E Utstyr, sanitær 315
Kap. F Isolering, sanitæranlegg 316
Kap. G Ledningsnett, varmeanlegg 321
Kap. H Armatur, varmeanlegg 324
Kap. I Utstyr, varmeanlegg 325
Kap. J Isolasjon av varmeinstallasjoner 326
Kap. K Andre anleggstyper 330-390
Kap. L Bedrift, helse, miljø og sikkerhet
Kap. M Utregninger, tabeller, symboler
Rørhåndboka 2011 (PDF)
Expand sub pages Kapittel
Kap. A Utvendig, generelt sanitæranlegg 731-310
Kap. B Bunnledninger 311
Kap C. Ledningsnett 312
Kap. D Armatur, sanitær 314
Kap. E Utstyr, sanitær 315
Kap. F Isolering, sanitæranlegg 316
Kap. G Isolering, sanitæranlegg - Ledningsnett,varmeanlegg 316-321
Kap. H Ledningsnett,varmeanlegg - Armatur, varme 321-324
Kap. I Armatur, varme - Utstyr, varme 324-325
Kap. J Isolasjon av varmeinstallasjoner 326
Kap. K Andre anleggstyper- Gass og trykkluft- Kulde - Utstyr, luftbehandling 332-340-350-360
Kap. L Utstyr, luftbehandling 360- Bedrift, helse, miljø, sikkerhet L01-L61, M01
Kap. M Utregninger, tabeller, symboler M02-M82
Rørhåndboka 2012 (PDF)
Expand sub pages Kapittel
Kap A. Utvendig, generelt sanitæranlegg 731-310
Kap B. Sanitæranlegg generelt, Bunnledninger 310-311
Kap. C Bunnledninger, Ledningsnett 311-312
Kap. D Ledningsnett 312
Kap. E Armatur, sanitær., Utstyr, sanitær 314-315
Kap F. Utstyr, sanitær 315
Kap. G Sanitær armatur 315
Kap. H Utstyr, sanitær,. Isolering, sanitæranlegg 315-316
Kap. I Isolering, sanitæranlegg., Ledningsnett,varmeanlegg., Armatur, varme ., Utstyr, varme 316- 321-324-325
Kap. J Utstyr, varme 325
Kap. K Utstyr, varme., Isolasjon av varmeinstallasjoner., Andre anleggstyper 325-326-332
Kap. L Andre anleggstyper 332-360., Bedrift, helse, miljø og sikkerhet L01-L14
Kap. M Bedrift, helse, miljø og sikkerhet L15-M82
Rørhåndboka 2013 (PDF)
Expand sub pages Kapittel
Kap. A Utvendig, generelt sanitæranlegg 731-310
Kap. B Bunnledninger 311
Kap. C Ledningsnett, Armatur, sanitær 312-314
Kap. D Armatur, sanitær., Sanitær, utstyr 314-315
Kap. E Sanitær, utstyr 315
Kap. F Isolering, sanitæranlegg 316
Kap. G Ledningsnett, varmeanlegg 321
Kap. H Armatur, varme 324
Kap. I Utstyr, varme 325
Kap. J Isolasjon av varmeinstallasjoner 326
Kap. K Andre anleggstyper., Gass og trykkluft., Kulde., Luftbehandling 332-344-350- 360
Kap. L Bedrift, helse, miljø, sikkerhet L01-L61
Kap. M Utregninger, tabeller, symboler M01-M82
Rørhåndboka 2014 (PDF)
Expand sub pages Kapittel
Kap. A Sanitæranlegg generelt nr 310-311
Kap. B Ledningsnett nr 312
Kap. C Armatur, sanitær nr 314-320
Kap. D Ledningsnett, varmeanlegg nr 321-325
Kap. E Isolasjon av varmeinstallasjoner nr 326-430
Kap. F Utvendig sanitæranlegg nr 731
Kap. G Bedrift, helse, miljø, sikkerhet nr 910-940
Rørhåndboka 2015 (PDF)
Expand sub pages Kapittel
Kap. A Sanitærinstallasjoner nr 310
Kap. B Bunnledninger nr 311
Kap. C Ledningsnett, sanitær nr 312
Kap. D Armatur, sanitær nr 314
Kap. E Utstyr, sanitær nr 315
Kap. F Isolering, sanitæranlegg nr 316
Kap. G Varmeanlegg, generelt nr 320
Kap. H Ledningsnett, varmeanlegg nr 321
Kap. I Armatur, varmeanlegg nr 324
Kap. J Utstyr, varmeanlegg nr 325
Kap. K Isolasjon av varmeinstallasjoner nr 326
Kap. L Andre anleggstyper og branngjennomføringer nr 330-390
Kap. M Elektriske arbeider nr 430
Kap. N Utvendig sanitæranlegg 731
Kap. O Bedrift, helse, miljø og sikkerhet 910
Kap. P Utregninger, vekter og mål 920
Kap. Q Symboler, enheter, omregningstabeller 930
Kap. R Rørtyper og skjøtemetoder 940
Rørhåndboka 2016 (PDF)
Expand sub pages Kapittel
Sanitærinstallasjoner - 310
Bunnledninger - 311
Ledningsnett, sanitær - 312
Armatur, sanitær - 314
Utstyr, sanitær - 315
Isolering, sanitæranlegg - 316
Varmeanlegg, generelt - 320
Ledningsnett, varmeanlegg - 321
Armatur, varmeanlegg - 324
Utstyr, varmeanlegg - 325
Isolasjon av varmeinstallasjoner - 326
Andre anleggstyper og branngjennomføringer - 330-390
Elektriske arbeider - 430
Utvendig sanitæranlegg - 731
Bedrift, helse, miljø og sikkerhet - 910
Utregninger, vekter og mål - 920
Symboler, enheter, omregningstabeller - 930
Rørtyper og skjøtemetoder - 940
Rørhåndboka 2017 (PDF)
Expand sub pages Kapittel
Innholdsfortegnelse
Sanitærinstallasjoner - 310
Bunnledninger - 311
Ledningsnett, sanitær - 312
Armatur, sanitær - 314
Utstyr, sanitær - 315
Isolering, sanitæranlegg - 316
Varmeanlegg, generelt - 320
Ledningsnett, varmeanlegg - 321
Armatur, varmeanlegg - 324
Utstyr, varmeanlegg - 325
Isolasjon av varmeinstallasjoner - 326
Andre anleggstyper og branngjennomføringer - 330-390
Elektriske arbeider - 430
Utvendig sanitæranlegg - 731
Bedrift, helse, miljø og sikkerhet - 910
Utregninger, vekter og mål - 920
Symboler, enheter, omregningstabeller - 930
Rørtyper og skjøtemetoder - 940
Prenøk
Expand sub pages Publikasjon 1
1
Lover og forskrifter, veiledninger og tabeller (rev. 2015)
Expand sub pages Kapittel
1.2
Kjelanlegg
1.5
Damp - Innføring
1.6
Virkningsgrad på kjelanlegg - definisjoner og terminologi
1.7
Plan- og bygningsloven
1.7.1
Teknisk forskrift 2010
1.8
Strømpriser og tariffer
1.9
Lønnsomhetsberegninger i VVS-faget
1.10
Praktisk EL-teknikk for VVS-faget
1.12
SI-målesystem og det tekniske målesystem
1.13
Omregningstabeller for energienheter
1.14
Forskrift om svovelinnhold i ulike oljeprodukter
1.15
Oppstilling og utrustning av kjeleanlegg
1.15.1
Vedlegg til 1.15
1.17
Nyttige formler
1.18
Enklere regulering av utslipp til luft for fyringsanlegg
1.19
Orientering om Forskrift for trykkpåkjent utstyr
1.20
Definisjoner - tekniske begreper
1.21
NS - en orientering om standarder som gjelder varmesystemer i bygninger
1.22
Oversikt over norske standarder som berører faget
1.23
Energi og miljø - en global utfordring
2
Energi og effektbehov – Dimensjonering (rev. 2015)
Expand sub pages Kapittel
2.0
Varighetsdiagram - grunnlag og teori
2.1
Hva er graddag og graddagstall? - hva kan de brukes til?
2.3
ENØK krever kjennskap til byggets effekt- og energibehov
2.4
Dimensjonerende effektbehov i bygg NYTT!
2.5
Normtall for effekt- og energibehov i bygninger
2.6
Varighetsdiagram - Bruk til dimensjonering av varmesentraler
2.7
Klimadata - En innføring
3
Distribusjonsnett (rev. 2015)
Expand sub pages Kapittel
3.1
Gass som brensel
3.2
Bioenergi - En oversikt
3.3
Tekniske data for fyringsolje
3.4
Varmepumper - Varmeopptak fra naturens varmekilder
3.5
Solvarme
3.6
Energibrønner i fjell
4
Energisentralen – Kjeler, varmepumper, varmeveksler/undersentral (rev. 2015-16)
Expand sub pages Kapittel
4.1
Oljetanker
4.2
Forbrenningsanlegg for biobrensler
4.3
Oljedysen en viktig detalj i en oljebrenner
4.4
Korrosjon på røkgassiden i oljefyrte sentralvarmekjeler
4.5
Trykkløse (åpne) ekspansjonssystemer
4.6
Trykkekspansjonsanlegg - hva bør du vite?
4.7
Varmepumper - Grunnlag
4.8
Varmepumper - Anvendelse
4.9
Varmepumper - Oppvarmingssystem med varmepumpe
4.10
Samkjøring av kjeler i energisentraler
4.11
Kjelkoblinger og økonomisk drift av varmesentraler
4.12
Kjelkoblinger og økonomisk drift av varmesentraler del II
4.14
Tilfeldig kraft i mindre sentralvarmeanlegg
4.15
Kompressorer i kulde- og varmeanlegg
4.16
Elektrokjeler for vannbårne anlegg
4.17
Riktig valg av varmeveksler
4.18
Skorsteiner
4.19
Skorsteiner og rehabilitering
4.20
Olje- og gassfyrte kjeler
4.21
Gass til oppvarming
4.22
Ekspansjonssystemer for større anlegg - beregninger, definisjoner, ord og uttrykk
4.23
Ekspansjonssystemer for større anlegg - aktuelle systemer
4.24
Ekspansjonssystemer for større anlegg - råd og tips
4.25
Oljebrenneren: slik fungerer den - del I
4.26
Oljebrenneren: slik fungerer den - del II
4.27
Varmepumper - hydrauliske koblinger og automatisering
4.29
Biobrenselanlegg for eneboliger
4.30
Mellomstore biobrenselanlegg 0,5–5 MW
4.31
Utstyr i gassanlegg
4.32
Kundesentraler for fjernvarme - Systemløsninger og dimensjonering
4.33
Energisentraler for villa og småhus
4.34
Lagring og overføring av trepellets og flis
4.36
Biologiske fyringsoljer - Et alternativ til fossile fyringsoljer
4.38
Plassbehov for energisentraler i bygg
5
Distribusjon – Systemer og komponenter, rørnett, ventiler, pumper, medier
Expand sub pages Kapittel
5.0
Mengderegulering i vannbarne anlegg – Innføring
5.1
Mengderegulering i vannbårne anlegg – Utførelse og beregning
5.2
Rehabilitering av varmeanlegg
5.3
Hastigheter og trykktap
5.4
Frostmedier
5.5
Shuntventiler - del I
5.6
Shuntventiler - del II
5.7
Korrosjon på vannsiden i sentralvarmeanlegg
5.8
Vannbehandling i sentralvarmeanlegg
5.9
Vannbehandling i sentralvarmeanlegg - metoder
5.10
Filtre i vannbårne anlegg
5.11
Luft i vannbårne anlegg
5.12
Sirkulasjonspumper i varme- og kjøleanlegg
5.13
Hastighetsregulering av sirkulasjonspumper i sentralvarmeanlegg
5.14
Isolasjon og isolasjonsmaterialer
5.15
Dampanlegg - Prosjektering, montering og drift
5.16
Sikkerhetsventiler for vannbarne anlegg - Terminologi, definisjoner, ventiltyper
5.17
Sikkerhetsventiler for vannbårne anlegg - krav
5.18
Sikkerhetsventiler for vannbårne anlegg - Anbefalinger
5.19
Praktisk isolering av varme og kulderør
5.20
Brannsikring av rørgjennomføringer
5.21
Montering og festeanordning for rør
5.22
Materialvalg i rørsystemer
5.23
Pumpetype og lover gjeldende for sirkulasjonspumper
5.24
Temperaturvalg i vannbårne systemer
5.25
Varmeanlegg - Radiatoranlegg
5.26
Preisolerte rørsystemer
5.27
Rør-i-rør-systemer for tappevann
5.28
Stengeventiler i vannbårne energianlegg
5.29
Preisolerte ledninger - Leggemetoder
5.30
Tilbakeslagsventiler i vannbårne energianlegg
5.31
Trykkuavhengige reguleringsventiler
6
Varme og energioverføring – Radiatorer, konvektorer, batterier, tak-/gulvvarme, gatevarme
Expand sub pages Kapittel
6.0
Varmeavgivelse og hydraulisk balanse i sentralvarmeanlegg
6.1
Radiatorventiler - dimensjonering
6.2
Termostatstyrte radiatorventiler
6.3
Vannbåren gulvvarme - Energisparende oppvarmingssystem
6.4
Vannbåren gulvvarme - Systemvalg og reguleringsprinsipper
6.5
Vannbåren gatevarme
6.6
Vannbåren strålevarme
6.7
Gass til oppvarming
6.8
Varmeanlegg for boliger - del I og II
6.9
Gulvvarme ved ulike gulvkonstruksjoner
6.11
Vannbåren varme i baderomsgulv
7
Spesielle anlegg – Sanitæranlegg, gjenvinning, hetolje
Expand sub pages Kapittel
7.0
Varmtvannsforsyningsanlegg - type, systemer og komponenter
7.1
Dimensjonering av vannvarmere
7.2
Energigjennvinning fra kjøle- og fryserom
7.3
Varmtvannssirkulasjon
7.4
Væskekoblede gjennvinningsanlegg – begreper og dimensjoner
7.5
Væskekoblede gjennvinningsanlegg – planlegging, drift og vedlikehold
7.6
Varmegjennvinning fra varmt avløpsvann
7.7
Dimensjonering av frikjøling
7.8
Energiokønomisk drift av trykkluftsanlegg
7.9
Legionella og sanitæranlegg
8
Dokumentasjon – Egenkontroll, internkontroll, sertifikater
Expand sub pages Kapittel
8.0
Sjekkliste ved valg av sentralvarmekjeler og oljebrennere
8.1
Kontroll og vurderingsskjema varmevekslere
8.2
Radiatorer og konvektorer
8.3
Internkontroll i energisentraler
8.4
Trykkprøving av røranlegg
8.4.1
Vedlegg til 8.4
8.5
Måleteknikk i felten
8.6
Maskinrom og kjelrom
9
Energikilden (Revidert i 2016)
Expand sub pages Kapittel
9.0
Varmtvannstemperatur og ENØK
9.1
Praktisk arbeidsmiljø for rørleggere
9.2
Lyd fra røranlegg
9.4
Kuldemedier og miljøet
9.5
Forbrenning og miljøet
10
Forvaltning, drift og vedlikehold – Energimåling, oppmåling, ERFA, SD-anlegg
Expand sub pages Kapittel
10.1
Kostnadstall for vannbårne anlegg
10.3
FDV-kostnader i statens bygg
10.5
Vannlekkasjer koster penger
10.6
Koster det å dusje?
10.7
Røykgassanalyse – et viktig ENØK-verktøy
10.8
Vedlikehold og rengjøring av varmevekslere
10.9
Praktiske erfaringer fra ENØK-prosjekter
10.10
Vannsparing er lønnsomt - eksempel fra Hedmark Fylkeskommune
10.12
Energioppfølging – et viktig verktøy i ENØK-arbeidet
10.13
Energimåling i vannbårne anlegg
10.14
Rehabilitering av varmeanlegg
10.15
Lokal måling av trykk og temperatur
10.16
Drifts- og vedlikeholdsinstrukser
Styring og regulering av tekniske anlegg i bygg
Expand sub pages Publikasjon 1
Datamaskiner og mikroprosessorer
Expand sub pages Kapittel
1.0
Forord og innledning
1.1
Elektriske ledere, halvledere og isolatorer
1.2
Mikroelektronikk og integrerte kretser
1.3
Datamaskinens hovedkomponenter
1.4
Sentralenheten (prosessoren)
1.5
Minnet (hukommelsen)
1.6
Minner av ulike typer
1.7
Inn- og ut-enheter (I/O)
1.8
Kontrollsignal
1.9
Mikroprosessorens arbeidsmåte
1.10
Klokke og klokkesignal
1.11
Krafttilførsel
1.12
Kommunikasjon og databusser
Dataord og datakoder
Expand sub pages Kapittel
2.0
Introduksjon
2.1
Maskinkoder
2.2
Dekadiske desimaltall
2.3
Det binære tallsystem
2.4
Datakoder
2.5
Binærkodet desimaltall – BCD
2.6
Merking av dataord
2.7
Oktal-kode
2.8
HEX og HEXA-desimalkoder
2.9
Tekstkoder og kontrollbits
2.10
Instruksjonskoder
2.11
Programbehandling
2.12
Lav- og høynivå dataspråk
2.13
Høynivå dataspråk
2.14
Operativprogram for datamaskiner/PCer
Logisk algebra med grunnlag for PLS
Expand sub pages Kapittel
3.0
Introduksjon
3.1
Logiske utsagn
3.2
Programmerbare Logiske Styringer
3.3
Logiske kretser
3.4
PLS-programmering
Grunnleggende reguleringsteknikk
Expand sub pages Kapittel
4.0
Introduksjon
4.1
Automatisering
4.2
Definisjoner og normer
4.3
Grunnleggende begreper
4.4
Prosess
4.5
Følere og givere
4.6
Måleverdiomformere og målebroer
4.7
Montasje av måleutstyr
4.8
Kontroll- og reguleringsmetoder
4.9
Reguleringsobjekt
4.10
Transportforsinkelse og dødtid
4.11
Tidskonstant
4.12
Reguleringssløyfer uten transportforsinkelse
4.13
Reguleringssløyfer med transportforsinkelse
4.14
Dynamisk tidsforsinkels
4.15
Hysterese
4.16
Diskontinuerlig av-på-regulering
4.17
Diskontinuerlig flytende regulering
4.18
Reguleringsfunksjoner
4.19
Integralvirkningen
4.20
Derivatvirkningen
4.21
Framgangsmetoder ved automatisering
Databasert styring og regulering
Expand sub pages Kapittel
5.0
Introduksjon
5.1
Autonome regulatorer og styreenheter
5.2
Digital diskontinuerlig regulering
5.3
Digital kontinuerlig regulering
5.4
Databaserte regulatorer
5.5
Regulatorer med autotuning
5.6
Adaptive regulatorer
5.7
Fuzzyregulator
5.8
Regulatorer til luftbehandling og energisystemer
5.9
A/D-omformer
5.10
D/A-omformer
5.11
Digitale regulatorer
5.12
Databaserte regulatorer i praksis
5.13
Funksjonsblokker
5.14
Kaskaderegulering
5.15
Kompensering
5.16
Sekvensregulering av utganger
5.17
Tidsprogram og av/på-styringer
5.18
Program for optimal start/stopp
5.19
Optimal start/stopp av varmeanlegg
Automatikk- og elektriske tegninger
Expand sub pages Kapittel
6.0
Introduksjon
6.1
Symboler for prinsipp- og elektriske tegninger
6.2
Elektriske skjemaer og tegninger
6.3
Elektrotekniske tegninger i bunden form
6.4
Elektrotekniske tegninger i fri form
6.5
Enlinjeskjema
6.6
Trekking og tilkobling av elektriske kabler
6.7
Skjema og tegninger for et luftbehandlingsanlegg
Uttesting og vedlikehold av automatikk
Expand sub pages Kapittel
7.1
Krav til dokumentasjon
7.2
Kontroll av instrumentering og system
7.3
Prosedyre for uttesting av automatisert anlegg
7.4
Ziegler og Nichols empiriske metoder
7.5
Ettersyn og vedlikehold av automatiserte anlegg
7.6
Tidsintervall for vedlikehold av instrumentering/automatikk
Batterier, vekslere og gjenvinnere
Expand sub pages Kapittel
8.0
Introduksjon
8.1
Varme- og kjølebatterier
8.2
Vern mot frost i vannbatterier
8.3
Platevekslere
8.4
Effekt- og energiberegning av platevekslere
8.5
Varmt forbruksvann
8.6
Gjenvinning av termisk energi ved hjelp av roterende hjul
8.7
Virkningsgraden for gjenvinnere
8.8
Gjenvinning av termisk energi ved hjelp av kryssveksler
8.9
Gjenvinning av termisk energi ved hjelp av vann/væsker
8.10
Elektriske varmebatteri i luftbehandlingsanlegg
Reguleringsventiler
Expand sub pages Kapittel
9.0
Introduksjon
9.1
Reguleringsventilenes enkelte deler
9.2
Ventilhuset
9.3
Ventilspindelen
9.4
Pakninger
9.5
Setet i seteventiler
9.6
Ventilpluggen i seteventiler
9.7
Sleideventiler
9.8
Spjeldventiler
9.9
Kuleventiler
9.10
Ventiler med to løp
9.11
Ventiler med tre løp
9.12
Mengdekarakteristikk for reguleringsventiler
9.13
Ventilenes reguleringsevne
9.14
Reguleringsobjektets statiske karakteristikk
9.15
Ventilautoriteten
9.16
Effektlineær karakteristikk
9.17
Beregning og dimensjonering av ventiler
9.18
Valg av karakteristikk for reguleringsventiler
9.20
Ventilkapasitet og ventilstørrelse
9.21
Termiske strømmer i rør og tanker
9.22
Shunt- og ventilkoblinger
Vifter og pumper
Expand sub pages Kapittel
10.0
Introduksjon
10.1
Luft-/gasstrykket fra vifter
10.2
Hastigheten på luft-/gasstrømmen i kanalene
10.3
Ulike sentrifugalvifter
10.4
Viftenes karakteristiske egenskaper
10.5
Arbeidspunkt og arbeidslinje
10.6
Viftens virkningsgrad
10.7
Viftenes effekt- og energibehov
10.8
Endring av viftenes hastighet
10.9
Variabelt volum (VAV) og trykkregulering
10.10
Økonomi ved regulering av luftmengde
10.11
Regulering av lufttrykk og mengder
10.12
Kalkulasjon av viftemotorens størrelse
10.13
Pumper for sirkulasjon av væsker
10.14
Små og mellomstore pumper
10.15
Trykk- og mengderegulering av pumper
Kjølemaskiner, varmepumper og avfuktere
Expand sub pages Kapittel
11.0
Introduksjon
11.1
Kjølemaskinens virkemåte og grunnprinsipp
11.2
Kjøleprinsippet
11.3
Carnot-prosessen
11.4
Kjøleskapets virkemåte
11.5
Små og mindre fryse- og kjøleanlegg
11.6
Større kjøleanlegg for produksjon av isvann
11.7
Avfukting ved hjelp av kjøleanlegg
11.8
Varmepumper
Elektriske motorer og generatorer
Expand sub pages Kapittel
12.0
Introduksjon
12.1
Generatoren
12.2
Elektromotoren
12.3
Elektriske motorer for vekselstrøm
12.4
Synkron elektromotor
12.5
Asynkrone elektromotorer
12.6
Kortslutningsmotoren
12.7
En-faset asynkron elektromotor
12.8
En-faset asynkron elektromotor med sentrifugalbryter
12.9
En-faset asynkron elektromotor med kapasitor
12.10
Elektromotor med ytterrotor
12.11
Tre-faset asynkron elektromotor
12.12
Asynkronmotorens hastighet
12.13
Startforhold for asynkrone elektromotorer
12.14
Asynkronmotorens momentforhold
12.15
Sikringer og motorvern
12.16
Asynkronmotorens effektfaktor
12.17
Asynkronmotorens virkningsgrad
12.18
Temperaturer i elektromotoren
12.19
Asynkrone elektromotorer med børster og sleperinger
12.20
Normerte asynkrone elektromotorer
12.21
Toleranse for spenning og frekvens
12.22
Ulike driftsarter
12.23
Starttransformator eller stjerne-trekantstart
12.24
Regulering av elektromotorens hastighet
12.25
Omkobling av antall poler i stator
12.26
Separate statorviklinger
12.27
Endring av hastigheten ved bruk av spenningsregulering
12.28
Endring av hastigheten ved bruk av transformator
12.29
Endring av hastigheten ved bruk av tyristor
12.30
Endring av hastigheten ved bruk av frekvensomformer
12.31
Elektromotorens strøm- og momentforhold
12.32
Regulering av hastigheten for pumper og vifter
Grunnleggende krav til inneklima
Expand sub pages Kapittel
13.0
Introduksjon
13.1
Luftens kjemiske sammensetning
13.2
Krav til kvaliteten på luften innendørs
13.3
Menneskekroppens temperaturregulering
13.4
Menneskets aktivitetsnivå og bekledning
13.5
Krav til ventilering av bygninger
13.6
Måling av temperaturer innendørs
13.7
Lufttemperatur og relativ fuktighet innendørs
Energifordeling og forbruk i bygninger
Expand sub pages Kapittel
14.0
Introduksjon
14.1
Klimadata for Norge
14.2
Energi for å oppveie varmetapet fra bygninger
14.3
Energiforbruket til varmt forbruksvann
14.4
Energiforbruket til ventilasjon
14.5
Belysning i boliger og bygninger
14.6
Installert elektrisk effekt til belysning
Databasert driftskontroll
Expand sub pages Kapittel
15.0
Introduksjon
15.1
Automatiseringsgraden
15.2
Automatiseringsnivået
15.3
Bruk og betjening av driftskontrollsystemet (SD-anlegget)
15.4
Automatikk og instrumentering
15.5
Regulatorer og undersentraler
15.6
Bussteknologi og datanett
15.7
Dataprotokoller
15.8
Driftssentralen i kontrollanlegget (SD-anlegget)
15.9
Funksjonstabell
15.10
Datasikkerhet
15.11
Merking av system og komponenter
15.12
Leveranseomfang og ansvar
Litteratur
Expand sub pages Kapittel
16.1
Litteraturhenvisninger
VVS-TV
Expand sub pages Publikasjon 1
Foredrag og seminarer
Expand sub pages Kapittel
1.1
Ny Byggsakforskrift (DiBK – Des. 16)
1.2
Vannskadesikkerhet i næringsbygg (Sintef/Gjensidige/Norconsult – Jan. 17)
1.3
Bygningsautomasjon (Fagskolen – Mars 17)
1.4
Vannbehandling i varme- og kjøleanlegg (GK – Apr. 17)
1.5
Akustikk i VVS-prosjektering (Brekk og Strand/Swegon - Mai 17)
1.6
Arendalsuka - relevante foredrag (Aug. 2017)
1.7
TEK17 seminaret (Sept. 2017)
1.8
Effektive tekniske boligkomplekser? (Norconsult - Okt. 17)
1.9
Driftskonferansen 2017 (Okt. 2017)
1.10
Seminar på NTNU (Okt. 17)
1.11
VA/VVS-møteplass 2017 (Okt. 17)
1.12
VVS-dagene på NTNU (Nov. 2017) - dag 1
1.13
VVS-dagene på NTNU (Nov. 2017) - dag 2
1.14
Materialbruk i røranlegg (Nov. 17)
1.15
Frokostseminar - Passivhus og ZEB - Campus Evenstad (Des. 17)
1.16
Ole Larmerud snakker om bransjen og dens utfordringer (Des. 17)
1.17
Tørre fakta om tørr luft - seminar (Miljøhuset GK - Feb. 18)
1.18
Design og utførelse av kanalnett og BestVent (Norconsult - Apr. 18)
1.19
Fagseminar om sorptiv kjøling (Multiconsult - Apr. 18)
1.20
"Fra 5 til 3 rør - Enklere varme" (Juni 18)
1.21
Fagseminar om sjakter (Multiconsult - Okt. 18)
1.22
Byggherrenes scene på VVS-dagene (Okt. 18)
1.23
Trøndersk VVS-dag 2018 (nov. 18)
1.24
Kontraktsrett - Prosjektering og salg i virtual reality (Des. 18)
1.25
Solstrandkonferanse 2019 - Del I (feb. 19)
1.26
Solstrandkonferanse 2019 - Del II (feb. 19)
1.27
Frokostseminar: Vannskadesikkerhet (mars 19)
1.28
Automatisering (mars 19)
1.29
Hvordan unngå tap av rettigheter? ved Arne Sørsdahl og Erik Gåskjønli (apr. 19)
1.30
Brannsikkerhet i bygg ved Stefan Andersson (mai 19)
1.31
Brannsikkerhet i storkjøkken (juni 19)
1.32
Ventilasjonskjøling - Foredrag på NTNU (aug. 19)
1.33
Tilbakestrømningsbeskyttelse - Frokostseminar (nov. 19)
1.34
DCV-anlegg: hvordan fungerer de? (mai 20)
1.35
DCV- of VAV-anlegg: teknologi og veien videre - Del 2 (mai 20)
1.36
Webinar: Trenger vi befuktning av luften? (aug. 20)
1.37
Webinar: Tappevann i romoppvarming (okt. 20)
1.38
Webinar "VarmtVann 2030" (nov. 20)
1.39
Webinar "Narturlige kuldemedier" (nov. 20)
1.40
Webinar "SvalVent" (jan. 21)
1.41
Webinar - Sprinkler, vanntåke og andre slokkeanlegg (Apr. 21)
1.42
Webinar "Skal vi sertifisere luften?" (6. mai 21)
1.43
Webinar "Boligventilasjon" (juni 21)
1.44
Webinar "Student for en dag" (24. juni 21)
1.45
Webinar "Ventilasjon og brannstrategi" (19. august 21)
1.46
Webinar "Varme boliger" (november 2021)
1.47
Webinar "Miljøvennlig VVS" (desember 2021)
1.48
Webinar "Regler og føringer i VVS-Bransjen" (mars 2021)
1.49
Webinar "EU-Taksonomien" (februar 2022)
1.50
Webinar "Brannsikkerhet i gjennomføringer" (april 22)
Informasjonsvidoer
Expand sub pages Kapittel
2.1
En introduksjon til Rørhåndboka 2017 av forfatter Ole Larmerud - mars 2017
2.2
Presentasjon av Rørhåndboka 321.05 Krav til lekkasjesikring av varme- og kuldeinstallasjoner
2.3
Presentasjon av Rørhåndboka 312.17 Støy fra avløpsrør
2.4
Presentasjon av Rørhåndboka 315.91 Våtromskabiner
2.5
Presentasjon av Rørhåndboka 325.10 Viftekonvektorer og varmluftvifter
2.6
Presentasjon av Rørhåndboka 731.35 Koordinatangivelser og GPS-målinger
2.7
Presentasjon av Rørhåndboka 910.10 Sikker jobbanalyse
2.8
Presentasjon av Rørhåndboka 910.29 Jobbdokumentasjon og samsvarserklæring
2.9
Presentasjon av Rørhåndboka 910.45 Kundens overprøving av faglig råd
2.10
Introduksjon til Rørhåndboka 2018
2.11
Rørhåndboka 2018, blad 312.31 - presentasjon
2.12
Rørhåndboka 2018, blad 312.40 - presentasjon
2.13
Rørhåndboka 2018, blad 312.45 - presentasjon
2.14
Rørhåndboka 2018, blad 312.50 - presentasjon
2.15
Riktig væskekvalitet i væskebårne anlegg - presentasjon (feb. 18)
2.16
Frokostmøte om Rørhåndboka 2018 (feb. 18 - Kuben)
2.17
Ole Larmerud om BricsCAD
2.18
BricsCAD med Martin Andersen, Rørentreprenørene Norge
2.19
BricsCAD med Morten Berg, Cad system center
2.20
Start helt blankt i BricsCAD med Morten Berg, Cad system center
2.21
Hvordan plassere avløpsrør i BricsCAD med Morten Berg, Cad system center
2.22
Plassering av sanitærutstyr i BricsCAD med Morten Berg, Cad system center
2.23
Videreføring av plasseringer av sanitærutstyr i BricsCAD med Morten Berg, Cad system center
2.24
Praktiske eksempler i BricsCAD med Morten Berg, Cad system center
Ventøk
Expand sub pages Publikasjon 1
0
Innholdsfortegnelse, fagkomiteen og forfatterne
Expand sub pages Kapittel
0.0
Innholdsfortegnelse
0.1
Ventøk fagkomité
0.2
Eksterne forfattere
0.3
Tidligere fagkomitemedlemmer
1
Grunnlag
Expand sub pages Kapittel
Aktuelle leverandører
1.1
Fuktig luft - del 1 (Revidert i 2019)
1.2
Fuktig luft - del 2 (Revidert i 2019)
1.3
Økonomi og lønnsomhet
1.4
Beregningsmetoder for lønnsomhet (revidert i 2019)
1.5
Måleenheter (revidert i 2019)
1.6
Inneklima - oversikt over offentlige krav og frivillig praksis
1.7
Oversikt over norske standarder i ventilasjonsfaget
1.8
Praktiske beregningsmetoder for kapasitet, kjøle- og varmebehov
1.9
Plassbehov for ventilasjonsanlegg - teknisk rom
1.10
Plan- og bygningsloven - Praktiske råd ved rehab/ombygging
1.11
Definisjoner - tekniske begreper
1.13
LCC - Livsløpskostnader (revidert i 2019)
1.14
Råd og retningslinjer for prosjektering
1.15
Klassifisering av brann- og eksplosjonsfarlige områder
1.16
Kaldras
2
Systembeskrivelse
Expand sub pages Kapittel
Aktuelle leverandører
2.1
Ventilasjonssystem - oversikt
2.2
Sentral og desentral luftbehandling
2.3
SD/SRO-anlegg
2.4
SD-anlegg - aktuelle frem til utgivelse i 1995
2.5
Lokal vannbåren kjøling
2.6
Brannventilasjon
2.7
Beskyttelsesventilasjon
2.8 Del I
Behovsstyrt ventilasjon - Del I
2.8 Del II
Behovsstyrt ventilasjon - Del II
2.9
Sentralstøvsugeranlegg
2.10
Kjøletak/kjølekonvektorer
2.11
Komponentnummerering
2.12
SD-/SRO-anlegg – Kriterier for valg av anlegg
2.13
Fuktighetskontroll - befuktning
2.14
Luft-luft-varmepumper
2.15
VRV - Kjøling Variable Refrigerant Volume
2.16
Punktavsug
2.18
Røykkontroll i trapperom NYTT!
3
Bruksområde
Expand sub pages Kapittel
Aktuelle leverandører
3.1.1
Ventilasjon av svømmehaller - del I
3.1.2
Ventilasjon av svømmehaller - del II
3.3
Ventilasjon av skoler - undervisningslokaler
3.4
Ventilasjon av restauranter og kjøkken (REVIDERT - 2018)
3.5
Ventilasjon av sveiseverksteder (NYTT 2019!)
3.6
Ventilasjon av maling-, lakk- og plastindustri
3.8
Ventilasjon av høye rom
3.9
Naturlig ventilasjon (REVIDERT I 2019)
3.10
Ventilasjon av tekniske rom
3.11
Ventilasjon av bo- og behandlingssentre
3.12
Ventilasjon av parkeringshus
3.13
Klimatisering av data- og serverrom
3.14
Ventilasjon av frisørsalonger
3.15
Impulsvifter for ventilasjon og røykkontroll av garasjer
3.16
Rene rom
3.17
Ventilasjon av bensinstasjoner
3.18
Ventilasjon av bilverksteder
3.19
Ventilasjon av kontorer
3.20
Ventilasjon av møterom
3.21
Boligventilasjon
3.23
Ventilasjon i laboratorier
3.24
Ventilasjon av fyrrom og maskinrom for kuldeanlegg
3.25
Boligventilasjon - praktisk anvendelse
3.26.1
Ventilasjon i sykehus - del 1
3.26.2
Ventilasjon i sykehus - del 2
3.26.3
Ventilasjon i sykehus - del 3 - Operasjonsstuer
3.26.4
Ventilasjon i sykehus - del 4 - Isolatrom
3.26.5
Ventilasjon i sykehus - del 5
4
Luftbehandlingsutstyr
Expand sub pages Kapittel
Aktuelle leverandører
4.1
Luftinntak og avkast
4.2
Partikkelfiltre for vanlig ventilasjon (REVIDERT 2019)
4.3
Filter og filterøkonomi - del 2
4.4
Ventilasjonsbatteri - Praktiske forhold
4.6
Vifter - generell orientering
4.7
Takaggregater
4.8
Lyddempere
4.9
Luftbehandlingsaggregater (NYTT 2019!)
4.10
Luftinntak og fuktproblemer (NYTT 2019!)
4.11
Kammervifter - fordeler og ulemper (REVISJON 2017)
4.12
Batterigjenvinnere for ventilasjonsanlegg
4.13
Luftavfuktning
4.14
Varmegjenvinnere/varmevekslere Del 1 (NYTT! 2018)
4.14.1
Roterende gjenvinnere (NYTT! 2018)
4.14.2
Plategjenvinnere (NYTT 2018)
4.14.3
Batterigjenvinnere (NYTT 2018)
4.14.4
Kammergjenvinnere (NYTT 2018)
4.14.5
Heatpipegjenvinnere (NYTT 2018)
4.14.6
Varmepumper (NYTT 2018)
4.14.7
Omluft (NYTT 2018)
5
Distribusjon
Expand sub pages Kapittel
Aktuelle leverandører
5.1
Kanaler - praktisk utforming NYTT! (2017)
5.2
Isolasjon i luftbehandlingsanlegg (REVISJON 2017)
5.3
Rengjøring av ventilasjonsanlegg
5.4
Isvannssystemet (REVIDERT I 2020)
5.5
Kanaler - materialer og oppheng (REVISJON 2017)
5.6
Innregulering av ventilasjonsanlegg (REVIDERT 2017)
5.7
Kjøling i ventilasjonsanlegg - direkte ekspansjon
5.8
Kanaler - et effektivt distribusjonssystem for luft (REVISJON 2018)
5.9
Trykkfohold i bygninger og luftbevegelser
5.10
Ventilasjonskanaler i grunnen
5.11
Merking av ventilasjonsanlegg
6
Luftfordelingsutstyr
Expand sub pages Kapittel
Aktuelle leverandører
6.1
Ventiltyper og plassering – Omrøringsventilasjon
6.2
Ventiltyper og plassering – Fortrengningsventilasjon
6.3
Innreguleringsspjeld og faste målestasjoner
6.4
Praktiske råd vedrørende luftbevegelse i rom ved komfortventilasjon
6.5
Høytsittende lavimpuls tilluftsenheter
6.6
Spjeld og kanaler med brannmotstand
6.7
Elektriske motorer og utstyr
6.8
Fan-coilapparater anvendelse og dimensjonering
6.9
Hvorfor benytte luftporter
6.10
Frekvensomformere
6.11
Dysekanaler - tilluftsenhet
6.12
Poseventilasjon - tekstilkanaler
6.13
Kombibafler
6.14
EC-motoren til bruk for viftedrift
7
Funksjonskrav
Expand sub pages Kapittel
Aktuelle leverandører
7.1.1
Ventilasjonsluftmengder
7.1.2
Ventilasjonsluftmengder basert på karbondioksid (NYTT - 2018)
7.2
Termisk inneklima
7.3
Energieffektiv luftdistribusjon
7.4
Praktisk anvendelse av SFP (Specific Fan Power)
7.5
Anbefalte faglige normer for inneklima (REVIDERT 2017)
7.6
Varmepumper i ventilasjonsanlegg
7.7
Ventilasjonsmengder - praktiske eksempler
7.8
Energimerking av bygg
7.10
Måling av energibruk i ventilasjonsanlegg (NYTT - 2017)
7.11
Usikkerhet ved dimensjonering av ventilasjonsanlegg
7.12
Varmegjenvinning i ventilasjonsanlegg
8
Avtaleverk
Expand sub pages Kapittel
Aktuelle leverandører
8.1
Overtagelse og kontroll
8.2
Driftsinstruks (REVIDERT 2018)
8.3
Avtale- og kontraktsformer
8.4
Forsikringer
9
Helse - Miljø - Sikkerhet
Expand sub pages Kapittel
Aktuelle leverandører
9.1
Praktiske tiltak ved innemiljøproblemer
9.2
Dokumentasjon av brannsikkerhet i bygninger
9.3
Ventilasjon for allergikere og overømfintlige
9.4
Etablering av system for internkontroll av inneklima (REVIDERT I 2019)
9.5
Lyd i luftbehandlingsanlegg (REVIDERT I 2019)
9.6
Støyproblemer i ventilasjonsanlegg
9.7
Rent Bygg - Krav til en renere byggeprosess
9.8
Byggherreforskriften - praktisk veiledning
9.9
Asbest - kartlegging og sanering
9.10
Rom for oppbevaring av brannfarlig vare
9.11
Mikroorganismene i ventilasjonsanlegg
9.12
Radongass i bygninger (REVIDERT I 2020)
9.13
Kjøletårn - drift og vedlikehold spesielt i forhold til legionella
9.14
Emisjon fra materialer
9.15
Rent Tørt Bygg
9.16.1
Rengjøring i yrkesbygg - Støv i innemiljø
9.16.2
Rengjøring i yrkesbygg - Effektivt renhold
10
Forvaltning - Drift - Vedlikehold
Expand sub pages Kapittel
Aktuelle leverandører
10.1
Nøkkeltall for drift av bygninger
10.2
Periodisk tilstandskontroll
10.3
Serviceavtaler
10.4
Økonomisk argumentasjon
10.5
Frostproblemer i ventilasjonsaggregater
10.6
Feilsøking i ventilasjonsanlegg
10.7
Tilstandskontroll av bygninger
10.8
Ettersyn av ventilasjonsanlegg og offentlige krav
10.9
Rehabilitering av ventilasjonsanlegg
10.10
Avslutning av ventilasjonsanlegg
Varmenormen (2017)
Expand sub pages Publikasjon 1
1
Administrative bestemmelser (endret til 2017-versjon)
Expand sub pages Kapittel
1.1
Navn og formål
1.2
Forhold til gjeldende lovverk og andre publikasjoner
1.3
Oppbygging av Varmenormen
1.4
Organisering
1.4.1
Sekretariat
1.4.2
Utvalg
2
Lover, forskrifter, standarder og normer (endret til 2017-versjon)
Expand sub pages Kapittel
2.1
Generelt
2.2
Plan- og bygningsloven
2.2.1
Pbl § 20 Søknadsplikt
2.2.2
Pbl § 23 Ansvar i byggesaker
2.2.3
Pbl § 27 Tilknytning til infrastruktur
2.3
Teknisk forskrift 2010
2.4
Forskrift om brannforebyggende tiltak og tilsyn (Forebyggendeforskriften)
2.5
Forskrift om begrensning av forurensning (Forurensningsforskriften)
2.6
Forskrift om gjenvinning og behandling av avfall (Avfallsforskriften)
2.7
Energimerkeforskriften
2.8
Forskrift om miljørettet helsevern
2.9
Productforskriften
2.9.1
Produktforskriften – F-gassforordningen
2.9.2
Produktforskriften - Regulering av ozonreduserende stoffer
2.10
Relevante standarder som berører prosjektering, bygging og drift av varmetekniske installasjoner
2.11
Norsk kulde- og varmepumpenorm og NS-EN 378:2016
2.12
Gassnormen
2.13
Tegnesymboler i skjemategning
3
Bygningens effekt- og energibehov (endret til 2017-versjon)
Expand sub pages Kapittel
3.1
Generelt
3.2
Varmeeffektbehov
3.2.1
Varmeffektbehov – Generelt
3.2.2
Romoppvarming
3.2.3
Transmisjonsvarmetap
3.2.4
Ventilasjonsvarmetap
3.2.5
Tappevannseffekt
3.2.6
Annet effektbehov
3.3
Kjøleeffektbehov
3.3.1
Kjøleeffektbehov – Generelt
3.3.2
Krav og behov for kjøling etter TEK10
3.3.3
Kjøling i passivhus
3.3.4
Internlaster
3.3.5
Soltilskudd
3.4
Energibehovsberegninger
3.4.1
Energibehovsberegning – Generelt
3.4.2
Krav til energibruk i bygninger
3.4.3
Temperaturvarighetskurver, fyringssesong og graddagstall
3.5
Energiøkonomisering
3.5.1
Energiøkonimsering – Generelt ved valg av utstyr
3.5.2
Lønnsomhetsberegninger
4
Varmesentraler (endret til 2017-versjon)
Expand sub pages Kapittel
4.1
Lover og forskrifter
4.1.1
Lover og forskrifter som berører bygging og drift av energisentraler
4.2
Forskriftskrav etter TEK 2010
4.2.1
Forskriftsmessig oppvarmingsmetode
4.3
Distribusjonsløsninger og temperaturnivåer
4.3.1
Distribusjonsløsninger og temperaturnivåer – Nye anlegg
4.3.2
Fordelingsprinsipper i varmesentralen
4.3.3
Koblingsprinsipper i energisentraler
4.3.4
Forbrukskretser
4.4
Eksisterende anlegg
4.4.1
Energivurdering
4.4.2
Krav til energiforsyning
4.4.3
Krav til drift
4.5
Varmeproduserende utstyr i varmesentraler
4.5.1
Generelt
4.5.2
Øvrig utstyr i energisentralen
4.5.3
Varmeakkumulering
4.5.4
Elektrokjele/El-kassett
4.5.5
Oljekjel
4.5.6
Gasskjel
4.5.7
Biobrenselkjel
4.5.8
Varmepumper
4.5.9
Solvarmesystemer
4.5.10
Skorsteiner og røkgasskanaler
4.5.11
Gasstanker inklusiv fordamper
4.5.12
Oljetanker
5
Varmeavgivere og kjøleelementer (endret til 2017-versjon)
Expand sub pages Kapittel
5.1
Varmeavgivere
5.1.1
Gulvvarme
5.1.2
Radiatorer og konvektorer
5.1.3
Strålepaneler
5.1.4
Varmebatterier
5.2
Romkjøleavgivere
5.2.1
Kjølebafler, kjøletak og kjølekonvektorer
6
Rørnett og komponenter (endret til 2017-versjon)
Expand sub pages Kapittel
6.1
Rørnett – materialvalg og klamring
6.1.1
Materialvalg og klamring
6.2
System for termisk utvidelse
6.2.1
Ekspansjonsanlegg
6.3
Ventiler
6.3.1
Ventiler – generelt
6.3.2
Sikkerhetsventiler
6.3.3
Innreguleringsventiler (strupeventiler)
6.3.3.1
Krav til plassering
6.3.3.2
Krav til produkt
6.3.3.3
Krav til prosjektering
6.3.4
Avstengningsventiler
6.3.4.2
Beskrivelse og krav til produkt
6.3.5
Tilbakeslagsventiler
6.3.6
Avtappingsventiler
6.3.7
Vakuumventiler
6.3.8
Vekselventiler
6.4
Pumper
6.4.1
Pumper i vannbårne anlegg
6.4.1.1
Generelt om pumper
6.4.1.2
Plassering av pumper
6.4.1.4
Krav til prosjekteringen
6.4.1.5
Krav til utførelse
6.4.1.6
Krav til dokumentasjon
6.4.1.7
Krav til igangkjøring og drift
6.5
Utstyr for opptak av termisk lengdeering
6.5.1
Kompensatorer
6.5.1.1
Generelt om produkt
6.6
Varmevekslere
6.6.1.1
Generelt om varmevekslere
6.6.1.4
Krav til system
6.7
Medier i væskebårne anlegg
6.7.1
Frostbeskyttende medier
6.7.1.1
Generelt om frostbeskyttede medier
6.8
Vannbehandling
6.8.1
Generelt
6.8.2
Lufteanordninger
6.8.3
Filter
6.8.3.6
Dokumentasjonskrav
7
Isolering (endret til 2017-versjon)
Expand sub pages Kapittel
7.1
Isolering
7.1.1
Isolasjon av rørsystemer og utstyr
7.1.1.1
Generelt om system/produkt
7.1.1.2
Krav til isoleringsomfang
7.1.1.3
Krav til produkt
7.1.1.4
Krav til system
7.1.1.5
Preaksepterte ytelser – rør- og kanalisolasjon
7.1.1.6
Krav til prosjektering
7.1.1.7
Krav til utførelse
7.1.1.8
Krav til dokumentasjon
7.1.1.9
Krav til igangkjøring og drift
8
Styring, regulering og overvåking (endret til 2017-versjon)
Expand sub pages Kapittel
8.1
Generelt
8.2
Systemoppbygging
8.2.2
Reguleringsutstyr for mindre anlegg
8.2.3
Lokale kontrollsentraler
8.2.4
Sentralt driftskontrollanlegg
8.3
Definisjoner og krav til system
8.3.1
Feltingstrumenter
8.3.1.1
Definisjoner
8.3.2
Krav til produkt
8.3.2.1
Generelt – krav
8.3.2.2
Krav til målenøyaktighet
8.3.2.3
Reguleringsventiler
8.3.2.4
Energimålere
8.3.3
Krav til prosjekteringen
8.3.3.2
Dokumentasjonskrav
8.3.4
Krav til utførelse
8.3.4.1
Generelle – krav
8.3.4.2
Dokumentasjonskrav og testing
8.4
Generelt om regulering av anlegg
8.4.1
Regulering av energisentraler
8.4.2
Romtemperaturregulering
8.4.3
Mengderegulering
8.4.3.2
Trykkforhold ved mengderegulering
8.4.4
Reguleringsventiler og shuntkoblinger
8.4.4.1
Krav til plassering
8.4.4.2
Krav til akuatorer
8.4.4.3
Beskrivelse og krav til produkt
8.4.5
Regulering av gulvvarmekurser
8.4.6
Varme-/kjølebatterier i ventilasjonsanlegg
8.4.6.1
Ventilasjonsbatterier med frostfare
8.4.6.2
Ventilasjonsbatterier uten frostfare
8.4.7
Natt- og helgesenking av innetemperaturen
9
Distribusjonssystemer (endret til 2017-versjon)
Expand sub pages Kapittel
9.1
Generelt
9.2.2
Prinsipper
9.2.3
Systemtopografi, mv.
9.2.3.1
Et-trørssystem
9.2.3.2
To-rørsystem
9.2.3.3
Fordelingsprinsipp
9.2.3.4
Kursoppdeling
9.2.4
Konstant vannmengde eller mengderegulering
9.2.5
Dimensjonerende temperaturer for nett
9.2.6
Dimensjonering og beregning av rørnett
9.3
Nærvarme
9.3.2
Distribusjonsnett
9.3.3
Kundesentraler
9.4
Fjernvarme
9.5
Fjermkjøling – nærkjøling
9.6
Andredistribusjonssystemer
9.6.1
Gatevarme og snøsmelteanlegg
9.6.1.2
Krav til plassering
9.6.1.3
Krav til produkt
9.6.1.4
Krav til system
9.6.1.5
Krav til prosjektering
9.6.1.6
Krav til utførelse
9.6.1.7
Krav til dokumentasjon
9.6.1.8
Krav til igangkjøring og drift
10
Anlegg for varmt tappevann (endret til 2017-versjon)
Expand sub pages Kapittel
10.1
Generelt
10.2
Plassering
10.3
Systemløsninger
10.3.1
Oppvarming med ladeveksler
10.3.2
Dobbeltmantlet bereder
10.3.3
Beredskapstanker med spiralrorcoiler
10.4
Legionellasikring
10.4.1
Generelt om legionellaspredning
10.4.2
Risikovurdering
10.4.3
Tiltak for å hindre vekst og spredning av legionellabakterier
10.4.3.1
Krav til beredere og akkumulatortanker for varmtvann
10.4.4
Fjernvarmeanlegg
10.5
Prosjektering
10.5.1
Dimensjonering av varmtvannsbehov
10.5.2
Varmtvannsproduksjon
10.5.3
Rørnett
10.5.4
Sirkulasjonsledninger
10.5.5
Ekspansjonskar for tappevannsystemer
10.6
Utførelse
10.7
Drift av anlegg for varmt tappevann
11
Innregulering, igangkjøring og overlevering (endret til 2017-versjon)
Expand sub pages Kapittel
11.1
Generelt
11.2
FDV-dokumentasjon
11.2.2
Orientering
11.2.3
System og anleggsinformasjon
11.2.4
Systeminformasjon
11.2.5
Driftsinformasjon
11.2.6
Feilsøking
11.2.7
Vedlikehold/tilsyn
11.2.7.1
Systematisk vedlikehold
11.2.7.2
Loggbok (kvitterings- og reparasjonskort etc.)
11.2.7.3
Forbruksmateriell/reservedeler
11.2.8
Dokumentasjon
11.2.8.1
Anleggsdokumentasjon
11.2.8.2
Brosjyrer
11.2.8.3
Protokoller
11.2.8.4
Tegninger
11.3
Trykk og tetthetsprøving
11.4
Utlufting
11.4.1
Oppfylling og utlufting av anlegg
11.4.1.2
Krav til anlegget
11.4.1.3
Krav til utførelse
11.4.1.4
Krav til drift
11.5
Innregulering av anlegg
11.5.1
Store anlegg
11.5.2
Sirkulasjonsledninger
11.6
Igangkjøringsprosedyrer
11.6.1
Overlevering
11.6.1.1
Entreprenørens ansvar
11.6.2
Opplæring
11.7
Merking
12
Vedlegg
Expand sub pages Kapittel
Vedlegg A – Relevante standarder
Vedlegg A – Relevante standarder
Varmenormen - tidligere utgaver
Expand sub pages Kapittel
Vannbaserte oppvarmings- og kjølesystemer (2014)
Expand sub pages Publikasjon 1
1
Bygningers varmeeffektbehov
Expand sub pages Kapittel
1
Bygningers varmeffektbehov
1.1
Generelt
1.2
Varmeeffektbehov
1.2.1
Transmisjonstapet
1.2.2
Ventilasjonsvarmetap
1.2.2.1
Infiltrasjon
1.2.2.2
Ventilasjon
2
Varme- og kjøleavgivere
Expand sub pages Kapittel
2
Varme- og kjøleavgivere
2.1
Termisk inneklima
2.2
Varmeavgivere
2.2.1
Bygningsflater
2.2.1.1
Gulvvarme
2.2.1.2
Veggvarme
2.2.1.3
Takvarme
2.2.2
Punktvarme
2.2.2.1
Radiator
2.2.2.2
Konvektor
2.2.2.3
Varmelist
2.2.2.4
Strålevarmeplaner
2.2.2.5
Ventilasjonsvarme
2.2.3
Oppsummering og sammenligning av varmeavgivere
2.3
Kjøleavgivere
2.3.1.1
Takkjøling
2.3.2
Punktkjøling
2.3.2.1
Kjølebafler
2.3.2.2
Viftekonvektor
2.3.2.3
Ventilasjonskjøling
3
Energikilder
Expand sub pages Kapittel
3
Energikilder
3.1
Varmepumpe
3.1.1
Historisk tilbakeblikk
3.1.2
Varmepumpens virkemåte
3.1.2.1
Ulike varmepumpetyper
3.1.2.2
Innføring i termodynamikk for varmepumper
3.1.2.3
Komponenter
3.1.2.4
Arbeidsmedier og oljer
3.1.2.5
Log PH-diagrammet og COP
3.1.3
Forbedringsalternativer
3.1.4
Varmekilde for varmepumper
3.1.5
Karbondioksidvarmepumper
3.1.6
Dimensjonering
3.2
Solvarme
3.2.1
Introduksjon
3.2.1.1
Solinnstråling på jorden og dens effekt
3.2.1.2
Energimengde fra solen
3.2.1.3
Omgjøring av solenergi til anvendbar energi
3.2.1.4
Solfangers orientering
3.2.2
Solvarmeanleggets ulike komponenter
3.2.2.1
Solfangeren
3.2.2.2
Overoppheting i ikke-drenerende systemer
3.2.2.3
Solfangers virkningsgrad
3.2.2.4
Solkretsen
3.2.2.5
Akkumulering av solvarme
3.2.3
Prosjektering av solvarmeanlegg
3.2.3.1
Systemløsninger
3.2.3.2
Dimensjonering av solvarmeanlegg
3.3
Elektrokjel
3.3.1
Elementkjel
3.3.2
Elektrodekjel
3.3.3
Induksjonskjel
3.3.4
Sikkerhetsfunksjoner for elektrokjeler
3.4
Oljekjel
3.4.1
Oljekjelen
3.4.1.1
Støpejernskjel
3.4.1.2
Platekjel
3.4.1.3
Utstyr på kjel
3.4.1.4
Fyringsformer
3.4.1.5
Feiing av kjel
3.4.1.6
Lavtemperaturkjeler
3.4.2
Oljebrennere
3.4.3
Dyser
3.4.4
Brennerautomatikk
3.4.5
Oljetanken
3.4.6
Lufttilførsel og skorsteiner
3.4.7
Bioolje
3.5
Gasskjel
3.5.1
Gasskjeler
3.5.2
Gasstyper
3.5.3
Transport og oppbevaring av gass
3.6
Biokjel
3.6.1
Generelt om biomasse som brensel
3.6.2
Konvertering av biobrensel til varme
3.6.3
Valg av forbrenningsteknologi
3.6.4
Lagring av brensel
3.6.5
Dimensjonering av biokjeler
4
Varmeakkumulering, ekspansjon og sikkerhet i vannbårne anlegg
Expand sub pages Kapittel
4
Varmeakkumulering, ekspansjon og sikkerhet i vannbårne anlegg
4.1
Varmeakkumulering
4.2
Ekspansjonssystemer
4.2.1
Åpne ekspansjonssystemer
4.2.2
Lukkede ekspansjonssystemer
4.3
Sikkerhetsventiler
4.3.1
Sikkerhetsinnretninger
4.3.2
Funksjon, typer og oppbygning av sikkerhetsventiler
4.3.3
Dimensjonering av sikkerthetsventiler
4.3.4
Plassering og montering av sikkerhetsventiler
5
Dimensjonering og isolering av rørnett
Expand sub pages Kapittel
5
Dimensjonering og isolering av rørnett
5.1
Trykktapsberegning
5.1.1
Volumstrøm og hastighet i rør
5.1.2
Forenklet dimensjonering av rørnett
5.1.3
Friksjonstap i rør
5.1.4
Støttap
5.1.5
Reguleringsventiler
5.2
Varmesystemer
5.2.1
Torørs oppdriftssystem
5.2.2
Torørs system med pumpedrift
5.2.3
Torørs system med vendt retur
5.2.4
Ettrørs system
5.3
Isolering av rør
5.3.1
Generelle krav og typer isolasjon
5.3.2
Dimensjonering
6
Effektregulering
Expand sub pages Kapittel
6
Effektregulering
6.1
Innledning, terminologi og grunnleggende begrep
6.2
Reguleringsmetoder
6.2.1
Tostillingsregulering
6.2.2
Flytende regulering
6.2.3
Modulerende regulering
6.2.4
Adaptiv regulering
6.2.5
Fuzzy regulering
6.3
Reguleringsprinsipp
6.3.1
Behovsstyrt effektregulering
6.3.2
Temperaturregulering
6.3.2.1
Utekompensert turtemperatur og utekompenseringskurve
6.3.2.2
Varme- og kjølebatteri i ventilasjonsanlegg
6.3.3
Mengderegulering
7
Varmegjenvinning og kjøling
Expand sub pages Kapittel
7
Varmegjenvinning og kjøling
7.1
Ventilasjonsvarmegjenvinning
7.1.1
Passiv ventilasjonsvarmegjenvinning
7.1.2
Aktiv ventilasjonsvarmegjenvinning
7.1.3
Kombinert aktiv og passiv ventilasjonsvarmegjenvinning
7.2
Kjøling
7.2.1
Passiv kjøling
7.2.1.1
Regulering av varmeanlegg og varmegjenvinner
7.2.1.2
Redusere varmetilskudd
7.2.1.3
Nattkjøling og varmeforflytning
7.2.1.4
Jordvarmeveksler
7.2.1.5
Passiv kjøling i kombinasjon med varmepumpe
7.2.2
Aktiv kjøling
7.2.2.1
Utnytting av varme fra kjøleanlegg
7.2.3
Kombinert passiv og aktiv kjøling
7.3
Gråvannsvarmegjenvinning
7.3.1
Passiv gråvannsvarmegjenvinning
7.3.2
Aktiv gråvannsvarmegjenvinning
7.3.3
Kombinert aktiv og passiv gråvannsvarmegjenvinning
8
Vannvarmere
Expand sub pages Kapittel
8
Vannvarmere
8.1
Historisk tilbakeblikk
8.2
Innføring i og oppbygning av dagens varmtvannsberedere
8.2.1
Innertank
8.2.2
Anslutninger
8.2.3
Yttermantel
8.2.4
Isolasjon
8.2.5
Komponenter
8.3
Overordnede hensyn for varmtvannsberedere
8.3.1
Vannkvalitet og korrosjonsbeskyttelse
8.3.2
Tappevannstemperatur og Legionella
8.3.3
Beredertemperatur og varmetap
8.3.4
Ekspansjon og tilbakestrømning
8.3.5
Plassering av varmtvannsbereder og tiltak mot vannskader
8.3.6
Sirkulasjonsledning varmekabel og ettervarmer
8.3.7
Varmetapsberegning av varmtvanns- og sirkulasjonsledninger
8.4
Varianter og systemløsninger
8.4.1
Gjennomstrømningsvarmer
8.4.2
Direkte oppvarmet varmtvannsbereder
8.4.3
Indirekte oppvarmet varmtvannsbereder
8.4.4
Kombinert direkte og indirekte oppvarmet varmtvannsbereder
8.4.5
Sammenkobling av flere beredere
8.4.6
Direkte ladende systemer
8.5
Dimensjonering av varmtvannsberedersystem
8.5.1
Forenklet berederdimensjonering ved hjelp av tabeller
8.5.2
Berederdimensjonering for enkeltboliger og større anlegg med kort dimensjonseringsperiode
8.5.3
Dimensjonering av større berederanlegg
9
Anleggsutførelser og systemløsninger
Expand sub pages Kapittel
9
Anleggsutførelser og systemløsninger
9.1
Reguleringsventiler
9.1.1
Toveis reguleringsventiler
9.1.2
Treveis reguleringsventiler
9.2
Sammenkobling av energikilder
9.3
Systemløsninger
10
Innregulering og igangkjøring
Expand sub pages Kapittel
10
Innregulering og igangkjøring
10.1
Generelt
10.2
Utlufting
10.3
Innregulering
Ventilasjonsteknikk Del I (utgave 2019)
Expand sub pages Publikasjon 1
0
Innholdsfortegnelse
Expand sub pages Kapittel
Innholdsfortegnelse
1
Introduksjon til ventilasjonsfaget (oppdatert februar 2019)
Expand sub pages Kapittel
Introduksjon til ventilasjonsfaget
1.1
Kort historikk om ventilasjon
1.2
Ventilasjonsfagets ulike komponenter - en enkel oversikt
1.3
Luftinntak og luftavkast
1.3.1
Luftinntak
1.3.1.1
Inntaksrist
1.3.1.2
Inntakshatt
1.3.2
Luftavkast
1.3.3
Kombihatt
1.4
Ventilasjonsaggregat
1.5
Filter
1.5.1
Filterets virkemåte
1.5.1.1
Vanlig filter
1.5.1.2
Elektrostatfilter
1.5.2
Filterets virkningsgrad
1.5.3
Anbefalt filterklasse
Luftforurensninger i norske byer
1.5.4
Energimerking av ventilasjonsfilter
1.6
Kanaler
1.6.1
Spirokanaler
1.6.2
Rektangulære kanaler
1.7
Spjeld
1.7.1
Statiske spjeld, innreguleringsspjeld
1.7.2
Dynamiske spjeld
1.8
Brannspjeld
1.9
Lyddemper
1.9.1
Lyddemper for spirokanal
1.9.2
Lyddemper for rektangulær kanal
1.9.3
Egenstøy og plassering
1.10
Tillufts-, avtrekks- og overluftsventiler
1.10.1
Tilluftsventiler
1.10.1.1
Tilluftsventiler for omrøringsventilasjon
1.10.1.2
Tilluftsventiler for fortrengningsventilasjon
1.10.2
Avtrekksventiler
1.10.3
Overluftsventiler
1.11
Oppholdssonen
1.12
Kjøling
1.12.1
Dimensjonering av kjølekapasitet
1.12.2
Kjøling via isvannmaskin
1.12.3
DX-kjøling
1.12.4
Adiabatisk kjøling
1.13
Vifter
1.13.1
Sentrifugalvifte
1.13.1.1
Kammervifte
1.13.1.3
Kanalvifte
1.13.1.4
Takvifte
1.13.2
Aksialvifte
1.13.2.1
Aksialvifte for kanalmontasje
1.13.2.2
Aksialvifte for veggmontasje
1.13.3
Motor og reguleringsmetode
1.14
Luftport
1.15
Isolering
1.15.1
Termisk isolering
1.15.1.1
Cellegummi
1.15.1.2
Mineralull
1.15.2
Lydisolasjon
1.15.3
Brannisolasjon
1.16
Automatikk
1.16.1
Flytskjema for ventilasjonsaggregat
1.16.2
Flytskjema for komplett system
1.16.3
Symboloversikt
1.17
Enheter
2
Inneklima (oppdatert februar 2019)
Expand sub pages Kapittel
2
Inneklima
2.1
Krav til inneklima
2.1.1
Arbeidstilsynets veiledning 444
2.1.2
Byggeteknisk forskrift TEK17
2.1.3
NS-ISO 7730
2.1.4
NS-EN 15251
2.2
Termisk miljø - kroppens varmebalanse
2.2.1
Metabolismen
2.2.2
Bekledning
2.2.3
Middelstrålningstemperatur
2.2.4
Operativ temperatur
2.2.5
Varmebalanseligningen
2.2.6
Komfortdiagram
2.3
Komfortkriterier
2.3.1
PMV-indeks
2.3.2
PPD-indeks
2.4
Lokal termisk ubehag
2.4.1
Vertikal temperaturgradient
2.4.2
Assymetrisk stråling
2.4.3
Trekk
2.4.4
Betydning av luftfuktigheten
2.5
Konsekvens av dårlig inneklima
2.5.1
Helseplager
2.5.2
SBS - Sykt Bygg Syndrom
2.5.3
Nedsatt arbeidseffektivitet
2.6
Inneklimaundersøkelser
3
Fuktig luft
Expand sub pages Kapittel
3
Fuktig luft (oppdatert februar 2019)
3.1
Krav til fuktinnhold
3.2
Diagram for fuktig luft – Mollierdiagram
3.3
Fuktig luft med formler
3.3.1
Tilstandsligningen
3.3.2
Fuktighetsgrad
3.3.3
Metningsgrad og relativ fuktighet
3.3.4
Beregning av relativ luftfuktiget og duggpunktstemperatur
3.3.5
Fuktig lufts spesifikke masse og densitet
3.3.6
Fuktig lufts entalpi
3.4
Oppbyggingen av Mollierdiagrammer
3.4.1
Det umettede området av hx-diagrammet
3.4.2
Det mettede området av hx-diagrammet
3.4.3
hx-diagrammet med andre totaltrykk
3.4.4
Randskalaen i hx-diagrammet, dh/dx
3.5
Tilstandsendringer i hx-diagrammet
3.5.1
Blanding av to luftmengder
3.5.2
Kjøling av luft
3.5.3
Befuktning
3.5.3.1
Befuktning med damp
3.5.3.2
Befuktning med vann
3.5.3.3
Befuktningsgraden
3.5.4
Avfuktning
Mollier-diagrammet (vedlegg)
4
Varmeoverføring
Expand sub pages Kapittel
4
Varmeoverføring (oppdatert februar 2019)
4.1
Varmegjenvinnere en oversikt
4.1.1
Temperaturvirkningsgrad, årsgjennomsnittlig temperaturvirkningsgrad og årsenergivirkningsgrad
4.1.1.1
Temperaturvirkningsgrad
4.1.1.2
Tørr virkningsgrad og årsgjennomsnittlig temperaturvirkningsgrad
4.1.1.3
Årsenergivirkningsgrad
4.2
Varme- og kjølebatterier, en oversikt
4.2.1
Ulike tilkoblinger
4.3
Fysikken i varmeoverføring
4.3.1
Varmeledning
4.3.2
Konveksjon
4.3.2.1
Turbulent strømning i rør og kanaler
4.3.2.2
Tvungen konveksjon utvendig rør/kanaler
4.3.3
Termisk stråling
4.3.3.1
Strålingsutveksling mellom grå overflater
4.3.3.2
Varmeoverganskoeffisient ved stråling
4.3.4
Stråling gjennomgangskoeffisienten, U-verdi
4.3.4.1
U-verdi for sylinder, isolering av rør og kanaler
4.4
Varmebatterier og kjølebatterier
4.4.1
Beregning av varmeoverføring
4.4.2
Strømningsforhold
4.4.2.1
Kobling i motstrøm
4.4.2.2
Kobling i medstrøm
4.4.2.3
Kobling i krysstrøm (tverrstrøm)
4.4.2.4
Varmebatteri og kjølebatteri i en varmepumpeprosess
4.4.3
Beregning av varmeoverføring med ε,NTU metoden
4.4.4
Varmeoverføring ved våte flater
4.5
Varmegjenvinnere
4.5.1
Varmepumpe
4.5.2
Roterende varmegjenvinner
4.5.2.1
Ulike typer roterende varmegjenvinnere
4.5.3
Kammerveksler
4.5.4
Plateveksler
4.5.4.1
Plateveksler type kryssveksler
4.5.4.2
Plateveksler type motstromsveksler
4.5.5
Batterigjenvinner
4.6
Kjølebaffel og adiabatisk kjøling
4.6.1
Kjølebaffel
4.6.1.1
Passiv kjølebatteri kjølebaffel (med egen konveksjon)
4.6.1.2
Aktiv kjøolebaffel
4.6.2
Adiabatisk kjøling
5
Strømningsteknisk grunnlag
Expand sub pages Kapittel
5
Strømningsteknisk grunnlag (oppdatert februar 2019)
5.1
Kontinuitetsligningen
5.2
Bernoullis ligning
5.2.1
Trykkmålinger
5.3
Trykkendringer i kanalsystemet
5.3.1
Friksjonstap med diagram
5.3.1.1
Hydraulisk diameter
5.3.1.2
Ekvivalent diameter
5.3.2
Støttap enkel motstand
5.4
Strømningsteknikken med formler
5.4.1
Reynolds tall
5.4.1.2
Kinematisk viskositet
5.4.2
Laminær og turbulent luftstrøm
5.4.3
Friksjonstap med formler
5.4.3.1
Moodys diagram
5.4.4
Støttap (enkeltmotstand)
5.4.4.1
Tverrsnittutvidelse
5.4.4.2
Tverrsnittreduksjon
5.4.4.3
Bend
5.4.4.4
Forgrening (avgrening)
5.4.4.5
Andre støttap
5.5
Trykkfallsberegning og utbalansering
5.5.1
Trykkfallsberegning og utbalansering uten optimalisering (REVIDERT 2017)
5.5.2
Trykkfallsberegning og utbalansering med optimalisering (REVIDERT 2017)
6
Luftmengdebehov
Expand sub pages Kapittel
6
Luftmengdebehov (oppdatert februar 2019)
6.1
Minimumskrav i Byggteknisk forskrift (TEK)
6.1.1
§ 13-2 Ventilasjon i boenhet
6.1.2
§ 13-3 Ventilasjon i byggverk for publikum og arbeidsbygning
6.1.3
NS-EN 15251
6.2
Arbeidstilsynets veiledning 444
6.3
Behovet for ventilasjon for personer og emisjoner
6.3.1
Behagelighetskriterier - opplevd luftkvalitet
6.3.1.1
Luftmengder basert på olf og decipol
6.3.1.2
Luftmengder basert pa CO₂
6.3.2
Ventilering for sunnhet
6.3.2.1
Forskrift om tiltaks- og grenseverdier
6.3.2.2
Ventilering av garasje
6.3.3
Emisjoner - flyktige organiske forbindelser (VOC)
6.3.3.1
Lavemitterende bygningskonstruksjoner
6.3.4
Ikke-stasjonære forhold
6.3.5
Luftveksling
6.4
Klimatisering
6.4.1
Kontroll på temperatur
6.4.1.1
Varmetap grunnet transmisjon
6.4.1.2
Varmetap grunnet infiltrasjon
6.4.1.3
Varmetap grunnet ventilasjon
6.4.1.4
Varmetilskudd grunnet internlast
6.4.1.5
Varmetilskudd grunnet personbelastning
6.4.1.6
Varmetilskudd grunnet soltilskudd
6.4.1.7
Akkumulering
6.4.1.8
Forenklet metode for å beregne nødvendig kjøleeffekt
6.4.2
Kontroll på luftfuktighetsnivå
7
Hovedtypene av ventilasjonssystemer
Expand sub pages Kapittel
7
Hovedtypene av ventilasjonssystemer (oppdatert februar 2019)
7.1
Generell innføring
7.2
Naturlig ventilasjon
7.2.1
Termisk oppdrift
7.2.1.1
Termisk oppdrift med kanalføring
7.2.1.2
Termisk oppdrift i høye bygninger
7.2.1.3
Port og døråpninger
7.2.2
Vindkrefter
7.2.2.1
Bygningens formfaktorverdi
7.2.2.2
Vindhastighet
7.2.2.3
Terrengruhet
7.3
Avtrekksventilasjon
7.3.1
Trykkforholdene ved avtrekksventilasjon
7.3.2
Friskluftsventiler
7.3.2.1
Klaffventiler
7.3.2.2
Spalteventiler
7.3.2.3
Friskluftsventiler med integrert oppvarming
7.3.3
Avtrekksvarmepumpe
7.3.3.1
Årsgjennomsnitlig produksjonsvarmefaktor
7.3.3.2
Årsgjennomsnitlig distribusjonsvirkningsgrad
7.3.3.3
Årsgjennomsnitlig romvirkningsgrad
7.4
Balansert ventilasjon
7.4.1
Ventilasjon av eneboliger og rekkehus
7.4.2
Ventilasjon av leiligheter
7.4.3
Ventilasjon i næringsbygg
7.5
Hybrid ventilasjon
7.5.1
Systemløsning
7.5.2
Automatisk vindusåpning
8
Luftstrømninger i rom
Expand sub pages Kapittel
8
Luftstrømninger i rom (oppdatert februar 2019)
8.1
Ventilasjonsprinsipper
8.1.1
Oppholdssonen
8.1.2
Ventilasjonens effektivitet
8.1.2.1
Luftvekslingstallet (n)
8.1.2.2
Ventilasjonseffektivitet (εv)
8.1.2.3
Temperatureffektivitet (εvt)
8.1.3
Omrøringsventilasjon
8.1.3.1
Kastelengde
8.1.3.2
Coandaeffekt
8.1.3.3
Maksimal inntrengningslengde
8.1.3.4
Sverting rundt ventil
8.1.3.5
Tilluft med overtemperatur
8.1.3.6
Ventiler for omrøringsventilasjon
8.1.4
Fortrengningsventilasjon
8.1.4.1
Sjikthøyde
8.1.4.2
Nærsone
8.1.4.3
Temperaturgradient
8.1.4.4
Tilluftsventiler for fortrengningsventilasjon
8.1.5
Avtrekksventiler
8.1.5.1
Avtrekksventiler ved omrøringsventilasjon
8.1.5.2
Avtrekksventiler ved fortrengningsventilasjon
8.1.5.3
Ulike typer avtrekksventiler
8.2
Effektivitetsmål
8.2.1
Luftens alder
8.2.1.1
Stempelstrøm
8.2.1.2
Sporgassundersøkelse
8.2.2
Luftvekslingseffektivitet (εa)
8.2.3
Lokal luftvekslingsindikator (εi)
8.2.4
Ventilasjonseffektivitet (εv eller εv,op)
8.2.5
Lokal ventilasjonsindeks (εv,p)
8.3
Luftbevegelser
8.3.1
Fri horisontal isoterm luftstråle
8.3.1.1
Sirkulær stråle, tilnærmet isoterm
8.3.1.2
Plan stråle, tilnærmet isoterm
8.3.1.3
Radiell stråle, tilnærmet isoterm
8.3.1.4
Sammenhengen mellom kastelengder og ulike slutthastigheter
8.3.2
Ikke-isoterm luftstråle
8.3.2.1
Arkimedes tall
8.3.2.2
Klebelengde
8.3.2.3
Inntrengningslengde for horisontal stråle
8.3.2.4
Banekurve
8.3.2.5
Vertikale stråler påvirket av termiske krefter
8.3.3
Naturlig konveksjon
8.3.3.1
Konveksjonsstrøm fra varmekilde i rom uten temperaturgradient
8.3.3.2
Konveksjonsstrøm fra varmekilde i rom med temperaturgradient
8.3.3.3
Vertikale luftbevegelser fra varm eller kald flate
Kildehenvisninger
Expand sub pages Kapittel
Kildehenvisninger
Ventilasjonsteknikk Del II (utgave 2019)
Expand sub pages Publikasjon 1
Innholdsfortegnelse
Expand sub pages Kapittel
Innholdsfortegnelse
Lyd og lyddemping i ventilasjonsanlegg
Expand sub pages Kapittel
9
Lyd og lyddemping i ventilasjonsanlegg
9.1
Lydkrav i ventilasjonsanlegg
9.1.1
Lydkrav i boliger
9.1.2
Lydkrav på kontorer
9.1.3
Lydens veier
9.2
Hva er lyd?
9.2.1
Frekvens
9.2.2
Lydstyrke i lydeffekt og lydtrykk
9.2.3
Logaritmisk skala og summering av lyd
9.2.4
Tilpasning til vår hørsel - A-filter
9.2.4.1
A-, C- og Z-filter
9.2.4.2
RC-kurver
9.3
Lydutbredelse innendørs
9.3.1
Retningsfaktor
9.3.2
Absorpsjonsfaktor
9.3.3
Etterklangstid
9.3.4
Romkonstant og romdempning
9.3.4.1
Lydtrykknivå i store udempede rom
9.3.4.2
Lydtrykknivå i dempede rom
9.4
Lydutbredelse utendørs
9.4.1
Lydskjerm
9.5
Lyddempning i ventilasjonsanlegget
9.5.1
Lyddempere
9.5.1.1
Absorpsjonslyddemper
9.5.1.2
Aktiv lyddemper
9.5.2
Dempning i kanalens ende
9.5.2.1
Dempning ved enderefleksjon
9.5.2.2
Egendempning i ventil
9.5.3
Dempning i kanalnettet
9.5.3.1
Dempning i rette kanaler uten innvendig isolasjon
9.5.3.2
Dempning i rette kanaler med innvendig isolasjon
9.5.3.3
Lyddempning i avgreining
9.5.3.4
Dempning i bend
9.5.3.5
Dempning i kammer
9.5.3.6
Dempning i andre ventilasjonskomponenter
9.6
Lydgenering i ventilasjonsanlegget
9.6.1
Lydgenering i rett kanal
9.6.2
Lydgenering i bend og avgreining
9.6.3
Lydgenering i lyddemper
9.7
Lyddokumentasjon for ventilasjonskomponenter
9.7.1
Lyddokumentasjon for ventiler
9.7.2
Lyddokumentasjon for spjeld
9.7.3
Lyddokumentasjon for vifter og aggregater
9.7.4
Lyddokumentasjon for kjølemaskin
9.8
Lydberegning
9.9
Lydoverføring
9.9.1
Lydreduksjonstall
9.9.2
Lydoverføring gjennom veggen
9.9.3
Flankeoverføring
9.9.3.1
Lydoverføring gjennom kanaler uten åpninger
9.9.4
Lekkasje
9.9.5
Lydoverføring gjennom kanalnettet
9.9.6
Lydoverføring med overluftsventil
9.10
Lydmålinger
9.10.1
Lydmålinger innendørs
9.10.2
Lydmålinger utendørs
9.11
Vibrasjoner
9.11.1
Krav til vibrasjoner
9.11.2
Den forstyrrende kraft
9.11.3
Vibrasjonsdempning
9.12
Feilsøking
9.12.1
Innledende målinger
9.12.2
Lydproblemer
9.12.3
Vibrasjonsproblemer
Energibruk til viftedrift, oppvarming og kjøling
Expand sub pages Kapittel
10
Energibruk til viftedrift, oppvarming og kjøling
10.1
Myndighetskrav til energibruk
10.1.1
NS 3031 Beregning av bygningers energiytelse
10.1.2
Netto energibehov og levert energi
10.1.3
Energimerking og energivurdering
10.1.3.1
Energimerking
10.1.3.2
Energikarakter
10.1.3.3
Oppvarmingskarakter
10.1.4
Energivurdering
10.2
Energi til viftedrift
10.2.1
Proposjonallovene
10.2.2
Viftens arbeidspunkt og anleggslinje
10.2.2.1
Endring i luftmengde og trykk
10.2.2.2
Anleggslinje med trykkregulering
10.2.3
SFP-verdi
10.2.3.1
Ulike SFP-verdier som skal dokumenteres
10.3
Energi til oppvarming
10.3.1
Graddager og Graddagsmetoden
10.3.2
Varighetsdiagrammer
10.3.2.1
Energibehov til oppvarming uten varmegjenvinner
10.3.2.2
Energibehov til oppvarming med varmegjenvinner
10.3.2.3
Fuktvarighetsdiagram
10.4
Energi til kjøling
10.4.1
Entalpivarighetsdiagram
10.4.2
Kjølegjenvinning
10.5
Effektvarighetsdiagram
10.6
LCC - Livssykluskostnad
10.6.1
Nåverdi
10.6.2
Årskostnadsmetoden
10.6.3
Internrente
10.6.4
Tilbakebetalingstid - Payback-metoden
10.7
Kontroll av energibruk
10.7.1
ET-kurve
10.7.2
Graddager
10.7.3
Middeltemperaturer
10.7.4
Dynamisk beregning - avansert metode
Behovsstyrt ventilasjon
Expand sub pages Kapittel
11
Behovsstyrt ventilasjon
11.1
En introduksjon
11.1.1
Behovsstyrt og brukerstyrt ventilasjon
11.1.2
Reservekapasitet
11.1.3
Fallgruver og vanlige feil
11.1.4
Full luftmengde ved brann
11.2
Energibesparelse med behovsstyrt ventilasjon
11.2.1
Samtidighet
11.2.2
Besparelse på vifteenergi
11.2.3
Besparelse på energi til ettervarme
11.2.4
Besparelse i romoppvarming
11.3
Komponenter i kanalnettet
11.3.1
DCV-spjeld
11.3.1.1
Innstilling av luftmengde
11.3.1.2
Avstand til forstyrrelser
11.3.1.3
Master slavekobling sammenlignet med parallellkobling
11.3.2
DCV-ventil (aktiv tilluftsventil)
11.3.3
Selvvirkende mekaniske CAV-spjeld
11.3.4
Spjeld med aktuator
11.3.5
Trykkregulert sone
11.4
Måleparameter i rommet
11.4.1
Plassering av sensorer
11.4.1.1
Sensorplassering ved fortrengningsventilasjon
11.4.1.2
Sensorplassering med omrøringsventilasjon
11.4.2
Bevegelsesdetektor
11.4.3
Temperatursensor
11.4.4
CO2- og temperatursensor
11.5
Valg av automatiseringsprinsipp
11.5.1
Lokalt regulert anlegg
11.5.2
Sentralt regulert anlegg
11.5.2.1
Administrasjonsnivået (SD-anlegg)
11.5.2.2
Automatiseringsnivået
11.5.2.3
Feltnivå
11.5.2.4
Distribuert intelligens
11.6
Valg av reguleringsprinsipp for vifter
11.6.1
Trykkregulert anlegg
11.6.1.1
Statisk trykkføler nær aggregatet
11.6.1.2
Statisk trykkføler i kanalnettet
11.6.1.3
Trykkregulering med sonespjeld
11.6.2
Optimalt regulert anlegg
11.6.2.1
Regulering av vifteturtall basert på spjeldvinkel
11.6.2.2
Spjeldvinkelregulering med sonespjeld
11.6.2.3
Optimalisering via trykkpunktjustering
11.6.2.4
Aktive tilluftsventiler
11.6.3
Blande variable og konstante soner på samme kanalnett
11.6.3.1
Trykkregulert anlegg og luften forsynes fra trykkregulert kanal
11.6.3.2
Selvvirkende mekaniske CAV-spjeld til konstant rom
11.6.3.3
Trykkregulering av sonen
11.7
Prosjekteringsunderlag og dokumentasjon
11.7.1
Funksjonsbeskrivelse
11.7.2
Romskjema/TAG-liste med luftmengder
11.7.3
Topologiskjema
11.8
Oppstart funksjonstest og belastningstest
11.8.1
Oppstart av et trykkregulert anlegg
11.8.1.1
Trykkregulert anlegg/sone uten opptimaliseringsfunksjon
11.8.1.2
Trykkregulert anlegg/sone med DCV-spjeld og reguleringsspjeld
11.8.2
Belastningstest
11.8.2.1
Maksimal samtidighet for bygget
11.8.2.2
Minimum luftmengde i bygningen
11.8.2.3
Hvordan endre innstilt luftmengde
11.8.2.4
Kontrollmåling av luftmengde
11.8.2.5
Stikkprøve ved tredjepartskontroll
Kanaler
Expand sub pages Kapittel
12
Kanaler
12.1
Tetthet
12.2
Spirokanaler
12.3
Rektangulære kanaler
12.3.1
Skjøting av rektangulære kanaler
12.4
Trykktap
12.4.1
Trykktap i kanaler
12.4.2
Trykktap over komponenter
12.4.3
Anleggskarakteristikk
12.4.4
Viftekarakteristikk og driftspunkt
12.5
Materialkrav
12.6
Renhet
12.6.1
Kontroll av renhet
12.6.1.1
Gravimetrisk måling
12.6.1.2
Filmtykkelse
12.6.1.3
Optisk måling
12.6.2
Rengjøring av kanaler
12.6.2.1
Manuelle metoder støvsuging og avtørking
12.6.2.2
Roterende borster
12.6.2.3
Trykkluft
12.6.2.4
Tørris
12.7
Oppheng
12.8
Merking
12.9
Planlegging av kanalsystemet
12.10
Kanaldimensjonering av CAV-anlegg
12.10.1
Tilluftskanaler
12.10.1.1
Bahcos 1/3-dels metode (revidert juni 2017)
12.10.1.2
Hastighetsmetoden (revidert juni 2017)
12.10.1.3
Konstant trykkfallsmetoden
12.10.1.4
Statisk trykkgjenvinningsmetoden
12.10.1.5
Konstant dimensjon
12.10.2
Avtrekkskanaler
12.11
Kanaldimensjonering av behovsstyrte anlegg
Brannsikring av ventilasjonsanlegg
Expand sub pages Kapittel
13
Brannsikring av ventilasjonsanlegg
13.1
Brannmotstand og overflatekrav
13.1.1
Overflater
13.2
Brannsikkerhetsstrategi
13.3
Lover og forskrifter
13.3.1
Brannskillets brannmotstand
13.3.1.1
Risikoklasse
13.3.1.2
Brannklasse
13.3.2
Brannseksjoner
13.3.3
Brannceller
13.3.4
Krav til tekniske installasjoner
13.4
Ventilasjon stoppet under brann steng inne strategi
13.4.1
Krav til brannspjeld
13.4.1.1
Montasje av brannspjeld
13.4.2
Styring av aggregat
13.5
Ventilasjon i drift under brann trekk ut strategi
13.5.1
Tilgjengelig romningstid ved brann
13.5.2
Temperaturkrav
13.5.2.1
Standard brannkurve ISO 834
13.5.3
Sikring av kanalnettet
13.5.3.1
Nødvendig trykk i kanalnettet
13.5.3.2
Brannisolasjon (revidert i 2019)
13.5.4
Sikring av ventilasjonsaggregatet luftinntak og luftavkast
13.5.4.1
Full luftmengde
13.5.4.2
Omluft må stenge
13.5.4.3
Sikker strømtilforsel
13.5.4.4
Temperaturkrav til vifte
13.5.4.5
Bypass
13.5.4.6
Styring av ventilasjonsaggregat
13.5.4.7
Luftinntak og luftavkast
13.5.5
Automatisk slokkeanlegg sprinkling
13.5.5.1
Automatisk slokkeanlegg og krav til brannisolasjon
13.5.5.2
Automatisk slokkeanlegg og temperaturkrav til avtrekksvifte
13.5.5.3
Automatisk slokkeanlegg og krav til bypass
13.5.5.4
Automatisk slokkeanlegg og øvrige krav
13.6
Brannisolering av kanal fra kjøkkenavtrekk
13.7
Kombinert løsning steng inne og trekk ut
13.8
Røykventilasjon
13.8.1
Røykventilasjon av garasjeanlegg
13.8.2
Røyventilering av heissjakt og installasjonssjakt
13.8.3
Røyventilasjon av trapperom
13.8.3.1
Termisk røykevakuering
13.8.3.2
Trykksetting av trapperom
13.8.4
Røykventilasjon av overbygde gårder og gater
13.8.4.1
Dimensjonerende brannareal og røykgasstemperatur
13.8.4.2
Termisk røykventilasjon av overbygde gårder og gater
13.8.4.3
Mekanisk røykventilasjon av overbygde gårder og gater
Innregulering og overlevering av anlegg
Expand sub pages Kapittel
14
Innregulering og overlevering av anlegg
14.1
Innregulering
14.1.1
Manuelle metoder
14.1.1.1
Proporsjonalmetoden
14.1.1.2
Forinnstillingsmetoden
14.1.1.3
Innreguleringsskjema
14.1.2
Automatiske metoder
14.1.2.1
Selvvirkende mekaniske CAV-spjeld (konstantvolumregulatorer)
VVS-tegning med oppgavesamling
Expand sub pages Publikasjon 1
Bruk av VVS-tegning
Expand sub pages Kapittel
0
Innledning - bruk av VVS-tegning
Innføring
Expand sub pages Kapittel
1.01
Kunnskapsmål
1.02
Prosjektering og bruk av standarder og symboler for bygg
1.03
Farger
1.04
Tegningsformater
1.05
Feltene på tegningsarket
1.06
Målestokk
1.07
Byggtegninger – oversikt over ulike tegningstyper
1.08
Situasjonskart
1.09
Plantegninger
1.10
Snitt
1.11
Fasader
1.12
Skjemaer
1.13
Detaljtegninger
1.14
3D-tegninger/BIM
1.15
BIM
1.16
Målsetting av byggtegninger
1.17
Akser og moduler
1.18
Buer og vinkelmål
1.19
Konstruksjonstegning
1.20
Projeksjonstegning
Bygningen
Expand sub pages Kapittel
2.01
Kunnskapsmål
2.02
Konstruksjon og bygningsdeler – definisjoner
2.03
Arealdefinisjoner
2.04
Hulltaking og utsparinger
2.05
Vannskadesikkerhet
2.06
Energikrav – isolering
2.07
Elektriske installasjoner
2.08
Feste av utstyr – spikerslag og festemateriell
2.09
Byggesøknader, dokumentasjon og kontroll
Sanitær
Expand sub pages Kapittel
3.01
Kunnskapsmål
3.02
Hva er et sanitæranlegg?
3.03
Prosjektering av sanitæranlegg – underlaget for prosjekteringen
3.04
Prosjektering av sanitæranlegg – rekkefølgen i tegnearbeidet
3.05
Spesielt om overvannsledninger
3.06
Spesielt om sanitærutstyr og rom med sanitæranlegg
3.07
Bad- og dusjrom
3.08
Vaskerom
3.09
Kjøkken
3.10
WC-rom
3.11
Sanitærrom for bevegelseshemmede
3.12
Brannslanger og brannskap
3.13
Hagevanningskraner
3.14
Snitt
3.15
Detaljer
3.16
Anlegg for spredt bebyggelse
3.17
3D-tegninger
3.18
BIM
Varme
Expand sub pages Kapittel
4.01
Kunnskapsmål og læremidler
4.02
Hva er et vannbåret sentralvarmeanlegg?
4.03
Prosjektering av sentralvarmeanlegg – fremgangsmåte
4.04
Forenklet dimensjonering av effektbehov
4.05
Radiatoranlegg
4.06
Gulvvarmeanlegg
4.07
Distribusjon – Rør og ventiler
4.08
Energikilder
4.09
Flytskjemaer
4.10
Oppleggsskjema for varme – varmeskjema
4.11
3D-tegninger/isometriske tegninger
4.12
BIM for varmeanlegg
Ventilasjon
Expand sub pages Kapittel
5.01
Kunnskapsmål og læremidler
5.02
Boligventilasjon – generelt
5.03
Prosjektering av et boligventilasjonsanlegg – fremgangsmåte
5.04
Forenklet dimensjonering
5.05
Plantegninger
5.06
Flytskjemaer
5.07
Oppleggsskjema for boligventilasjon
5.08
3D-tegninger og BIM
5.09
Støvsugeranlegg
Boligsprinkler
Expand sub pages Kapittel
6.01
Kunnskapsmål
6.02
Hva er et boligsprinkleranlegg?
6.03
Prosjektering av boligsprinkleranlegg
6.04
Forenklet dimensjonering
6.05
Sprinklerhoder – typer og plassering
6.06
Vanntåkeanlegg
Boliggass
Expand sub pages Kapittel
7.01
Kunnskapsmål
7.02
Hva er boliggass?
7.03
Lover og regelverk
7.04
Rørdimensjonering
7.05
Tank eller flasker?
7.06
Spesielle krav til tank
7.07
Krav til installasjonen
7.08
Rørledninger og skjøter
7.09
Nyttige opplysninger vedrørende boliggass
7.10
Symboler for gasstegninger
7.11
Eksempel på boliggassinstallasjon
BricsCAD-VVS
Expand sub pages Kapittel
8.01
Innledning
8.02
Brukermanual
Øvinger og oppgaver
Expand sub pages Kapittel
9.1
Grunnlag for øvingsrekkene
9.2
YFF-plan for NIVÅ 1 - dwg
9.3
YFF-plan for NIVÅ 1 - pdf
9.4
YFF-plan for NIVÅ 2 - dwg
9.5
YFF-plan for NIVÅ 2 - pdf
9.6
Eksempel
9.7
Øvingsrekker og oppgaver NIVÅ-1
9.8
Øvingsrekker og oppgaver NIVÅ-2
9.9
Øvingsrekker og oppgaver NIVÅ-3
Kompendium for Fgass-sertifisering (2019)
Expand sub pages Publikasjon 1
Minimumskrav sertifisering
Expand sub pages Kapittel
0.1
Introduksjon (s. 2-4)
0.2
Minimumskrav til sertifisering (s. 5-13)
Grunnleggende teori
Expand sub pages Kapittel
1.1
Grunnleggende enheter (s. 15-24)
1.2
Kuldesystemens grunnleggende teori og termodynamikk (s. 25-35)
1.3
Kuldeprosessen og hovedkomponentenes funksjon (s. 36-39)
1.4
Log.p-h diagram og metningstabeller (s. 40-45)
1.5
Kunnskap og kuldemediets termodynamiske egenskaper (s. 46-51)
1.6
Bruk av relevante tabeller og diagrammer (s. 52-56)
1.7
Beskrive kuldeprosessen og hovedkomponentenes funksjon (s. 57-65)
1.8
Funksjon og hensikt til komponenter (s. 66-68)
Kuldemedier og reguleringer
Expand sub pages Kapittel
2.1
Krav til kuldemedier (s. 69-70)
2.2
Fysikalske egenskaper (s. 71-72)
2.3
Hvilke gasser er det snakk om? (s. 73)
2.4
Hvilke gasser er aktuelle i dag? (s. 74)
2.5
Hvile reguleringer gjelder? (s. 75)
2.6
Om nedbryting av ozonlaget (s. 76)
2.7
Global oppvarminspotensial - GWP (s. 77-80)
2.8
Hvor miljøfarlige er gassene? (s. 80-81)
2.9
Reguleringer for kuldemedier (s. 82-89)
2.10
Forskrift om særavgifter (s. 90-91)
2.11
Produktforskriften - Den reviderte Fgass-forordningen (EU) 517/2014 (s. 92-108)
2.12
Minimumskrav sertifisering (s. 108-111)
2.13
(EU) 2015/2067, Minimumskrav til sertifisering, minstekrav til ferdigheter og kunnskaper (s. 112-113)
2.14
Hvordan foregår eksamen? (s. 114)
2.15
Forordningen (EU) nr. 517/2014 - Artikkel 11, 12 og 13 (s. 115-118)
Inngrep i anlegget
Expand sub pages Kapittel
3.1
Tømming av anlegg (s. 119-222)
3.2
Tømmeaggregatets virkemåte (s. 123-134)
3.3
Dokumentasjon av aktivitet og kulemedieregnskap (s. 135-137)
3.4
Transport av kuldemedium (s. 138-141)
3.5
Farlig avfall (s. 142-143)
3.6
Kontroll av kuldemediets renhet (s. 144-148)
3.7
Reparasjon av anlegget (s. 149)
3.8
Legge, sveise/hardlodde og klamre rørene (s. 150-156)
3.9
Utføring av prøver go vakuumering (s. 157-160)
3.10
Tetthetsprøve og vakuumering (s. 161-172)
Igangkjøring av anlegg
Expand sub pages Kapittel
4.1
Installere, igangkjøre og vedlikeholde kuldeanlegg (s. 173-180)
4.2
Kontroll av væskefylling og av prosessen i h.logp diagrammet (s. 181-182)
4.3
Installere, igangkjøre og vedlikeholde termostatiske eksp.ventiler og andre komponenter (s. 183-192)
4.4
Kontroll og innstillinger på anlegget i forbindelse med oppstart (s. 193-199)
4.5
Innstilling av fordampertrykksregulator (s. 200-207)
Lekkasjekontroll
Expand sub pages Kapittel
5.1
Fgass-forordningen og lekkasjekontroll (s. 208-211)
5.2
Hovedpunkter i lekkasjekontroll (s. 212-221)
5.3
Direkte kontrollmetoder (s. 222-228)
Relevante teknologier som erstatter eller minsker anvendelsen av Fgasser
Expand sub pages Kapittel
6.1
Alternative kuldemedier og systemløsninger (s. 229-236)
6.2
Relevante sikkerhetsforskrifter og standarder (s. 237-240)
6.3
Hvordan bestemme risikokategorien for det ferdige anlegget? (s. 241-248)
6.4
Mer om relevant lovgivning (s. 249-252)
6.5
Oppsummering av HMS-forhold på grunn av trykk (s. 253-257)
6.6
Klassifisering og soneinndeling av eksplosjonsfarlige områder (s. 258-259)
6.7
Vernetiltak mot eksplosjoner (s. 260-263)
6.8
Relevante systemløsninger for å minske mengden av fluorholdige drivhusgasser og øke energieffektiviteten (s. 264-273)
Sentrale tema i forbindelse med sertifikat i kategori 2
Expand sub pages Kapittel
7.1
Introduksjon (s. 274)
7.2
Grunnleggende ISO-standardenheter (s. 276)
7.3
Kuldesystemenes grunnleggende teori og termodynamikk (s. 277-288)
7.4
Montasje av en varmepumpe (s. 289-293)
7.5
Kontroll av en varmepumpe ved igangkjøring etter en reparasjon (s. 294-296)
7.6
Krav for sertifisering kategori 2 (s. 297-299)
Vedlegg
Expand sub pages Kapittel
8.1
Vedlegg - Produktforskriften (s. 300-302)
8.2
Vedlegg - Fgass-forordningen (s. 303-320)
8.3
Forordning (EF) nr. 1516/2007 (s. 321-327)
8.4
Utdrag av Forordning (EU) nr. 2015/2067 om sertifisering vedr kjøleanlegg (s. 328-331)
8.5
Utdrag av Forordning (EU) nr. 2015/2068 om merking av produkter og utstyr (dansk) (s. 332-333)
8.6
Oppsummering over noen av de viktigste reguleringene (s. 334-336)
Øvingsoppgaver
Expand sub pages Kapittel
9.1
Øvingsoppgaver - del 1 (s. 338-343)
9.2
Øvingsoppgaver - del 2 (s. 344-352)
9.3
Øvingsoppgaver - del 3 (s. 353-363)
9.4
Øvingsoppgaver - del 4 (s. 363-367)
9.5
Praktisk øving på et Fgass-anlegg (s. 368)
9.6
Skjemaer, tabeller, formularer og diagrammer (s. 369-386)
9.7
Svar på øvingsoppgaver (s. 387)
Praktisk kuldeteknikk
Expand sub pages Publikasjon 1
Grunnleggende målesystem
Expand sub pages Kapittel
1.1
Grunnleggende målesystem
Varmelære
Expand sub pages Kapittel
2.1
Temperatur
2.2
Varmeenergi - varmestrøm
2.3
Aggregattilstander
2.4
Varmeoverføring
2.5
Oppvarming – nedkjøling
2.6
Smelting – størkning
2.7
Fordampning – kondensering
2.8
Varmeytelse - kuldeytelse
2.9
Blandinger
2.10
Kjøling av vann med is
2.11
Kaldtvannsanlegg
2.12
Oppgaver i varmelære
Beregning av kuldeanlegg
Expand sub pages Kapittel
3.1
Beregning av kuldeanlegg
3.2
Varebelastning
3.3
Frysing
3.4
Modningsvarme
3.5
Oppgaver i varmebelastning
Isolasjon
Expand sub pages Kapittel
4.1
Isolasjon
4.2
Varmemotstand (varmeisolans)
4.3
Varmemotstand (varmeovergangsisolans)
4.4
Varmegjennomgangskoeffisient (U-verdi)
4.5
Temperaturfall
4.6
Prefabrikerte isolasjonspaneler
4.7
Utjevningsventil
4.8
Oppgaver isolasjon
Klimateknikk
Expand sub pages Kapittel
5.1
Klimateknikk
5.2
Bruk av h-x diagram
5.3
Blanding av luft
5.4
Oppgaver i klimateknik
Bruk av beregningskjema
Expand sub pages Kapittel
6.1
Bruk av beregningskjema
Kuldeteknisk anlegg
Expand sub pages Kapittel
7.1
Kuldeteknisk anlegg - komponenter
7.2
Bruksområder
7.3
Kuldemedier
7.5
Global oppvarming
7.6
Norsk Standard
7.7
Tegneeksempel
Kuldetekniske diagrammer
Expand sub pages Kapittel
8.1
Kuldetekniske diagrammer
8.2
Kretsprosess – Modellprosess
8.3
Absolutt trykk – overtrykk
8.4
Spesifikt volum
8.5
Effektfaktor for kuldeanlegg og varmepumpe
8.6
Oppgaver i kuldeteknikk
Praktisk kuldeteknisk kretsprosess
Expand sub pages Kapittel
9.1
Praktisk kuldeteknisk kretsprosess
9.2
Overhetet damp
9.3
Trykk i væsker
9.4
Underkjølt væske
9.5
Underkjølt væske – overhetet damp
9.6
Trykktap i sugeledningen
9.7
Sugegassvarmeveksler
9.8
Et komplett anlegg
9.9
Isentropisk virkningsgrad
9.10
Leveringsgrad (Volumetrisk virkningsgrad)
9.11
Kompressorytelse – fordamperytelse
9.12
Temperaturglidning – et fenomen med noen nye kuldemedier
9.13
Oppgaver i kuldeteknikk
Strupeventil
Expand sub pages Kapittel
10.1
Strupeventil
10.2
Håndreguleringsventil
10.3
Automatisk strupeventil og kapillarrør
10.4
Termisk strupeventil
10.5
Fyllingen i termodelen
10.6
MOP ventil med begrenset fylling
10.7
Elektronisk styrt strupeventil
10.8
Flottører
Kuldeteknisk automatikk
Expand sub pages Kapittel
11.1
Fordampertrykksregulatoren
11.2
Kombinert anlegg
11.3
Sugetrykkregulatoren
11.4
Varmgassomløpsregulator
11.5
Termisk innsprøytingsventil
11.6
Kondensatortrykksregulator
11.7
Sikkerhetsventiler
11.8
Bruk av reguleringsteknisk automatikk
Fordamper
Expand sub pages Kapittel
12.1
Fordamper
12.2
Glattrørsfordampere
12.3
Kompakte fordampere
12.4
Fordamperteori
12.5
Utnytting av fordamperflaten
12.6
Valg av fordamper
12.7
Indirekte kjøling
12.8
Friksjon i væsker og gasser
12.9
Blandingsforhold for varme-/kuldebærer
12.10
Avriming
Kondensator
Expand sub pages Kapittel
13.1
Kondensator
13.2
Luftkjølt kondensator
13.3
Fordunstningskondensator
13.4
Kjøletårn
13.5
Legionella
13.6
Tørrkjøler
13.7
Vannkjølt kondensator
13.8
Kondensatorens varmeytelse
13.9
Væsketank
Kompressor
Expand sub pages Kapittel
14.1
Kompressor
14.2
Skruekompressor
14.3
Valg av kompressoraggregat
14.4
Balansediagram for fordamper - kompressor
14.5
Beregningsskjema for kuldeanlegg
Totrinnsanlegg
Expand sub pages Kapittel
15.1
Totrinnsanlegg
15.2
Mellomkjøler (trykkgassvarmeveksler)
15.3
Kompressorer
15.4
Kaskadeanlegg
15.5
Economizer
15.6
Beregning av to-trinnsanlegg
Olje i kuldeanlegget
Expand sub pages Kapittel
16.1
Olje i kuldeanlegget
16.2
Trykkgasstemperatur/oljetype
16.3
Oljeutskiller
16.4
Oljevarmer
16.5
Oljekjøler
16.6
Skifting og etterfylling av olje
16.7
Oljeutligning
16.8
Sugegassakkumulator
16.9
Oljeretur fra væskefylt fordamper
16.10
Avriming av væskefylte anlegg
16.11
Automatisk varmgassavriming
16.12
Oljeretur på ammoniakkanlegg
16.13
Luft i anlegget
16.14
Luftskiller
Montering av kuldeanlegg
Expand sub pages Kapittel
17.1
Vakuumtørking
17.2
Seglass med fuktighetsindikator
17.3
Tørkemiddel
17.4
Rørlegging
17.5
Fylling av kuldemedium
Spesielle kuldetekniske anlegg
Expand sub pages Kapittel
18.1
RSW - tankkjøling
18.2
Varmepumpe
18.3
Lufttørker
18.4
Transport av LPG gasser
18.5
R 744 – Karbondioksid – CO2
18.6
Totrinnsanlegg og anlegg for indirekte kjøling med naturlige kuldemedier
18.7
NS-EN 1861 Kuldetekniske symboler
Oppgaver i kuldeteknikk
Expand sub pages Kapittel
19.1
Oppgaver i kuldeteknikk
19.2
Ukeoppgaver i kuldeteknikk
19.3
Eksamensoppgaver
Diagrammer og tabeller
Expand sub pages Kapittel
20.1
Diagrammer og tabeller
RHB digitalt tillegg
Expand sub pages Publikasjon 1
Sanitaerinstallasjoner
Expand sub pages Kapittel
310.01
Vannkvalitet (REVIDERT: 2019-UTGAVEN)
Ledningsnett - sanitær
Expand sub pages Kapittel
312.42
Avløp fra utstyr - uten lufting
312.43
Avløp fra utstyr med lufting
312.72
Sirkulasjonsledninger 2
Armatur - sanitær
Expand sub pages Kapittel
314.11
Berøringsfrie armaturer (ENDRET: 2019-UTGAVEN)
314.21
Utette armaturer - lekkasjemengder
Utstyr - sanitær
Expand sub pages Kapittel
315.11
Vakuumtoaletter
315.81
Avfallskverner
Utstyr - varmanalegg
Expand sub pages Kapittel
325.03
Energimerking av bygg - 1
325.04
Energimerking av bygg - 2
325.05
Energimerking av bygg - 3
325.06
Energimåling for anlegg med varmepumper
325.23
Energibruk varmeprodukter
325.51
Røykgassanalyse (ENDRET: 2019-UTGAVE)
325.52
Lagring av olje utendørs
325.53
Lagring av olje innendørs (ENDRET: 2019-UTGAVEN)
325.61
Røykkanaler
Andre anleggstyper og branngjennomføringer
Expand sub pages Kapittel
345.10
Forskrift om trykkpåkjent utstyr (FTPU) eller Pressure Equipment Directive (PED)
Utvendig sanitæranlegg
Expand sub pages Kapittel
731.30
Nivellering 1 - utstyr
731.31
Nivellering 2 - høydemålinger
Bedrift, helse, miljø, og sikkerhet
Expand sub pages Kapittel
910.10
Sikker jobbanalyse
910.11
Entrepriseformer
910.13
Aktuelle lover, forskrifter og veiledninger
910.19
Varme arbeider
910.26
Varslingsskjema
910.29
Jobbdokumentasjon og samsvarserklæring
910.41
Kvalitetssikring - definisjoner og terminologi
910.43
Varer levert av kunden (REVIDERT – 2018-versjon)
910.45
Kundens overprøving av faglig råd
910.46
TFM-merkesystem for bygninger
910.57
Reparasjons- og rehabiliteringsarbeider (REVIDERT – 2018-versjon)
Føringsveier, rør og vannskadesikring
Expand sub pages Kapittel
940.41
Definisjoner av byggtyper – boliger (NYTT 2018)
Sanitærteknikk - Prosjektering og utførelse av sanitærinstallasjoner i bygg
Expand sub pages Publikasjon 1
Innholdsfortegnelse
Expand sub pages Kapittel
0.1
Forordet
0.2
Kildehenvisninger
Introduksjon til VA- og sanitærteknikkfaget
Expand sub pages Kapittel
1.1
Sanitærteknikkens historie
1.2
Lovverk og utdanning
1.3
Definisjoner og terminologi
1.4
Utvendige sanitæranlegg
1.5
Innvendige sanitæranlegg
1.6
Prosjektering av VA-anlegg
1.7
Prosjektering av sanitæranlegg i bygg
1.8
Sanitærinstallasjonens egenskaper og ytelser
1.9
Vannkvalitet
1.10
Vannkapasitet
1.11
Vannskader
1.12
Kvalitetssikring, dokumentasjon og kontrollrutiner
1.13
BIM
1.14
Dokumentasjon av produkter
VA-anlegg
Expand sub pages Kapittel
2.1
Hva omfatter betegnelsen VA-anlegg
2.2
Krav og normer
2.3
Distribusjonsnettet
2.4
Hovedvannledningen
2.5
Hovedspillvannsledningen
2.6
Hovedovervannsledningen
2.7
Lokal håndtering av overvann
2.8
Fellesledninger
2.9
Grøftefrie installasjoner
2.10
Rørinspeksjon
Stikkledninger
Expand sub pages Kapittel
3.1
Innledning
3.2
Krav og normer
3.3
Vannledninger
3.4
Spillvannsledninger
3.5
Overvannsledninger
3.6
Kummer
3.7
Pumpeløsninger
Grøfter
Vannledninger i bygg
Expand sub pages Kapittel
4.1
Krav og normer
4.2
Vanninntaket
4.3
Vannmengder
4.4
Vanntrykk
4.5
Føringsveier
4.6
Vannskadesikre installasjoner
4.7
Rørtyper
4.8
Skjøtemetoder
4.9
Isolering av vannledninger
4.10
Termisk isolering
4.11
Klamring av rør
4.12
Forenklet rørdimensjonering
4.13
Strømningsteknisk grunnlag og trykktapsdimensjonering
4.14
Legionella
4.15
Ventetider på kaldt- og varmtvann
4.16
Korrosjon
4.17
Vannforbruk
4.18
Vannbesparende tiltak
Spillvann og overvann i bygg
Expand sub pages Kapittel
5.1
Krav og normer
5.2
Betegnelser og føringsveier
5.3
Rørtyper, deler og systemer
5.4
Vannlåser
5.5
Ventilasjonsledninger (luftledninger)
5.6
Forenklet dimensjonering
5.7
Strømningsteknisk grunnlag
5.8
Klamring
5.9
Drenering
5.10
Innvendige taknedløp
5.11
Frost, støy, brann- og kondensisolering
5.12
Korrosjon
Utstyr og armaturer
Expand sub pages Kapittel
6.1
Tilbakeslagssikring av vann og avløp
6.2
Armaturer og ventiler
6.3
Sanitærutstyr
6.4
Utskillere
Vannvarmere
Expand sub pages Kapittel
7.1
Historisk tilbakeblikk
7.2
Innføring i og oppbygning av dagens varmtvannsberedere
7.3
Overordnede hensyn for varmtvannsberedere
7.4
Varianter og systemløsninger
7.5
Dimensjonering av varmtvannsberedere
Våtrom
Expand sub pages Kapittel
8.1
Krav og normer
8.2
Oppbygging av bad
8.3
Byggematerialer
8.4
Fall til sluk
8.5
Membransystemer - tetting rundt rør og sluk
8.6
Plassering av sanitærutstyr
Øvrige rom
Expand sub pages Kapittel
9.1
Krav og normer
9.2
Kjøkken
9.3
Toalettrom
9.4
Tekniske rom
9.5
Våtromskabiner
Brannsikring og brannslokking
Expand sub pages Kapittel
10.1
Generelt om brannsikring og kobling mot sanitæranlegg
10.2
Krav, normer og definisjoner
10.3
Manuell slokking
10.4
Sprinkleranlegg
10.5
Rørgjennomføring i brannskiller
Gråvannsvarmegjenvinning
Expand sub pages Kapittel
11.0
Generelt
11.1
Passiv gråvannsvarmegjenvinning
11.2
Aktiv gråvannsvarmegjenvinning
11.3
Kombinert aktiv og passiv gråvannsvarmegjenvinning
Sanitæranlegg i spredt bebyggelse
Expand sub pages Kapittel
12.1
Innledning
12.2
Ulike anleggstyper for rensing og utslipp av avløpsvann
12.3
Forbruksvann i spredtbebygde områder
Spesielle sanitæranlegg
Expand sub pages Kapittel
13.1
Innledning
13.2
Fontener
13.3
Vanningsanlegg
13.4
Husdyranlegg
13.5
Nødutstyr
13.6
Bilvaskeanlegg
13.7
Høye bygg
Støy fra sanitærinstallasjoner
Expand sub pages Kapittel
14.1
Introduksjon til lyd- og støyfaget
14.2
Lydteori
14.3
Lydutbredelse innendørs
14.4
Krav og normer til lyd og støy fra sanitæranlegg
14.5
Støy fra vanninstallasjoner
14.6
Støy fra avløpsledninger
14.7
Støyisolering av avløpsrør
Tegninger og symboler
Expand sub pages Kapittel
15.1
Tegnesymboler for sanitæranlegg
15.2
Tegninger for sanitæranlegg
15.3
Tegnesymboler for VA-anlegg
15.4
Tegninger for VA-anlegg
15.5
BIM
Drift, vedlikehold og merking av sanitærinstallasjoner
Expand sub pages Kapittel
16.1
Levetid
16.2
Dokumentasjon, drift- og vedlikeholdsinstruks
16.3
Røinspeksjon og rørfornying
16.4
Huseiers huskeliste
16.5
Byggdrifterens oppgaver
16.6
Merking
16.7
Lekkasjekostnader
Stensaas, Leif I. Ventilasjonsteknikk Del I - Grunnlaget og systemer (1998)
Expand sub pages Publikasjon 1
Forord og innledning
Expand sub pages Kapittel
1.1
Forord og innledning
Varmeteknisk grunnlag
Expand sub pages Kapittel
2.0
Innhold
2.1
Fuktig luft
2.2
Fuktighetsgrad
2.3
Fordunstning
Fysiologisk grunnlag
Expand sub pages Kapittel
3.0
Innhold
3.1
Generelt
3.2
Kroppens varmebalanse
3.3
Termiske behagelighetskriterier
3.4
Behovet for ventilasjon
3.5
Helsemessige og økonomiske konsekvenser av inneklimaet
Strømningsteknisk grunnlag
Expand sub pages Kapittel
4.0
Innhold
4.1
Kontinuitetsligningen
4.2
Bernouills ligning
4.3
Laminær og turbulent luftstrøm
4.4
Trykktap
Hovedtypene i ventilasjonsanlegg
Expand sub pages Kapittel
5.0
Innhold
5.1
Oppdriftsanlegg
5.2
Viftedrevne anlegg
Dimensjonering av klimaanlegg
Expand sub pages Kapittel
6.0
Innhold
6.1
Generelt
6.2
Dimensjonerende utetilstand
6.3
Varighetskurver
6.4
Dimensjonerende romklima
6.5
Varme- og kjølebelastning
6.6
Forenklet beregning av romtemperaturen
Lufttilførsel og avtrekk
Expand sub pages Kapittel
7.0
Innhold
7.1
Innledning
7.2
Luftvekslings- og ventilasjonseffektivitet/-indeks
7.3
Fortrengningsventilasjon
7.4
Stråleventilasjon
7.5
Maksimal kjøleeffekt
7.6
Innblåsning gj. spalteformede åpninger
7.7
Avtrekk gj. spalteformede åpninger
7.8
Utførte forsøk med luftinnblåsning
7.9
Strømningsforhold omkring avtrekksåpninger
Lyd og lyddemping i ventilasjonsanlegg
Expand sub pages Kapittel
Innhold
8.1
Grunnbegrep
8.2
Romakustikk
8.3
Lydkriterier, lydmåling
8.4
Lydkilder i ventilasjonsanlegg
8.5
Lyddempning
8.6
Lydisolasjon i og mellom rom
8.7
Vibrasjonsisolering
8.8
Lydberegninger
Kanaler
Expand sub pages Kapittel
9.0
Innhold
9.1
Kanaltverrsnittets utforming
9.2
Kanaldimensjonering
9.3
Kanalmaterialer, skjøtemetoder, tetthet
9.4
Ventilasjonssystemers tetthet
9.5
Kanalisolasjon
9.6
Branntekniske krav
Litteraturliste
Expand sub pages Kapittel
Litteraturliste
Tekniske bestemmelser - Standard abonnementsvilkår for vann og avløp
Expand sub pages Publikasjon 1
Forord og innledning
Expand sub pages Kapittel
0.1
Forord
0.2
Innledning
Generelt
Expand sub pages Kapittel
1
Generelt
Vannforsyning
Expand sub pages Kapittel
2.1
Dimensjonering
2.2
Tettehetskrav
2.3
Utførelse
2.4
Sikring mot forurensning
2.5
Stengeventiler
2.6
Vannmålere
2.7
Varmtvann
2.8
Energiøkonomisering
Avløp
Expand sub pages Kapittel
3.1
Dimensjonering
3.2
Utførelse
3.3
Beskyttelse mot luktproblemer
3.4
Beskyttelse mot slamavleiring
3.5
Beskyttelse mot tilbakeslag
3.6
Renovering av avløpsledninger
3.7
Uskillere og renseanlegg
Vedlegg
Expand sub pages Kapittel
4
Vedlegg
Kuldehåndboka 2007
Expand sub pages Publikasjon 1
Last ned Kuldehåndboka 2007
Expand sub pages Kapittel
Last ned Kuldehåndboka 2007
Veileder for vannbehandling i lukkede energianlegg
Expand sub pages Publikasjon 1
Last ned Veileder for vannbehandling i lukkede energianlegg
Expand sub pages Kapittel
Last ned Veileder for vannbehandling i lukkede energianlegg
Klimadata M21
Expand sub pages Publikasjon 1
Last ned Klimadata M21
Expand sub pages Kapittel
Last ned Klimadata M21
Arbeidsdokument
Expand sub pages Publikasjon 1
Introduction to ventilation
Expand sub pages Kapittel
1.0
Introduction
1.1
Brief history of ventilation
1.2
The different components in ventilation - a simple overview
1.3
Fresh air intake and air exhaust outlets
1.4
Air handling unit
1.5
Filter
1.6
Ducts
1.7
Dampers
1.8
Fire dampers
1.9
Silencers
1.10
Supply extract and transfer air devices
1.11
The occupied zone
1.12
Active cooling
1.13
Fans
1.14
Air curtains
1.15
Insulation
1.16
Automation
1.17
Units
Indoor climate
Expand sub pages Kapittel
2.0
Introduction
2.1
Indoor environment requirements
2.1.1
The Norwegian Labour Inspection Authority's guidance 444
2.1.2
“Regulations on technical requirements for building works” ("TEK17")
2.1.3
NS-EN ISO 7730
2.1.4
NS-EN 16798-1:2019
2.2
Thermal environment - the body's heat balance
2.2.1
The metabolism
2.2.2
Clothing
2.2.3
Mean radiant temperature
2.2.4
Operative temperature
2.2.5
The heat balance equation
2.2.6
The comfort diagram
2.3
Comfort criteria
2.3.1
PVM-index
2.3.2
PPD-index
2.4
Local thermal discomfort
2.4.1
Vertical temperature gradient
2.4.2
Asymmetric thermal radiation
2.4.3
Draught
2.4.4
The significance of the humidity level
2.5
Consequences of poor indoor climate
2.5.1
Health problems
2.5.2
Sick Building Syndrome (SBS)
2.5.3
Reduced work efficiency
2.6
Indoor clima studies
Humid air
Expand sub pages Kapittel
3.0
Introduction
3.1
Demand specifications related to humidity content
3.2
Diagram for humid air - The Mollier diagram
3.3
Equations for humid air
3.3.1
The equation of state
3.3.2
Absolute humidity
3.3.3
Degree of saturation and relative humidity
3.3.4
Calculation of relative humidity and dew point temperature
3.3.5
The specific mass and density of humid air
3.3.6
The enthalpy of humid air
3.4
The build-up of the Mollier diagram
3.4.1
The unsaturated area of the h-x diagram
3.4.2
The saturated area of the h-x diagram
3.4.3
The h-x diagram with other total pressures
3.4.4
The boundary scale in the h-x diagram, dh/dx
3.5
Process changes in the h-x diagram
3.5.1
Mixture of two air volumes
3.5.2
Cooling of air
3.5.3
Humidification
3.5.4
Dehumidification
Varmeoverføring
Expand sub pages Kapittel
4
Heat transfer
4.1
Heat recovery - an overview
4.1.1
Temperature efficiency, annual average temperature efficiency and annual energy efficiency
4.1.1.1
Temperature efficiency
4.1.1.2
“Dry efficiency” and mean annual temperature efficiency
4.1.1.3
Annual energy efficiency
4.2
Heating and cooling coils, an overview
4.2.1
Various connections
4.3
Basics of heat transfer
4.4
Heating coils and cooling coils
4.4.1
Calculation of heat transfer
4.4.2
Flow patterns
4.4.2.1
Counter flow coupling
4.4.2.2
Parallel-flow coupling
4.4.2.3
Cross flow coupling
4.4.2.4
Heating and cooling coil in a heat pump process
4.4.3
Calculation of heat transfer with the ε,NTU method
4.4.4
Heat transfer on moist surfaces
4.5
Heat recovery units
4.5.1
Heat pumps
4.5.2
Rotary heat recovery exchanger
4.5.2.1
Various types of rotary heat exchangers
4.5.3
Cassette exchanger
4.5.4
Plate heat exchanger
4.5.4.1
Cross flow plate heat exchanger
4.5.4.2
Counter flow plate heat exchanger
4.5.5
Run-around heat recovery exchanger
4.6
Chilled beams and adiabatic cooling
4.6.1
Chilled beam
4.6.1.1
Passive cooling coil with chilled beam (with natural convection)
4.6.1.2
Active chilled beam
4.6.2
Adiabatic cooling
Basic fluid mechanics
Expand sub pages Kapittel
5
Basic fluid mechanics
5.1
The continuity equation
5.2
Bernoulli’s equation
5.2.1
Pressure measurements
5.3
Pressure changes in the ducting system
5.3.1
Friction losses and pressure loss gradient diagram
5.3.1.1
Hydraulic diameter
5.3.1.2
Equivalent diameter
5.3.2
Impact or local losses
5.4
Fluid mechanics with equations
5.4.1
Reynolds numbers
5.4.1.2
Kinematic viscosity
5.4.2
Laminar and turbulent airflow
5.4.3
Friction loss with equations
5.4.3.1
Moody's diagram
5.4.4
Impact loss (Minor loss)
5.4.4.1
Cross-sectional expansion
5.4.4.2
Cross-sectional reduction
5.4.4.3
Bend
5.4.4.4
Branching
5.4.4.5
Other minor losses
5.5
Pressure drop calculation and balancing
5.5.1
Pressure drop calculation and balancing without optimization
5.5.2
Pressure drop calculation and balancing with optimization
Airflow requirements
Expand sub pages Kapittel
6
Airflow requirements
6.1
Minimum requirements in the building technical regulations TEK17
6.1.1
§ 13-2 Ventilation in residential buildings
6.1.2
§ 13-3 Ventilation in construction work for the public and work buildings
6.1.3
NS-EN 15251
6.2
Guidance 444
6.3
The need for ventilation for persons and materials
6.3.1
Comfort criteria - perceived air quality
6.3.1.1
Airflow rates based on olf and decipol
6.3.1.2
Airflow rates based on CO₂
6.3.2
Ventilation for health
6.3.2.1
Regulations concerning Action and Limit Values
6.3.2.2
Ventilation of the garage
6.3.3
Emissions - volatile organic compounds (VOC)
6.3.3.1
Low-emitting building constructions
6.3.4
Non-stationary conditions
6.3.5
Air exchange
6.4
Air conditioning
6.4.1
Control of temperature
6.4.1.1
Heat loss due to transmission
6.4.1.2
Heat loss due to infiltration
6.4.1.3
Heat loss due to ventilation
6.4.1.4
Heat gains due to internal loads
6.4.1.5
Heat gain from occupants
6.4.1.6
Heat gain from the sun
6.4.1.7
Heat storage
6.4.1.8
Simplified method for calculating power demand for cooling
6.4.2
Control on the humidity level
Main types of ventilation systems
Expand sub pages Kapittel
7
Main types of ventilation systems
7.1
General introduction
7.2
Natural ventilation
7.2.1
Thermal buoyancy
7.2.1.1
Thermal buoyancy with ductwork
7.2.1.2
Thermal buoyancy in tall buildings
7.2.1.3
Gates and doorways
7.2.2
Wind pressure
7.2.2.1
The shape factor of the building
7.2.2.2
Wind speed
7.2.2.3
Terrain roughness
7.3
Extract ventilation
7.3.1
Pressure conditions for exhaust ventilation
7.3.2
Fresh air outlets
7.3.2.1
Flap vents
7.3.2.2
Trickle vents
7.3.2.3
Fresh air vents with integrated heating
7.3.3
Exhaust air heat pump
7.3.3.1
Annual average coefficient of performance
7.3.3.2
Annual average distribution efficiency
7.3.3.3
Annual average room efficiency
7.4
Balanced ventilation
7.4.1
Ventilation of single-unit dwellings and row houses
7.4.2
Ventilation of apartments
7.4.3
Ventilation in commercial buildings
7.5
Hybrid ventilation
7.5.1
System solution
7.5.2
Automatic window opening
Airflow patterns in rooms (under construction)
Expand sub pages Kapittel
8
Airflow patterns in rooms
8.1
Ventilation principles
8.1.1
The occupied zone
8.1.2
Ventilation efficiency
8.1.2.1
Air change rate (n)
8.1.2.2
Ventilation efficiency (εv)
8.1.2.3
Temperature efficiency (εvt)
8.1.3
Mixing ventilation
8.1.3.1
Air throw length
8.1.3.2
The Coanda effect
8.1.3.3
Maximum penetration length
8.1.3.4
Blackening around the supply air terminal device
8.1.3.5
Supply air with excess temperature
8.1.3.6
Supply air terminal devices for mixing ventilation
8.1.4
Displacement ventilation
8.1.4.1
Stratification layer height
8.1.4.2
Near zone
8.1.4.3
Temperature gradient
8.1.4.4
Supply air devices for displacement ventilation
8.1.5
Extract devices
8.1.5.1
Extract devices for mixing ventilation
8.1.5.2
Extract devices for displacement ventilation
8.1.5.3
Different types of extract devices
8.2
Ventilation effectiveness indices
8.2.1
The age of air
8.2.1.1
Piston flow
8.2.1.2
Tracer gas measurements
8.2.2
Air change efficiency (εa)
8.2.2.2
Fully mixed flow
8.2.2.3
Displacement flow
8.2.3
Local air change index (εaP)
8.2.4
Contaminant removal effectiveness (εc or εcoz)
8.2.5
Local air quality index (εcP)
8.3
Airflow patterns
8.3.1
Free horizontal isothermal air jet
8.3.1.1
Circular jet, approximately isothermal
8.3.1.2
Plane jet, approximately isothermal
8.3.1.3
Radial jet, approximately isothermal
8.3.1.4
Relation between throw lengths and different end velocities
8.3.2
Non-isothermal air jet
8.3.2.1
Archimedes number
8.3.2.2
Separation distance
8.3.2.3
Penetration length for a horizontal jet
8.3.2.4
Penetration curve
8.3.2.5
Vertical jets affected by thermal forces
8.3.3
Natural convection
8.3.3.1
Convection currents from heat sources in rooms without temperature gradient
8.3.3.2
Convection current from heat source in a room with temperature gradient
8.3.3.3
Vertical air movements from hot or cold surfaces
Sound and noise reduction in ventilation systems
Expand sub pages Kapittel
9
Sound and noise reduction in ventilation systems
9.1
Sound requirements in ventilation systems
9.1.1
Sound requirements in residential buildings
9.1.2
Sound requirements for offices
9.1.3
Sound pathways
9.2
What is sound?
9.2.1
Frequency
9.2.2
Sound intensity, sound power and sound pressure
9.2.3
Logarithmic scale and summation of sound
9.2.4
Adaptation to our hearing - A filter
9.2.4.1
A, C and Z filters
9.2.4.2
RC curves
9.3
Sound propagation indoors
9.3.1
Directional factor
9.3.2
Absorption factor
9.3.3
Reverberation time
9.3.4
Room constant and room attenuation
9.3.4.1
Sound level in large not sound attenuated rooms
9.3.4.2
Sound level in sound attenuated rooms
9.4
Sound propagation outdoors
9.5
Sound attenuation in the ventilation system
9.5.1
Silencers
9.5.1.1
Dissipative silencers
9.5.1.2
Active silencer
9.5.2
Sound attenuation at the end of the duct
9.5.2.1
Sound attenuation at end reflection
9.5.2.2
Internal attenuation in the terminal device
9.5.3
Sound attenuation in the ductwork
9.5.3.1
Sound attenuation in straight ducts without internal insulation
9.5.3.2
Sound attenuation in straight ducts with internal insulation
9.5.3.3
Sound attenuation in duct branches
9.5.3.4
Sound attenuation in bends
9.5.3.5
Sound attenuation in plenum chambers
9.5.3.6
Sound attenuation in other ventilation components
9.6
Sound generation in the ventilation system
9.6.1
Sound generation in a straight duct
9.6.2
Sound generation in bends and branches
9.6.3
Sound generation in silencers
9.7
Sound documentation for ventilation components
9.7.1
Sound documentation for terminal devices
9.7.2
Sound documentation for damper
9.7.3
Sound documentation for fans and aggregates
9.8
Sound calculations
9.9
Sound transmission
9.9.1
The sound reduction factor
9.9.3
Flanking sound
9.9.3.1
Sound transmission through ducts without openings
9.9.4
Leakage
9.9.5
Sound transmission through the ductwork
9.9.6
Sound transmission through transfer grilles
9.10
Sound measurements
9.10.1
Indoor sound measurements
9.11
Vibrations
9.11.1
Vibration requirements
9.11.3
Vibration attenuation
9.12
Troubleshooting
9.12.1
Initial measurements
9.12.2
Sound problems
9.12.3
Vibration problems
Energy use in buildings
Expand sub pages Kapittel
10
Energy use in buildings
10.1
Regulatory requirements for energy use
10.1.1
NS 3031 Calculation of buildings energy performance
10.1.2
Net energy need and delivered energy
10.1.3
Energy labelling and energy assessment
10.1.3.1
Energy labelling
10.1.3.2
Energy grade
10.1.3.3
Heating grade
10.1.4
Energy assessment
10.2
Energy for fan operation
10.2.1
The proportional laws
10.2.2
The operating point of the fan and the fan system curve
10.2.2.1
Change in air flow rate and pressure
10.2.2.2
System curve with pressure control
10.2.3
SFP value
10.2.3.1
Different SFP values to be documented
10.3
Energy need for heating in buildings
10.3.1
Degree days and the Degree Day Method
10.3.2
Duration diagrams
10.3.2.1
Energy need for heating without heat recovery
10.3.2.2
Energy need for heating with heat recovery
10.3.2.3
Humidity duration diagram
10.4
Energy need for cooling in buildings
10.4.1
Enthalpy duration diagram
10.4.2
Cooling recovery
10.5
Power demand duration curve
10.6
LCC - Life Cycle Cost
10.6.1
Net Present Value
10.6.2
The annual cost method (annuity method)
10.6.3
Internal rate of return
10.6.4
Payback Time
10.7
Control of energy consumption
10.7.1
Energy signature (ET curve)
10.7.2
Degree days
10.7.3
Average temperatures
10.7.4
Dynamic calculation - advanced method
Demand-controlled ventilation
Expand sub pages Kapittel
11
Demand-controlled ventilation
11.1
An introduction
11.1.1
Demand-controlled and occupant-controlled ventilation
11.1.2
Spare capacity
11.1.3
Pitfalls and common mistakes
11.1.4
Full airflow rate in case of fire
11.2
Energy saving with demand-controlled ventilation
11.2.1
Simultaneity
11.2.2
Fan energy savings
11.2.3
Energy saving for the reheating coil
11.2.4
Energy savings for space heating
11.3
Components in the ductwork
11.3.1
DCV damper
11.3.1.1
Adjustment of airflow rate
11.3.1.2
Distance to flow disturbances
11.3.1.3
Master/slave coupling compared to parallel coupling
11.3.2
DCV device (active supply air device)
11.3.3
Automatic mechanical CAV damper
11.3.4
Damper with actuator
11.3.5
Pressure-controlled zone
11.4
Control parameter in the room
11.4.1
Location of sensors
11.4.1.1
Sensor location for displacement ventilation
11.4.1.2
Sensor location with mixing ventilation
11.4.2
Motion detector
11.4.3
Temperature sensor
11.4.4
CO2 and temperature sensor
11.5
Selection of building automation principle
11.5.1
Lokalt regulert anlegg
11.5.2
Centrally controlled system
11.5.2.1
Management level (Building Automation System (BAS))
11.5.2.2
Automation level
11.5.2.3
Field level
11.5.2.4
Distributed intelligence
11.6
Selection of control principle for fans
11.6.1
Pressure-controlled system
11.6.1.1
Static pressure sensor near the air-handling unit
11.6.1.2
Static pressure sensor in the duct
11.6.1.3
Pressure control with zone damper
11.6.2
Optimally controlled system
11.6.2.1
Fan speed control based on damper angle
11.6.2.2
Damper angle control with zone damper
11.6.2.3
Optimization via pressure point adjustment
11.6.2.4
Active supply air devices
11.6.3
Mixing of variable and constant zones in the same ductwork
11.6.3.1
Pressure-controlled system and air supply from pressure-controlled duct
11.6.3.2
Automatic mechanical CAV damper to constant flow rate room
11.6.3.3
Pressure control of the zone
11.7
Design baseline and documentation
11.7.1
Functional description
11.7.2
Room form with tags and airflow rates
11.7.3
Topology chart
11.8
Functional testing at handover and performance testing
11.8.1
Start-up of a pressure-controlled system
11.8.1.1
Pressure-controlled system / zone without optimal function
Pressure-controlled system / zone with DCV damper and balancing damper
11.8.2
Performance test
11.8.2.1
Maximum simultaneity of the building
11.8.2.2
Minimum airflow rate in the building
11.8.2.3
How to change the set airflow rate
11.8.2.4
Test measurement of airflow rate
11.8.2.5
Spot check by third party inspection
Ducts
Expand sub pages Kapittel
12
Ducts
12.1
Air tightness
12.2
Round ducts
12.3
Rectangular ducts
12.3.1
Joining of rectangular ducts
12.4
Pressure drop
12.4.1
Pressure loss in ducts
12.4.2
Pressure loss over components
12.4.3
System characteristics
12.4.4
Fan characteristic and operating point
12.5
Material requirements
12.6
Cleanness
12.6.1
Check of cleanness
12.6.1.1
Gravimetric measurement
12.6.1.2
Film thickness
12.6.1.3
Optical measurement
12.6.2
Duct cleaning
12.6.2.1
Manual methods vacuuming and wiping
12.6.2.2
Rotating brushes
12.6.2.3
Compressed air
12.6.2.4
Dry ice
12.7
Hanging
12.8
Labelling
12.9
Planning the duct system
12.10
Duct design for CAV systems
12.10.1
Supply air ducts
12.10.1.1
Bahco's 1/3 method
12.10.1.2
The velocity method
12.10.1.3
Constant pressure drop method
12.10.1.4
Static pressure recovery method
12.10.1.5
Constant size
12.10.2
Extract ducts
12.11
Duct desig of demand-controlled systems
Inneklima, FDV og HMS i praksis
Expand sub pages Publikasjon 1
Intro
Expand sub pages Kapittel
Intro
Forord
Expand sub pages Kapittel
Forord
Om forfatterne
Innholdsfortegnelse
Expand sub pages Kapittel
Innholdsfortegnelse
1 Innledning
Expand sub pages Kapittel
Innledning
Klimagassutslipp og FDV
Internkontrollsystemet må brukes aktivt
Sentrale råd og utvalg
Eksempler på ressurser og bidragsytere i skolers inneklima-, HMS- og FDV-arbeid
2 Grunnleggende om FDV
Expand sub pages Kapittel
Grunnleggende om FDV
Organisering av FDV-arbeidet
Samhandling er nøkkelen til godt FDV-arbeid
Opplæring av brukere og brukermedvirkning
3. Utemiljøets innvirkning på inneklimaet
Expand sub pages Kapittel
Utemiljøets innvirkning på inneklimaet
Uteluftens betydning for inneluften
Noen erfaringer om utemiljøets betydning for inneklimaet
4. Inneklima i bygninger
Expand sub pages Kapittel
Inneklima i bygninger
Termisk miljø («Temperaturmiljø»)
Luftkvalitet
Luftbåren smitte
VOC (Volatile Organic Compounds eller “flyktige organiske forbindelser”)
Luftfuktighet
Om fukt og hvordan fuktskader kan oppstå
Akustikk og støy
Lys og stråling
Mekanisk miljø (inventar, innredning og utstyr)
5. Oppvarmings-løsninger
Expand sub pages Kapittel
Oppvarmings-løsninger
Elektriske ovner
Elektrisk gulvvarme
Elektrisk og vannbåren takvarme
Vannbårne varme, radiatorer
Vannbåren gulvvarme
Sjekkliste for elektrisk oppvarming
Sjekkliste for vannbåren oppvarming
6 Ventilasjonsløsninger
Expand sub pages Kapittel
Ventilasjonsløsninger
Naturlig ventilasjon
Lufting med bruk av vindu
Mekanisk avtrekksventilasjon
Mekanisk balansert ventilasjon
Hybrid ventilasjon
Prinsipper for ventilasjon av rom
Omrøringsventilasjon
Fortrengningsventilasjon
Komponenter i ventilasjonsanlegg
Vifter
Varmegjenvinnere
Lydfeller
Brannspjeld
Filter
Filterklasser etter ny og gammel standard
Luftinntak og plassering av dette
Behovsstyrt ventilasjon
Innregulering av ventilasjonsanlegg
Ofte finner man ulike ventilasjonsløsninger i samme bygning
7 Sjekklister for de ulike ventilasjonsprinsipper
Expand sub pages Kapittel
Sjekklister for de ulike ventilasjonsprinsipper
Sjekkliste for naturlig ventilasjon
Sjekkliste for lufting med vindu
Sjekkliste for mekanisk avtrekksventilasjon
Sjekkliste for mekanisk balansert ventilasjon
Sjekkliste for hybrid ventilasjon
8 Renhold og brukervirkning
Expand sub pages Kapittel
Renhold og brukervirkning
9 Hvordan vedlikehold og drift av bygningens uteområder påvirker inneklimaet
Expand sub pages Kapittel
Hvordan vedlikehold og drift av bygningens uteområder påvirker inneklimaet
Overvannshåndtering – forebyggende arbeid
Sjekkliste ved kartlegging av utemiljø og tomt
10 Bygningskroppen og håndtering av klimabelastninger
Expand sub pages Kapittel
Bygningskroppen og håndtering av klimabelastninger
11 Håndtering av fukt og muggsopp
Expand sub pages Kapittel
Håndtering av fukt og muggsopp
Eksempel på bruk av planskisser ved kartlegging av lekkasjer og fuktskader
12 Hygiene og sanitæranlegg
Expand sub pages Kapittel
Hygiene og sanitæranlegg
13 Håndtering av støykilder
Expand sub pages Kapittel
Håndtering av støykilder
14 Lysanlegg
Expand sub pages Kapittel
Lysanlegg
Fordeler og ulemper med nye og tidligere brukte lyskilder
15 Radon, stråling og elektromagnetisk
Expand sub pages Kapittel
Radon, stråling og elektromagnetisk
Elektromagnetiske felt
16 Medvirkning vil ofte bidra til bedre utforming og innredning
Expand sub pages Kapittel
Medvirkning vil ofte bidra til bedre utforming og innredning
17 Sentral driftskontroll
Expand sub pages Kapittel
Sentral driftskontroll
18 Bruk av sensorer for overvåkning av inneklima
Expand sub pages Kapittel
Bruk av sensorer for overvåkning av inneklima
Eksempel på praktisk bruk av data fra inneklimasensorene i skolens inneklimaarbeid
19 Sjekklister for bygging og ombygging
Expand sub pages Kapittel
Sjekklister for bygging og ombygging
Sjekkliste for ivaretakelse av inneklima og HMS ved bestilling av håndverkstjenester
20 Risikovurdering av inneklima og FDV
Expand sub pages Kapittel
Risikovurdering av inneklima og FDV
Mal for fotosafari som forarbeid til risikovurdering
21 Idébank for bedre inneklima
Expand sub pages Kapittel
Idébank for bedre inneklima
1. For varmt
2. For kaldt
3. Trekk/kaldt
4. Ventilasjon og lufting
5. Fukt og muggsopp
6. Lyd/støy
7. Belysning
8. Solinnstråling
9. Teknisk drift
10. Vedlikehold
11. Renhold
12. Brann/sikkerhet
13. Brukermedvirkning
Kilder
Expand sub pages Kapittel
Kildehenvisninger
Nyttige nettsider
Tilgjengelige ressurser og støttetjenester
Vedlegg
Expand sub pages Kapittel
Vedlegg
VEDLEGG A: Brukere som miljøfaktor
VEDLEGG B: Avkrysningsskjema for enkel
VEDLEGG C: Intervjuguide
VEDLEGG D: Flytskjema for bedre inneklima i klasserom
18.53 910.97.1 Smittevern på arbeidsplassen NY…
18.55 910.93 Råd og tips for oppdrag mellom næ…
18.54
910.97.2 Trygghet for kunde og rørlegger - Sjekkliste Sikker Rørlegger NYTT!
910.97.2 Trygghet for kunde og rørlegger - Sjekkliste Sikker Rørlegger NYTT!
Last ned skjemaet som PDF: klikk på bildet over.
18.53 910.97.1 Smittevern på arbeidsplassen NY…
18.55 910.93 Råd og tips for oppdrag mellom næ…
Publikasjoner
Rørhåndboka Pluss 2025
Expand sub pages Publikasjon 1
Forord
Expand sub pages Kapittel
1
Forord
Kontakt
Expand sub pages Kapittel
3.1
Hovedkontor
3.2
Avdeling
3.3
Opplæringskontorer
3.4
Styret
310. Sanitærinstallasjoner
Expand sub pages Kapittel
Aktuelle leverandører innenfor dette området
4.1
310.00 Prosjektering av sanitæranlegg
4.2
310.01 Vannkvalitet
4.3
310.02 Vannrensing – drikkevann
4.4
310.04 Vannforbruk
4.5
310.05 Vannmålere og montering av disse
4.6
310.21 Bransjeregler for nybygg og rehabilitering
4.7
310.22 Bransjeregler for service
4.8
310.23 ABC for dokumentering ved riktig installasjon – samsvarserklæring
4.9
310.24 Samvarserklæring servicejobb
4.10
310.31 Søknadspliktige sanitærinstallasjoner
311. Bunnledninger for sanitærinstallasjoner
Expand sub pages Kapittel
Aktuelle leverandører innenfor dette området
5.1
311.01 Jordingsmuffe og jording på rørnett
5.2
311.02 Forgreninger, høyder, oppstikk og etterarbeider
5.3
311.03 Dimensjoner, lufting og stakepunkter
5.4
311.04 Vannledninger i kjellergulv
5.5
311.05 Oppheng av bunnledning
5.6
311.06 Radonsperre og oppstikk
312. Ledningsnett for sanitærinstallasjoner
Expand sub pages Kapittel
6.1
312.03 Dimensjonering og lufting av ventilerte og uventilerte avløpsledninger
6.2
312.04.1 Dimensjonering av vannledninger
6.3
312.04.2 Tilstrekkelig vannmengde og tilfredsstillende trykk
6.4
312.05 Regneark for enkel dimensjonering av vann- og avløpsledninger
6.5
312.06 Trykktapsnomogram for vannledninger
6.6
312.07 Rørkvaliteter – vannledninger
6.7
312.08 Rørkvaliteter – avløpsledninger
6.8
312.09 ABS-avløpsrør
6.9
312.10 Våtromsgjennomføringer i gulv
6.10
312.11 Gjennomføringer i våtromsvegger
6.11
312.15 Eldre vannledninger – reparasjon og tilknytninger
6.12
312.16 Støy fra rør – generelt
6.13
312.17 Støy fra avløpsrør
6.14
312.18 Støy fra vannledninger
6.15
312.31 Tetthetsprøving av vann- og avløpsledninger innomhus
6.16
312.40 Lufting av avløpsledninger
6.17
312.41 Avløp fra klosetter
6.18
312.42 Avløp fra utstyr - uten lufting
6.19
312.43 Avløp fra utstyr med lufting
6.20
312.45 Strømningsforhold i avløpsrør
6.21
312.50 Rør-i-rør-system – generelt
6.22
312.51 Tegning av rør-i-rør-system 1
6.23
312.52 Tegning av rør-i-rør-system 2 – forslag til symboler
6.24
312.53 Fordelerskap for rør-i-rør-system - lekkasjesikring
6.25
312.54 Utskifting av innerrør i rør-i-rør-system
6.26
312.70 Ventetider og tappetemperatur for kaldt- og varmtvann
6.27
312.71 Sirkulasjonsledninger 1
6.28
312.72 Sirkulasjonsledninger 2
6.29
312.73 Varmekabler for varmtvannsrør
6.30
312.74 Varmeoverføring fra varmtvannsrør til kaldtvannsrør
6.31
312.81 Takavvanning
6.32
312.82 Innvendig taknedløp – dimensjonering
314. Armaturer for sanitærinstallasjoner
Expand sub pages Kapittel
7.1
314.01 Blandebatterier
7.2
314.02 Sviktende vanntilførsel
7.3
314.03 Plassering av ventiler
7.4
314.06 Vanninntak, inntaksskap og etterarbeider
7.5
314.08 Automatiske lekkasjestoppere
7.6
314.08.1 Sjekkliste for montering av automatisk lekkasjestopper
7.7
314.09 Lekkasjestoppere i nærings- og publikumsbygg, hoteller og institusjoner
7.8
314.10 Alternative løsninger for vannskadesikring av toalettrom
7.9
314.11 Berøringsfrie armaturer
7.10
314.21 Utette armaturer - lekkasjemengder
7.11
314.45 Tilbakestrømming i vannledninger
7.12
314.46 Tilbakestrømming i vannledninger – valg av sikring etter NS 1717
7.13
314.47 Plassering av tilbakeslagsventiler i boliger
7.14
314.48 Tilbakeslagsventil, reduksjonsventil og ekspansjonskar
7.15
314.50 Hagevanning
315. Utstyr for sanitærinstallasjoner
Expand sub pages Kapittel
8.1
315.01 Servant
8.2
315.02 Veggmonterte klosetter med skjulte sisterner
8.3
315.03 Bidet
8.4
315.04 Vaskekar og utslagsvask
8.5
315.05 Brannskap og branntromler
8.6
315.06 Badekar, dusjbatteri og tappekran
8.7
315.07 Urinal og drikkefontene
8.8
315.08 Kjøkkenbenk med oppvaskmaskin
8.9
315.09 Sammenfatning av høyder på sanitærutstyr
8.10
315.11 Vakuumtoaletter
8.11
315.20 Spikerslag for utstyr
8.12
315.21 Feste av vegghengte toaletter
8.13
315.30 Plassbehov – alminnelig sanitærutstyr
8.14
315.40 Plassbehov – sanitærrom for bevegelseshemmede
8.15
315.41 Universell utforming
8.16
315.43 Vannlåser
8.17
315.45 Sluk
8.18
315.46 Slukrenner
8.19
315.47 Hjørnesluk
8.20
315.51 Feilsøking på element i standard vannvarmere
8.21
315.52 Lavtrykksvannvarmere
8.22
315.53 Høytrykksvannvarmere (varmtvannsberedere)
8.23
315.54 Høytrykksvannvarmere – indirekte oppvarming
8.24
315.55 Varmt forbruksvann fra fjernvarmeanlegg
8.25
315.60 Hydroforanlegg – generelt
8.26
315.61 Hydroforanlegg, anlegg for sugehøyder mindre enn 7 meter
8.27
315.62 Hydroforanlegg, anlegg for større sugehøyder enn 7 meter
8.28
315.65 Trykkøkningsanlegg i boliger
8.29
315.81 Avfallskverner
8.30
315.91 Våtromskabiner
316. Isolasjon av sanitærinstallasjoner
Expand sub pages Kapittel
9.1
316.01 Isolering av innvendige sanitæranlegg
9.2
316.05 Isolering mot legionella
9.3
316.11 Isolering av utvendige sanitæranlegg
320. Varmeanlegg, generelt
Expand sub pages Kapittel
10.1
320.00 Prosjektering av vannbåret varmeanlegg
10.2
320.01 Huskeliste for dimensjonering, valg og plassering av komponenter
321. Ledningsnett, Varmeanlegg
Expand sub pages Kapittel
11.1
321.02 Dimensjonering av varmeledninger
11.2
321.05 Krav til lekkasjesikring av varme- og kuldeinstallasjoner
11.3
321.10 Lufting av varme- og kjøleanlegg
11.4
321.11 Luft i vannbårne anlegg – Vakuumavgasser
11.5
321.12 Vakuumutluftere
11.6
321.31 Vannbehandling av vannbårne anlegg - generelt
11.7
321.32 Vannkvalitet i lukkede anlegg – luft, korrosjon og sedimentering
11.8
321.33 Vannkvalitet i lukkede anlegg – analyse og vannbehandlingsmetoder
324. Armatur, varmeanlegg
Expand sub pages Kapittel
12.1
324.01 Montering av shuntventiler
12.2
324.02 Shuntventiler – typer og plassering
12.3
324.03 Varmelåser
12.4
324.04 Dynamiske reguleringsventiler – innreguleringsfrie anlegg
12.5
324.10 Innregulering
12.6
324.21 Energimålere
325. Utstyr, varmeanlegg
Expand sub pages Kapittel
13.1
325.01 Effekt- og energibehov – overslagsberegninger
13.2
325.02 Energikrav etter TEK17
13.3
325.03 Energimerking av bygg – 1
13.4
325.04 Energimerking av bygg – 2
13.5
325.05 Energimerking av bygg – 3
13.6
325.06 Energimåling for anlegg med varmepumper
13.7
325.07 Radiatorer 1 – størrelser og plassering
13.8
325.08 Radiatorer – typer og koblinger
13.9
325.09 Konvektorer
13.10
325.10 Viftekonvektorer og varmluftsvifter
13.11
325.11 Gulvvarmeanlegg – argumenter for valg
13.12
325.12 Gulvvarmeanlegg – kvalitetssikring av prosjektering og utførelse
13.13
325.13 Kombinasjon ettrørsanlegg – torørsanlegg og gulvvarme
13.14
325.15 Ettrørsanlegg for vannbåren varme
13.15
325.18 Snøsmelting og gateoppvarming 1
13.16
325.19 Snøsmelting og gateoppvarming 2
13.17
325.20 Prosjektering og uttak av pumper i energianlegg
13.18
325.21 Montering av pumper
13.19
325.22 Merking av pumper
13.20
325.23 Energibruk i varmeprodukter
13.21
325.31 Montering av trykkekspansjonskar
13.22
325.32 Trykkekspansjonskar – overslagsberegninger
13.23
325.33 Sikkerhetsventiler og sikkerhetsledninger
13.24
325.35 Ekspansjonskar med kompressor
13.25
325.36 Trykkekspansjonskar med pumpe
13.26
325.40 Varmepumper – typer og regelverk
13.27
325.41 Akkumuleringstank i varmeanlegg – koblingsalternativer
13.28
325.42 Sammenkobling av varmepumpe og andre varmekilder
13.29
325.43 Varmepumpe for rom- og/eller tappevannsoppvarming
13.30
325.44 Prinsipper for alternativ energibruk for gulvvarmeanlegg
13.31
325.45 Fjernvarme I
13.32
325.46 Fjernvarme II
13.33
325.47 Varmevekslere
13.34
325.48 Prinsipper for alternative koblinger til fjernvarme
13.35
325.49 Akkumuleringstank til varmepumpe – dimensjonering
13.36
325.51 Røkgassanalyse
13.37
325.52 Lagring av olje utendørs
13.38
325.53 Lagring av olje innendørs
13.39
325.54 Tilkopling av oljetanker
13.40
325.55 Sanering av oljetanker
13.41
325.56 Biofyringsolje
13.42
325.61 Røykkanaler
13.43
325.71 Biobrenselanlegg 1
13.44
325.72 Biobrenselanlegg 2
13.45
325.74 Solenergianlegg 1
13.46
325.75 Solenergianlegg 2
13.47
325.82 Dimensjonering av energibrønner til væske/vann-varmepumper
13.48
325.81 Energibrønner til væske/vann-varmepumper
326. Isolasjon – varmeanlegg
Expand sub pages Kapittel
Aktuelle leverandører
14.1
326.01 Isolasjonsmaterialer for rør
14.2
326.02 Isolasjonstykkelser – varmeanlegg
330–390. Andre anleggstyper og branngjennomføringer
Expand sub pages Kapittel
Aktuelle leverandører
15.1
332.01 Sprinkleranlegg – generelt/lover og regelverk
15.2
332.02 Sprinkleranlegg – myndighetskrav
15.3
332.03 Sprinkleranlegg – anleggstyper
15.4
332.04 Sprinkleranlegg – kontrollventilsett
15.5
332.05 Sprinkleranlegg – rørnett
15.6
332.06 Sprinkleranlegg – sprinklerhoder
15.7
332.07 Sprinkleranlegg – plassering av sprinklerhoder
15.8
332.08 Sprinkleranlegg – galvaniserte rør i sprinkleranlegg
15.9
332.10 Vanntåkeanlegg
15.10
332.11 Vanntåkeanlegg i boliger
15.11
332.20 FG-regler for automatiske slokkesystemer
15.12
332.25 Innvendig inspeksjon av sprinklerrør
15.13
338.01 Brannsikkerhet og branngjennomføringer
15.14
338.02 Branngjennomføringer 2 – tettemetoder
15.15
338.03 Branngjennomføringer 3 – brannisolering med mineralull
15.16
338.04 Branngjennomføringer 4 – brannisolering med cellegummi
15.17
338.05 Manuelt slokkeutstyr
15.18
340.01 LPG – gassanlegg for boliger
15.19
340.02 Gassrør av plast
15.20
340.03 Gassanlegg i boliger og fritidshus
15.21
340.05 Gassvettregler
15.22
345.00 Huskeliste trykkluftanlegg
15.23
345.01 Trykkluftanlegg – ledningsnett
15.24
345.02 Trykkluftanlegg – armatur
15.25
345.03 Trykkluftanlegg – aktuelle rør og slanger
15.26
345.10 Forskrift om trykkpåkjent utstyr (FTPU) eller Pressure Equipment Directive (PED)
15.27
360.01 Boligventilasjon I
15.28
360.02 Boligventilasjon II – dimensjonering og tegning
15.29
360.03 Kanaler/ventilasjonsrør
15.30
360.11 Varmegjenvinning i småhus I – statiske gjenvinnere
15.31
360.12 Varmegjenvinning i småhus II – sykliske gjenvinnere
15.32
360.13 Varmegjenvinning i småhus III – varmepumpe for avtrekksluft i bad
15.33
370.00 Kjøling av bygg – generelt
15.34
370.01 Kjøling av bygg – passivhus
15.35
370.02 Passiv mekanisk kjøling – frikjøling
15.36
370.03 Kombinert passiv og aktiv mekanisk kjøling
15.37
370.04 Isvannsanlegg
15.38
370.05 Frostmedier – typer og egenskaper
15.39
370.06 Frostmedier – blandingsforhold og påfylling
15.40
370.11 Rør i isvannsanlegg
15.41
370.16 Kondensisolering av rør i isvannsanlegg
15.42
x332.02 Sprinkleranlegg – krav, godkjenning, klassifisering og standarder
430. Elektriske arbeider
Expand sub pages Kapittel
16.1
430.01 Hva kan en rørlegger utføre av elektriske installasjoner
16.2
430.02 Instruert personell
16.3
430.03 Krav til jording
16.4
430.04 Utskiftning av hovedvanninnlegg fra kobber til plast
16.5
430.05 Vannrør som fører strøm
16.6
430.06 El-ulykker og strømskader
16.7
430.07 Rapportering av el-ulykker og strømskader
16.8
430.08.1 Elektrisk tilkobling av varmtvannsberedere
16.9
430.081.2 Sjekkliste for service av bereder
16.10
430.081.3 Sjekkliste for utskiftning/nyinstallering av bereder
16.11
430.08.2 Brannfarlige beredere
731. Utvendig sanitæranlegg
Expand sub pages Kapittel
17.1
731.01 Sikkerhet i grøfter
17.2
731.02 Fall og høydeforhold
17.3
731.03 Tilkobling til hovedvannledning
17.4
731.04 Tilkobling til hovedavløpsledning
17.5
731.05 Plassering av rør i grøft
17.6
731.06 Utvendige kummer
17.7
731.07 Utvendig stengeventil
17.8
731.08 Prøving av utvendige avløpsledninger
17.9
731.09 Prøving av utvendige vannledninger
17.10
731.10 Avløp fellessystem (AF-ledning) og separering av avløpssystemer
17.11
731.11 Stikkledninger – generelt
17.12
731.12 Alternative føringsveier for vanninnlegg
17.13
731.20 Utslipp av avløpsvann fra hus og hytter
17.14
731.21 Jordrenseanlegg i spredt bebyggelse, infiltrasjon 1
17.15
731.22 Jordrenseanlegg i spredt bebyggelse, infiltrasjon 2
17.16
731.23 Jordrenseanlegg i spredt bebyggelse, våtmarksanlegg
17.17
731.24 Separate avløpsanlegg – slamavskillere og fordelingskummer
17.18
731.24.1 Minirenseanlegg for avløpsvann
17.19
731.25 Separate avløpsanlegg
17.20
731.26 Høydeberegninger – overvann
17.21
731.27 Høydeberegninger – spillvann
17.22
731.28 Olje- og bensinutskillere
17.23
731.29 Fettutskillere
17.24
731.30 Nivellering 1 – utstyr
17.25
731.31 Nivellering 2 – høydemålinger
17.26
731.35 Koordinatangivelser og GPS-måling
17.27
731.41 Rørgrøfter – omfyllingsmasser i ledningssonen
17.28
731.51 Rør- og kummaterialer for stikkledninger
17.29
731.52 Avløpspumper
17.30
731.55 Symboler og angivelser – VA-anlegg
17.31
731.61 Infeksjoner og vaksinasjon
17.32
731.71 Overvannshåndtering 1
17.33
731.72 Overvannshåndtering 2
17.34
731.73 Overvannshåndtering 3
17.35
731.74 Sirkulær disponering av vann
17.36
731.75 Oversvømmelser i kjellere
17.37
731.91 Påvisning av utvendige vannledninger - utførelse og ansvar
910. Bedrift, helse, miljø, og sikkerhet
Expand sub pages Kapittel
18.1
910.01 Sjekkliste for HMS på byggeplass/arbeidssted
18.2
910.02.1 Melding om ulykke eller nesten ulykke
18.3
910.02.2 Bedriftens registreringsplikt ved skader og sykdom
18.4
910.02.3 Arbeidstakers plikter i det organiserte verne- og miljøarbeidet i virksomheten
18.5
910.02.4 Kritikkverdige forhold på arbeidsplassen med varslingsskjema
18.6
910.03 Brannfarlige og giftige gasser og stoffer – kriterier og merking
18.7
910.04 Vernearbeid på byggeplassen
18.8
910.05 Trykkluft og sveisearbeid
18.9
910.06 Behandling av gassflasker
18.10
910.07 Legionella i sanitæranlegg
18.11
910.07.1 Sjekkliste for vurdering av risiko vedr. legionella og for planlegging av tiltak
18.12
910.08 Legionella i kjøleanlegg
18.13
910.09 Skålding
18.14
910.10 Sikker jobbanalyse
18.15
910.11 Entrepriseformer
18.16
910.12 Avhendingslov – Krav til dokumentasjon av de fleste typer jobber på fast eiendom
18.17
910.13 Aktuelle lover, forskrifter og veiledninger
18.18
910.14 Plan- og bygningsloven (Pbl) og forskrifter
18.19
910.15 Byggteknisk forskrift – TEK17
18.20
910.16.1 Arbeid i høyden
18.21
910.16.2 Arbeid i grøfter NYTT!
18.22
910.16.3 Arbeid i kummer og trange rom NYTT!
18.23
910.16.4 Personlig verneutstyr NYTT!
18.24
910.17 Avfallshåndtering og farlig avfall
18.25
910.18 Bruk av stillas
18.26
910.19 Varme arbeider
18.27
910.20 Aktuelle norske standarder
18.28
910.21.1 NS 3420 Beskrivelsestekster for bygg, anlegg og installasjoner, del I
18.29
910.21.2 NS 3420 Beskrivelsestekster for bygg, anlegg og installasjoner, del II
18.30
910.22 Bygningsdelstabell og posteringsstandard
18.31
910.25 NS 8405 og varsling – veiledning til varslingsskjema
18.32
910.26 Varslingsskjema
18.33
910.27 NS 8407 og NS 8417
18.34
910.28 Kontrakter og formularer
18.35
910.29 FDV-dokumentasjon og samsvarserklæring
18.36
910.31 Akkordseddel
18.37
910.41 Kvalitetssikring - definisjoner/terminologi
18.38
910.42 CE-merking av produkter
18.39
910.43 Varer levert av kunden
18.40
910.44 Ti gode grunner for å unngå «rør»
18.41
910.45 Kundens overprøving av faglig råd
18.42
910.46 TFM-merkesystem for bygninger
18.43
910.47 Effektiv (trimmet) bygging
18.44
910.50 Garantier og reklamasjoner
18.45
910.56 Vannskader
18.46
910.57 Reparasjons- og rehabiliteringsarbeider
18.47
910.61 Gjennomføring av svenneprøven i rørleggerfaget
18.48
910.71 BIM
18.49
910.81 Tekniske rom for varme- og sanitæranlegg – størrelse og innredning
18.50
910.91.1 Asbest – et livsfarlig materiale
18.51
910.91.2 Asbest – hvor finner vi det?
18.52
910.92 Råd og tips for oppdrag i forbrukerforhold
18.53
910.97.1 Smittevern på arbeidsplassen NYTT!
18.54
910.97.2 Trygghet for kunde og rørlegger - Sjekkliste Sikker Rørlegger NYTT!
18.55
910.93 Råd og tips for oppdrag mellom næringsdrivende
920. Utregner vekter og mål
Expand sub pages Kapittel
19.1
920.01 Lengdemål og omkretser
19.2
920.02 Flatemål (areal)
19.3
920.03 Rommål (volum, kubikkmål)
19.4
920.04 Overflatemål av legemer
19.5
920.06 Trekanter og vinkler
19.6
920.10 Egenvekt og vekt
19.7
920.22 Omregningstabell for effekt energi og trykk
19.8
920.42 Monteringsmål for isolerte rør
930. Symboler, enheter, omregningstabeller
Expand sub pages Kapittel
20.1
930.20 Prefikser, greske bokstaver og symboler
20.2
930.21 Størrelser, symboler og enheter
20.3
930.50 Rør- og ventilsymboler o.l. for varme- og sanitæranlegg
20.4
930.51 Utstyrssymboler for sanitæranlegg
20.5
930.55 Tegnesymboler for utvendige VA-anlegg
940. Føringsveier, rør og vannskadesikring
Expand sub pages Kapittel
Aktuelle leverandører
21.1
940.00 Føringsveier – generelt
21.2
940.01 Åpne rørføringer
21.3
940.02 Rør i vegger og etasjeskiller
21.4
940.03 Skjulte, tilgjengelige rør
21.5
940.04 Problemløsere
21.6
940.05 Hull i bjelker og stendere
21.7
940.06 Sjakter
21.8
940.08 Innkassing av rør
21.9
940.09 Rør i himlinger
21.10
940.10 Vannskadesikring - generelt
21.11
940.11 Vannskadesikre løsninger 1
21.12
940.12 Vannskadesikre løsninger 2
21.13
940.13 Vannskadesikring – næringsbygg
21.14
940.14 Vannskadesikring av kjøkken
21.15
940.16 Korrosjon
21.16
940.21 Stålrør for gjenging - sorte og galvaniserte
21.17
940.22 Stålrør – sveiste
21.18
940.23 Stålrør – sømløse
21.19
940.24 Stålrør – lette
21.20
940.26 Stålbend og flenser
21.21
940.31 Kobberrør
21.22
940.32 Skjøting av kobberrør
21.23
940.35 Bøying av kobberrør 1
21.24
940.36 Bøying av kobberrør 2
21.25
940.41 Definisjoner av byggtyper – boliger
21.26
940.50 Plastrør – generelt
21.27
940.51 Plastrørtyper
21.28
940.55 PEX-rør
21.29
940.60 Andre rørtyper – generelt
21.30
940.70 Skjøtemetoder – generelt
21.31
940.71 Gjengede rørdeler
21.32
940.72 Metallkoblinger for ulike rørtyper
21.33
940.73 Lodding
21.34
940.74 Pressrør og deler – kvaliteter og bruksområder
21.35
940.75 Rillerør og deler – bruksområder
21.36
940.77 Sveising med beskyttelsesgass
21.37
940.78 Sveising av PE- og PP-rør
21.38
940.82 Trykkprøving med luft
21.39
940.90 Klamring og oppheng – generelt
21.40
940.91 Festemateriell
21.41
940.92 Klammer og oppheng
21.42
940.93 Klammeravstander
21.43
940.94 Fastklammer
21.44
940.95 Glideklammer
950. Personvern og informasjonssikkerhet
Expand sub pages Kapittel
22.1
950.01 Personopplysninger – krav og rutiner for den enkelte medarbeider
22.2
950.02 Personvern og kontrolltiltak på arbeidsplassen
Førstehjelpsider
Expand sub pages Kapittel
Rørhåndboka 2005–2017
Expand sub pages Publikasjon 1
Rørhåndboka 2005 (PDF)
Expand sub pages Kapittel
Kap. A Utvendig sanitæranlegg 731
Kap. B Bunnledninger 311
Kap. C Ledningsnett, sanitær 312
Kap. D Armatur, sanitær 314
Kap. E Utstyr, sanitær 315
Kap. F Isolering, sanitæranlegg 316
Kap. G Ledningsnett, varmeanlegg 321
Kap. H Armatur, varmeanlegg 324
Kap. I Utstyr, varmeanlegg 325
Kap. K Andre anleggstyper 330-390
Kap. L Bedrift, helse, miljø og sikkerhet
Kap. M Utregninger, tabeller, symboler
Rørhåndboka 2006 (PDF)
Expand sub pages Kapittel
Kap. A Utvendig, generelt sanitæranlegg 731
Kap. B Bunnledninger 311
Kap C. Ledningsnett 312
Kap. D Armatur, sanitær 314
Kap. E Utstyr, sanitær 315
Kap. F Isolering, sanitæranlegg 316
Kap. G Isolering, sanitæranlegg - Ledningsnett,varmeanlegg 316-321
Kap. H Ledningsnett,varmeanlegg - Armatur, varme 321-324
Kap. I Armatur, varme - Utstyr, varme 324-325
Kap. K Andre anleggstyper- Gass og trykkluft- Kulde - Utstyr, luftbehandling 332-340-350-360
Kap. L Utstyr, luftbehandling 360- Bedrift, helse, miljø, sikkerhet L01-L61, M01
Kap. M Utregninger, tabeller, symboler M02-M82
Rørhåndboka 2008 (PDF)
Expand sub pages Kapittel
Kap A. Utvendig, generelt sanitæranlegg 731-310
Kap B. Sanitæranlegg generelt, Bunnledninger 310-311
Kap. C Bunnledninger, Ledningsnett 311-312
Kap. D Ledningsnett 314
Kap. E Armatur, sanitær., Utstyr, sanitær 315
Kap F. Utstyr, sanitær 315
Kap. G Sanitær armatur 315
Kap. H Utstyr, sanitær,. Isolering, sanitæranlegg 315-316
Kap. I Isolering, sanitæranlegg., Ledningsnett,varmeanlegg., Armatur, varme ., Utstyr, varme 316- 321-324-325
Kap. K Utstyr, varme 325
Kap. L Andre anleggstyper 332-360., Bedrift, helse, miljø og sikkerhet L01-L14
Kap. M Bedrift, helse, miljø og sikkerhet L15-M82
Rørhåndboka 2009 (PDF)
Expand sub pages Kapittel
Kap. A Utvendig sanitæranlegg 731/Sanitærinstallasjoner, generelt 310
Kap. B Bunnledninger 311
Kap. C Ledningsnett, sanitær 312
Kap. D Armatur, sanitær 314
Kap. E Utstyr, sanitær 315
Kap. F Isolering, sanitæranlegg 316
Kap. G Ledningsnett, varmeanlegg 321
Kap. H Armatur, varmeanlegg 324
Kap. I Utstyr, varmeanlegg 325
Kap. K Andre anleggstyper 330-390
Kap. L Bedrift, helse, miljø og sikkerhet
Kap. M Utregninger, tabeller, symboler
Rørhåndboka 2010 (PDF)
Expand sub pages Kapittel
Kap. A Utvendig sanitæranlegg 731/Sanitærinstallasjoner, generelt 310
Kap. B Bunnledninger 311
Kap. C Ledningsnett, sanitær 312
Kap. D Armatur, sanitær 314
Kap. E Utstyr, sanitær 315
Kap. F Isolering, sanitæranlegg 316
Kap. G Ledningsnett, varmeanlegg 321
Kap. H Armatur, varmeanlegg 324
Kap. I Utstyr, varmeanlegg 325
Kap. J Isolasjon av varmeinstallasjoner 326
Kap. K Andre anleggstyper 330-390
Kap. L Bedrift, helse, miljø og sikkerhet
Kap. M Utregninger, tabeller, symboler
Rørhåndboka 2011 (PDF)
Expand sub pages Kapittel
Kap. A Utvendig, generelt sanitæranlegg 731-310
Kap. B Bunnledninger 311
Kap C. Ledningsnett 312
Kap. D Armatur, sanitær 314
Kap. E Utstyr, sanitær 315
Kap. F Isolering, sanitæranlegg 316
Kap. G Isolering, sanitæranlegg - Ledningsnett,varmeanlegg 316-321
Kap. H Ledningsnett,varmeanlegg - Armatur, varme 321-324
Kap. I Armatur, varme - Utstyr, varme 324-325
Kap. J Isolasjon av varmeinstallasjoner 326
Kap. K Andre anleggstyper- Gass og trykkluft- Kulde - Utstyr, luftbehandling 332-340-350-360
Kap. L Utstyr, luftbehandling 360- Bedrift, helse, miljø, sikkerhet L01-L61, M01
Kap. M Utregninger, tabeller, symboler M02-M82
Rørhåndboka 2012 (PDF)
Expand sub pages Kapittel
Kap A. Utvendig, generelt sanitæranlegg 731-310
Kap B. Sanitæranlegg generelt, Bunnledninger 310-311
Kap. C Bunnledninger, Ledningsnett 311-312
Kap. D Ledningsnett 312
Kap. E Armatur, sanitær., Utstyr, sanitær 314-315
Kap F. Utstyr, sanitær 315
Kap. G Sanitær armatur 315
Kap. H Utstyr, sanitær,. Isolering, sanitæranlegg 315-316
Kap. I Isolering, sanitæranlegg., Ledningsnett,varmeanlegg., Armatur, varme ., Utstyr, varme 316- 321-324-325
Kap. J Utstyr, varme 325
Kap. K Utstyr, varme., Isolasjon av varmeinstallasjoner., Andre anleggstyper 325-326-332
Kap. L Andre anleggstyper 332-360., Bedrift, helse, miljø og sikkerhet L01-L14
Kap. M Bedrift, helse, miljø og sikkerhet L15-M82
Rørhåndboka 2013 (PDF)
Expand sub pages Kapittel
Kap. A Utvendig, generelt sanitæranlegg 731-310
Kap. B Bunnledninger 311
Kap. C Ledningsnett, Armatur, sanitær 312-314
Kap. D Armatur, sanitær., Sanitær, utstyr 314-315
Kap. E Sanitær, utstyr 315
Kap. F Isolering, sanitæranlegg 316
Kap. G Ledningsnett, varmeanlegg 321
Kap. H Armatur, varme 324
Kap. I Utstyr, varme 325
Kap. J Isolasjon av varmeinstallasjoner 326
Kap. K Andre anleggstyper., Gass og trykkluft., Kulde., Luftbehandling 332-344-350- 360
Kap. L Bedrift, helse, miljø, sikkerhet L01-L61
Kap. M Utregninger, tabeller, symboler M01-M82
Rørhåndboka 2014 (PDF)
Expand sub pages Kapittel
Kap. A Sanitæranlegg generelt nr 310-311
Kap. B Ledningsnett nr 312
Kap. C Armatur, sanitær nr 314-320
Kap. D Ledningsnett, varmeanlegg nr 321-325
Kap. E Isolasjon av varmeinstallasjoner nr 326-430
Kap. F Utvendig sanitæranlegg nr 731
Kap. G Bedrift, helse, miljø, sikkerhet nr 910-940
Rørhåndboka 2015 (PDF)
Expand sub pages Kapittel
Kap. A Sanitærinstallasjoner nr 310
Kap. B Bunnledninger nr 311
Kap. C Ledningsnett, sanitær nr 312
Kap. D Armatur, sanitær nr 314
Kap. E Utstyr, sanitær nr 315
Kap. F Isolering, sanitæranlegg nr 316
Kap. G Varmeanlegg, generelt nr 320
Kap. H Ledningsnett, varmeanlegg nr 321
Kap. I Armatur, varmeanlegg nr 324
Kap. J Utstyr, varmeanlegg nr 325
Kap. K Isolasjon av varmeinstallasjoner nr 326
Kap. L Andre anleggstyper og branngjennomføringer nr 330-390
Kap. M Elektriske arbeider nr 430
Kap. N Utvendig sanitæranlegg 731
Kap. O Bedrift, helse, miljø og sikkerhet 910
Kap. P Utregninger, vekter og mål 920
Kap. Q Symboler, enheter, omregningstabeller 930
Kap. R Rørtyper og skjøtemetoder 940
Rørhåndboka 2016 (PDF)
Expand sub pages Kapittel
Sanitærinstallasjoner - 310
Bunnledninger - 311
Ledningsnett, sanitær - 312
Armatur, sanitær - 314
Utstyr, sanitær - 315
Isolering, sanitæranlegg - 316
Varmeanlegg, generelt - 320
Ledningsnett, varmeanlegg - 321
Armatur, varmeanlegg - 324
Utstyr, varmeanlegg - 325
Isolasjon av varmeinstallasjoner - 326
Andre anleggstyper og branngjennomføringer - 330-390
Elektriske arbeider - 430
Utvendig sanitæranlegg - 731
Bedrift, helse, miljø og sikkerhet - 910
Utregninger, vekter og mål - 920
Symboler, enheter, omregningstabeller - 930
Rørtyper og skjøtemetoder - 940
Rørhåndboka 2017 (PDF)
Expand sub pages Kapittel
Innholdsfortegnelse
Sanitærinstallasjoner - 310
Bunnledninger - 311
Ledningsnett, sanitær - 312
Armatur, sanitær - 314
Utstyr, sanitær - 315
Isolering, sanitæranlegg - 316
Varmeanlegg, generelt - 320
Ledningsnett, varmeanlegg - 321
Armatur, varmeanlegg - 324
Utstyr, varmeanlegg - 325
Isolasjon av varmeinstallasjoner - 326
Andre anleggstyper og branngjennomføringer - 330-390
Elektriske arbeider - 430
Utvendig sanitæranlegg - 731
Bedrift, helse, miljø og sikkerhet - 910
Utregninger, vekter og mål - 920
Symboler, enheter, omregningstabeller - 930
Rørtyper og skjøtemetoder - 940
Prenøk
Expand sub pages Publikasjon 1
1
Lover og forskrifter, veiledninger og tabeller (rev. 2015)
Expand sub pages Kapittel
1.2
Kjelanlegg
1.5
Damp - Innføring
1.6
Virkningsgrad på kjelanlegg - definisjoner og terminologi
1.7
Plan- og bygningsloven
1.7.1
Teknisk forskrift 2010
1.8
Strømpriser og tariffer
1.9
Lønnsomhetsberegninger i VVS-faget
1.10
Praktisk EL-teknikk for VVS-faget
1.12
SI-målesystem og det tekniske målesystem
1.13
Omregningstabeller for energienheter
1.14
Forskrift om svovelinnhold i ulike oljeprodukter
1.15
Oppstilling og utrustning av kjeleanlegg
1.15.1
Vedlegg til 1.15
1.17
Nyttige formler
1.18
Enklere regulering av utslipp til luft for fyringsanlegg
1.19
Orientering om Forskrift for trykkpåkjent utstyr
1.20
Definisjoner - tekniske begreper
1.21
NS - en orientering om standarder som gjelder varmesystemer i bygninger
1.22
Oversikt over norske standarder som berører faget
1.23
Energi og miljø - en global utfordring
2
Energi og effektbehov – Dimensjonering (rev. 2015)
Expand sub pages Kapittel
2.0
Varighetsdiagram - grunnlag og teori
2.1
Hva er graddag og graddagstall? - hva kan de brukes til?
2.3
ENØK krever kjennskap til byggets effekt- og energibehov
2.4
Dimensjonerende effektbehov i bygg NYTT!
2.5
Normtall for effekt- og energibehov i bygninger
2.6
Varighetsdiagram - Bruk til dimensjonering av varmesentraler
2.7
Klimadata - En innføring
3
Distribusjonsnett (rev. 2015)
Expand sub pages Kapittel
3.1
Gass som brensel
3.2
Bioenergi - En oversikt
3.3
Tekniske data for fyringsolje
3.4
Varmepumper - Varmeopptak fra naturens varmekilder
3.5
Solvarme
3.6
Energibrønner i fjell
4
Energisentralen – Kjeler, varmepumper, varmeveksler/undersentral (rev. 2015-16)
Expand sub pages Kapittel
4.1
Oljetanker
4.2
Forbrenningsanlegg for biobrensler
4.3
Oljedysen en viktig detalj i en oljebrenner
4.4
Korrosjon på røkgassiden i oljefyrte sentralvarmekjeler
4.5
Trykkløse (åpne) ekspansjonssystemer
4.6
Trykkekspansjonsanlegg - hva bør du vite?
4.7
Varmepumper - Grunnlag
4.8
Varmepumper - Anvendelse
4.9
Varmepumper - Oppvarmingssystem med varmepumpe
4.10
Samkjøring av kjeler i energisentraler
4.11
Kjelkoblinger og økonomisk drift av varmesentraler
4.12
Kjelkoblinger og økonomisk drift av varmesentraler del II
4.14
Tilfeldig kraft i mindre sentralvarmeanlegg
4.15
Kompressorer i kulde- og varmeanlegg
4.16
Elektrokjeler for vannbårne anlegg
4.17
Riktig valg av varmeveksler
4.18
Skorsteiner
4.19
Skorsteiner og rehabilitering
4.20
Olje- og gassfyrte kjeler
4.21
Gass til oppvarming
4.22
Ekspansjonssystemer for større anlegg - beregninger, definisjoner, ord og uttrykk
4.23
Ekspansjonssystemer for større anlegg - aktuelle systemer
4.24
Ekspansjonssystemer for større anlegg - råd og tips
4.25
Oljebrenneren: slik fungerer den - del I
4.26
Oljebrenneren: slik fungerer den - del II
4.27
Varmepumper - hydrauliske koblinger og automatisering
4.29
Biobrenselanlegg for eneboliger
4.30
Mellomstore biobrenselanlegg 0,5–5 MW
4.31
Utstyr i gassanlegg
4.32
Kundesentraler for fjernvarme - Systemløsninger og dimensjonering
4.33
Energisentraler for villa og småhus
4.34
Lagring og overføring av trepellets og flis
4.36
Biologiske fyringsoljer - Et alternativ til fossile fyringsoljer
4.38
Plassbehov for energisentraler i bygg
5
Distribusjon – Systemer og komponenter, rørnett, ventiler, pumper, medier
Expand sub pages Kapittel
5.0
Mengderegulering i vannbarne anlegg – Innføring
5.1
Mengderegulering i vannbårne anlegg – Utførelse og beregning
5.2
Rehabilitering av varmeanlegg
5.3
Hastigheter og trykktap
5.4
Frostmedier
5.5
Shuntventiler - del I
5.6
Shuntventiler - del II
5.7
Korrosjon på vannsiden i sentralvarmeanlegg
5.8
Vannbehandling i sentralvarmeanlegg
5.9
Vannbehandling i sentralvarmeanlegg - metoder
5.10
Filtre i vannbårne anlegg
5.11
Luft i vannbårne anlegg
5.12
Sirkulasjonspumper i varme- og kjøleanlegg
5.13
Hastighetsregulering av sirkulasjonspumper i sentralvarmeanlegg
5.14
Isolasjon og isolasjonsmaterialer
5.15
Dampanlegg - Prosjektering, montering og drift
5.16
Sikkerhetsventiler for vannbarne anlegg - Terminologi, definisjoner, ventiltyper
5.17
Sikkerhetsventiler for vannbårne anlegg - krav
5.18
Sikkerhetsventiler for vannbårne anlegg - Anbefalinger
5.19
Praktisk isolering av varme og kulderør
5.20
Brannsikring av rørgjennomføringer
5.21
Montering og festeanordning for rør
5.22
Materialvalg i rørsystemer
5.23
Pumpetype og lover gjeldende for sirkulasjonspumper
5.24
Temperaturvalg i vannbårne systemer
5.25
Varmeanlegg - Radiatoranlegg
5.26
Preisolerte rørsystemer
5.27
Rør-i-rør-systemer for tappevann
5.28
Stengeventiler i vannbårne energianlegg
5.29
Preisolerte ledninger - Leggemetoder
5.30
Tilbakeslagsventiler i vannbårne energianlegg
5.31
Trykkuavhengige reguleringsventiler
6
Varme og energioverføring – Radiatorer, konvektorer, batterier, tak-/gulvvarme, gatevarme
Expand sub pages Kapittel
6.0
Varmeavgivelse og hydraulisk balanse i sentralvarmeanlegg
6.1
Radiatorventiler - dimensjonering
6.2
Termostatstyrte radiatorventiler
6.3
Vannbåren gulvvarme - Energisparende oppvarmingssystem
6.4
Vannbåren gulvvarme - Systemvalg og reguleringsprinsipper
6.5
Vannbåren gatevarme
6.6
Vannbåren strålevarme
6.7
Gass til oppvarming
6.8
Varmeanlegg for boliger - del I og II
6.9
Gulvvarme ved ulike gulvkonstruksjoner
6.11
Vannbåren varme i baderomsgulv
7
Spesielle anlegg – Sanitæranlegg, gjenvinning, hetolje
Expand sub pages Kapittel
7.0
Varmtvannsforsyningsanlegg - type, systemer og komponenter
7.1
Dimensjonering av vannvarmere
7.2
Energigjennvinning fra kjøle- og fryserom
7.3
Varmtvannssirkulasjon
7.4
Væskekoblede gjennvinningsanlegg – begreper og dimensjoner
7.5
Væskekoblede gjennvinningsanlegg – planlegging, drift og vedlikehold
7.6
Varmegjennvinning fra varmt avløpsvann
7.7
Dimensjonering av frikjøling
7.8
Energiokønomisk drift av trykkluftsanlegg
7.9
Legionella og sanitæranlegg
8
Dokumentasjon – Egenkontroll, internkontroll, sertifikater
Expand sub pages Kapittel
8.0
Sjekkliste ved valg av sentralvarmekjeler og oljebrennere
8.1
Kontroll og vurderingsskjema varmevekslere
8.2
Radiatorer og konvektorer
8.3
Internkontroll i energisentraler
8.4
Trykkprøving av røranlegg
8.4.1
Vedlegg til 8.4
8.5
Måleteknikk i felten
8.6
Maskinrom og kjelrom
9
Energikilden (Revidert i 2016)
Expand sub pages Kapittel
9.0
Varmtvannstemperatur og ENØK
9.1
Praktisk arbeidsmiljø for rørleggere
9.2
Lyd fra røranlegg
9.4
Kuldemedier og miljøet
9.5
Forbrenning og miljøet
10
Forvaltning, drift og vedlikehold – Energimåling, oppmåling, ERFA, SD-anlegg
Expand sub pages Kapittel
10.1
Kostnadstall for vannbårne anlegg
10.3
FDV-kostnader i statens bygg
10.5
Vannlekkasjer koster penger
10.6
Koster det å dusje?
10.7
Røykgassanalyse – et viktig ENØK-verktøy
10.8
Vedlikehold og rengjøring av varmevekslere
10.9
Praktiske erfaringer fra ENØK-prosjekter
10.10
Vannsparing er lønnsomt - eksempel fra Hedmark Fylkeskommune
10.12
Energioppfølging – et viktig verktøy i ENØK-arbeidet
10.13
Energimåling i vannbårne anlegg
10.14
Rehabilitering av varmeanlegg
10.15
Lokal måling av trykk og temperatur
10.16
Drifts- og vedlikeholdsinstrukser
Styring og regulering av tekniske anlegg i bygg
Expand sub pages Publikasjon 1
Datamaskiner og mikroprosessorer
Expand sub pages Kapittel
1.0
Forord og innledning
1.1
Elektriske ledere, halvledere og isolatorer
1.2
Mikroelektronikk og integrerte kretser
1.3
Datamaskinens hovedkomponenter
1.4
Sentralenheten (prosessoren)
1.5
Minnet (hukommelsen)
1.6
Minner av ulike typer
1.7
Inn- og ut-enheter (I/O)
1.8
Kontrollsignal
1.9
Mikroprosessorens arbeidsmåte
1.10
Klokke og klokkesignal
1.11
Krafttilførsel
1.12
Kommunikasjon og databusser
Dataord og datakoder
Expand sub pages Kapittel
2.0
Introduksjon
2.1
Maskinkoder
2.2
Dekadiske desimaltall
2.3
Det binære tallsystem
2.4
Datakoder
2.5
Binærkodet desimaltall – BCD
2.6
Merking av dataord
2.7
Oktal-kode
2.8
HEX og HEXA-desimalkoder
2.9
Tekstkoder og kontrollbits
2.10
Instruksjonskoder
2.11
Programbehandling
2.12
Lav- og høynivå dataspråk
2.13
Høynivå dataspråk
2.14
Operativprogram for datamaskiner/PCer
Logisk algebra med grunnlag for PLS
Expand sub pages Kapittel
3.0
Introduksjon
3.1
Logiske utsagn
3.2
Programmerbare Logiske Styringer
3.3
Logiske kretser
3.4
PLS-programmering
Grunnleggende reguleringsteknikk
Expand sub pages Kapittel
4.0
Introduksjon
4.1
Automatisering
4.2
Definisjoner og normer
4.3
Grunnleggende begreper
4.4
Prosess
4.5
Følere og givere
4.6
Måleverdiomformere og målebroer
4.7
Montasje av måleutstyr
4.8
Kontroll- og reguleringsmetoder
4.9
Reguleringsobjekt
4.10
Transportforsinkelse og dødtid
4.11
Tidskonstant
4.12
Reguleringssløyfer uten transportforsinkelse
4.13
Reguleringssløyfer med transportforsinkelse
4.14
Dynamisk tidsforsinkels
4.15
Hysterese
4.16
Diskontinuerlig av-på-regulering
4.17
Diskontinuerlig flytende regulering
4.18
Reguleringsfunksjoner
4.19
Integralvirkningen
4.20
Derivatvirkningen
4.21
Framgangsmetoder ved automatisering
Databasert styring og regulering
Expand sub pages Kapittel
5.0
Introduksjon
5.1
Autonome regulatorer og styreenheter
5.2
Digital diskontinuerlig regulering
5.3
Digital kontinuerlig regulering
5.4
Databaserte regulatorer
5.5
Regulatorer med autotuning
5.6
Adaptive regulatorer
5.7
Fuzzyregulator
5.8
Regulatorer til luftbehandling og energisystemer
5.9
A/D-omformer
5.10
D/A-omformer
5.11
Digitale regulatorer
5.12
Databaserte regulatorer i praksis
5.13
Funksjonsblokker
5.14
Kaskaderegulering
5.15
Kompensering
5.16
Sekvensregulering av utganger
5.17
Tidsprogram og av/på-styringer
5.18
Program for optimal start/stopp
5.19
Optimal start/stopp av varmeanlegg
Automatikk- og elektriske tegninger
Expand sub pages Kapittel
6.0
Introduksjon
6.1
Symboler for prinsipp- og elektriske tegninger
6.2
Elektriske skjemaer og tegninger
6.3
Elektrotekniske tegninger i bunden form
6.4
Elektrotekniske tegninger i fri form
6.5
Enlinjeskjema
6.6
Trekking og tilkobling av elektriske kabler
6.7
Skjema og tegninger for et luftbehandlingsanlegg
Uttesting og vedlikehold av automatikk
Expand sub pages Kapittel
7.1
Krav til dokumentasjon
7.2
Kontroll av instrumentering og system
7.3
Prosedyre for uttesting av automatisert anlegg
7.4
Ziegler og Nichols empiriske metoder
7.5
Ettersyn og vedlikehold av automatiserte anlegg
7.6
Tidsintervall for vedlikehold av instrumentering/automatikk
Batterier, vekslere og gjenvinnere
Expand sub pages Kapittel
8.0
Introduksjon
8.1
Varme- og kjølebatterier
8.2
Vern mot frost i vannbatterier
8.3
Platevekslere
8.4
Effekt- og energiberegning av platevekslere
8.5
Varmt forbruksvann
8.6
Gjenvinning av termisk energi ved hjelp av roterende hjul
8.7
Virkningsgraden for gjenvinnere
8.8
Gjenvinning av termisk energi ved hjelp av kryssveksler
8.9
Gjenvinning av termisk energi ved hjelp av vann/væsker
8.10
Elektriske varmebatteri i luftbehandlingsanlegg
Reguleringsventiler
Expand sub pages Kapittel
9.0
Introduksjon
9.1
Reguleringsventilenes enkelte deler
9.2
Ventilhuset
9.3
Ventilspindelen
9.4
Pakninger
9.5
Setet i seteventiler
9.6
Ventilpluggen i seteventiler
9.7
Sleideventiler
9.8
Spjeldventiler
9.9
Kuleventiler
9.10
Ventiler med to løp
9.11
Ventiler med tre løp
9.12
Mengdekarakteristikk for reguleringsventiler
9.13
Ventilenes reguleringsevne
9.14
Reguleringsobjektets statiske karakteristikk
9.15
Ventilautoriteten
9.16
Effektlineær karakteristikk
9.17
Beregning og dimensjonering av ventiler
9.18
Valg av karakteristikk for reguleringsventiler
9.20
Ventilkapasitet og ventilstørrelse
9.21
Termiske strømmer i rør og tanker
9.22
Shunt- og ventilkoblinger
Vifter og pumper
Expand sub pages Kapittel
10.0
Introduksjon
10.1
Luft-/gasstrykket fra vifter
10.2
Hastigheten på luft-/gasstrømmen i kanalene
10.3
Ulike sentrifugalvifter
10.4
Viftenes karakteristiske egenskaper
10.5
Arbeidspunkt og arbeidslinje
10.6
Viftens virkningsgrad
10.7
Viftenes effekt- og energibehov
10.8
Endring av viftenes hastighet
10.9
Variabelt volum (VAV) og trykkregulering
10.10
Økonomi ved regulering av luftmengde
10.11
Regulering av lufttrykk og mengder
10.12
Kalkulasjon av viftemotorens størrelse
10.13
Pumper for sirkulasjon av væsker
10.14
Små og mellomstore pumper
10.15
Trykk- og mengderegulering av pumper
Kjølemaskiner, varmepumper og avfuktere
Expand sub pages Kapittel
11.0
Introduksjon
11.1
Kjølemaskinens virkemåte og grunnprinsipp
11.2
Kjøleprinsippet
11.3
Carnot-prosessen
11.4
Kjøleskapets virkemåte
11.5
Små og mindre fryse- og kjøleanlegg
11.6
Større kjøleanlegg for produksjon av isvann
11.7
Avfukting ved hjelp av kjøleanlegg
11.8
Varmepumper
Elektriske motorer og generatorer
Expand sub pages Kapittel
12.0
Introduksjon
12.1
Generatoren
12.2
Elektromotoren
12.3
Elektriske motorer for vekselstrøm
12.4
Synkron elektromotor
12.5
Asynkrone elektromotorer
12.6
Kortslutningsmotoren
12.7
En-faset asynkron elektromotor
12.8
En-faset asynkron elektromotor med sentrifugalbryter
12.9
En-faset asynkron elektromotor med kapasitor
12.10
Elektromotor med ytterrotor
12.11
Tre-faset asynkron elektromotor
12.12
Asynkronmotorens hastighet
12.13
Startforhold for asynkrone elektromotorer
12.14
Asynkronmotorens momentforhold
12.15
Sikringer og motorvern
12.16
Asynkronmotorens effektfaktor
12.17
Asynkronmotorens virkningsgrad
12.18
Temperaturer i elektromotoren
12.19
Asynkrone elektromotorer med børster og sleperinger
12.20
Normerte asynkrone elektromotorer
12.21
Toleranse for spenning og frekvens
12.22
Ulike driftsarter
12.23
Starttransformator eller stjerne-trekantstart
12.24
Regulering av elektromotorens hastighet
12.25
Omkobling av antall poler i stator
12.26
Separate statorviklinger
12.27
Endring av hastigheten ved bruk av spenningsregulering
12.28
Endring av hastigheten ved bruk av transformator
12.29
Endring av hastigheten ved bruk av tyristor
12.30
Endring av hastigheten ved bruk av frekvensomformer
12.31
Elektromotorens strøm- og momentforhold
12.32
Regulering av hastigheten for pumper og vifter
Grunnleggende krav til inneklima
Expand sub pages Kapittel
13.0
Introduksjon
13.1
Luftens kjemiske sammensetning
13.2
Krav til kvaliteten på luften innendørs
13.3
Menneskekroppens temperaturregulering
13.4
Menneskets aktivitetsnivå og bekledning
13.5
Krav til ventilering av bygninger
13.6
Måling av temperaturer innendørs
13.7
Lufttemperatur og relativ fuktighet innendørs
Energifordeling og forbruk i bygninger
Expand sub pages Kapittel
14.0
Introduksjon
14.1
Klimadata for Norge
14.2
Energi for å oppveie varmetapet fra bygninger
14.3
Energiforbruket til varmt forbruksvann
14.4
Energiforbruket til ventilasjon
14.5
Belysning i boliger og bygninger
14.6
Installert elektrisk effekt til belysning
Databasert driftskontroll
Expand sub pages Kapittel
15.0
Introduksjon
15.1
Automatiseringsgraden
15.2
Automatiseringsnivået
15.3
Bruk og betjening av driftskontrollsystemet (SD-anlegget)
15.4
Automatikk og instrumentering
15.5
Regulatorer og undersentraler
15.6
Bussteknologi og datanett
15.7
Dataprotokoller
15.8
Driftssentralen i kontrollanlegget (SD-anlegget)
15.9
Funksjonstabell
15.10
Datasikkerhet
15.11
Merking av system og komponenter
15.12
Leveranseomfang og ansvar
Litteratur
Expand sub pages Kapittel
16.1
Litteraturhenvisninger
VVS-TV
Expand sub pages Publikasjon 1
Foredrag og seminarer
Expand sub pages Kapittel
1.1
Ny Byggsakforskrift (DiBK – Des. 16)
1.2
Vannskadesikkerhet i næringsbygg (Sintef/Gjensidige/Norconsult – Jan. 17)
1.3
Bygningsautomasjon (Fagskolen – Mars 17)
1.4
Vannbehandling i varme- og kjøleanlegg (GK – Apr. 17)
1.5
Akustikk i VVS-prosjektering (Brekk og Strand/Swegon - Mai 17)
1.6
Arendalsuka - relevante foredrag (Aug. 2017)
1.7
TEK17 seminaret (Sept. 2017)
1.8
Effektive tekniske boligkomplekser? (Norconsult - Okt. 17)
1.9
Driftskonferansen 2017 (Okt. 2017)
1.10
Seminar på NTNU (Okt. 17)
1.11
VA/VVS-møteplass 2017 (Okt. 17)
1.12
VVS-dagene på NTNU (Nov. 2017) - dag 1
1.13
VVS-dagene på NTNU (Nov. 2017) - dag 2
1.14
Materialbruk i røranlegg (Nov. 17)
1.15
Frokostseminar - Passivhus og ZEB - Campus Evenstad (Des. 17)
1.16
Ole Larmerud snakker om bransjen og dens utfordringer (Des. 17)
1.17
Tørre fakta om tørr luft - seminar (Miljøhuset GK - Feb. 18)
1.18
Design og utførelse av kanalnett og BestVent (Norconsult - Apr. 18)
1.19
Fagseminar om sorptiv kjøling (Multiconsult - Apr. 18)
1.20
"Fra 5 til 3 rør - Enklere varme" (Juni 18)
1.21
Fagseminar om sjakter (Multiconsult - Okt. 18)
1.22
Byggherrenes scene på VVS-dagene (Okt. 18)
1.23
Trøndersk VVS-dag 2018 (nov. 18)
1.24
Kontraktsrett - Prosjektering og salg i virtual reality (Des. 18)
1.25
Solstrandkonferanse 2019 - Del I (feb. 19)
1.26
Solstrandkonferanse 2019 - Del II (feb. 19)
1.27
Frokostseminar: Vannskadesikkerhet (mars 19)
1.28
Automatisering (mars 19)
1.29
Hvordan unngå tap av rettigheter? ved Arne Sørsdahl og Erik Gåskjønli (apr. 19)
1.30
Brannsikkerhet i bygg ved Stefan Andersson (mai 19)
1.31
Brannsikkerhet i storkjøkken (juni 19)
1.32
Ventilasjonskjøling - Foredrag på NTNU (aug. 19)
1.33
Tilbakestrømningsbeskyttelse - Frokostseminar (nov. 19)
1.34
DCV-anlegg: hvordan fungerer de? (mai 20)
1.35
DCV- of VAV-anlegg: teknologi og veien videre - Del 2 (mai 20)
1.36
Webinar: Trenger vi befuktning av luften? (aug. 20)
1.37
Webinar: Tappevann i romoppvarming (okt. 20)
1.38
Webinar "VarmtVann 2030" (nov. 20)
1.39
Webinar "Narturlige kuldemedier" (nov. 20)
1.40
Webinar "SvalVent" (jan. 21)
1.41
Webinar - Sprinkler, vanntåke og andre slokkeanlegg (Apr. 21)
1.42
Webinar "Skal vi sertifisere luften?" (6. mai 21)
1.43
Webinar "Boligventilasjon" (juni 21)
1.44
Webinar "Student for en dag" (24. juni 21)
1.45
Webinar "Ventilasjon og brannstrategi" (19. august 21)
1.46
Webinar "Varme boliger" (november 2021)
1.47
Webinar "Miljøvennlig VVS" (desember 2021)
1.48
Webinar "Regler og føringer i VVS-Bransjen" (mars 2021)
1.49
Webinar "EU-Taksonomien" (februar 2022)
1.50
Webinar "Brannsikkerhet i gjennomføringer" (april 22)
Informasjonsvidoer
Expand sub pages Kapittel
2.1
En introduksjon til Rørhåndboka 2017 av forfatter Ole Larmerud - mars 2017
2.2
Presentasjon av Rørhåndboka 321.05 Krav til lekkasjesikring av varme- og kuldeinstallasjoner
2.3
Presentasjon av Rørhåndboka 312.17 Støy fra avløpsrør
2.4
Presentasjon av Rørhåndboka 315.91 Våtromskabiner
2.5
Presentasjon av Rørhåndboka 325.10 Viftekonvektorer og varmluftvifter
2.6
Presentasjon av Rørhåndboka 731.35 Koordinatangivelser og GPS-målinger
2.7
Presentasjon av Rørhåndboka 910.10 Sikker jobbanalyse
2.8
Presentasjon av Rørhåndboka 910.29 Jobbdokumentasjon og samsvarserklæring
2.9
Presentasjon av Rørhåndboka 910.45 Kundens overprøving av faglig råd
2.10
Introduksjon til Rørhåndboka 2018
2.11
Rørhåndboka 2018, blad 312.31 - presentasjon
2.12
Rørhåndboka 2018, blad 312.40 - presentasjon
2.13
Rørhåndboka 2018, blad 312.45 - presentasjon
2.14
Rørhåndboka 2018, blad 312.50 - presentasjon
2.15
Riktig væskekvalitet i væskebårne anlegg - presentasjon (feb. 18)
2.16
Frokostmøte om Rørhåndboka 2018 (feb. 18 - Kuben)
2.17
Ole Larmerud om BricsCAD
2.18
BricsCAD med Martin Andersen, Rørentreprenørene Norge
2.19
BricsCAD med Morten Berg, Cad system center
2.20
Start helt blankt i BricsCAD med Morten Berg, Cad system center
2.21
Hvordan plassere avløpsrør i BricsCAD med Morten Berg, Cad system center
2.22
Plassering av sanitærutstyr i BricsCAD med Morten Berg, Cad system center
2.23
Videreføring av plasseringer av sanitærutstyr i BricsCAD med Morten Berg, Cad system center
2.24
Praktiske eksempler i BricsCAD med Morten Berg, Cad system center
Ventøk
Expand sub pages Publikasjon 1
0
Innholdsfortegnelse, fagkomiteen og forfatterne
Expand sub pages Kapittel
0.0
Innholdsfortegnelse
0.1
Ventøk fagkomité
0.2
Eksterne forfattere
0.3
Tidligere fagkomitemedlemmer
1
Grunnlag
Expand sub pages Kapittel
Aktuelle leverandører
1.1
Fuktig luft - del 1 (Revidert i 2019)
1.2
Fuktig luft - del 2 (Revidert i 2019)
1.3
Økonomi og lønnsomhet
1.4
Beregningsmetoder for lønnsomhet (revidert i 2019)
1.5
Måleenheter (revidert i 2019)
1.6
Inneklima - oversikt over offentlige krav og frivillig praksis
1.7
Oversikt over norske standarder i ventilasjonsfaget
1.8
Praktiske beregningsmetoder for kapasitet, kjøle- og varmebehov
1.9
Plassbehov for ventilasjonsanlegg - teknisk rom
1.10
Plan- og bygningsloven - Praktiske råd ved rehab/ombygging
1.11
Definisjoner - tekniske begreper
1.13
LCC - Livsløpskostnader (revidert i 2019)
1.14
Råd og retningslinjer for prosjektering
1.15
Klassifisering av brann- og eksplosjonsfarlige områder
1.16
Kaldras
2
Systembeskrivelse
Expand sub pages Kapittel
Aktuelle leverandører
2.1
Ventilasjonssystem - oversikt
2.2
Sentral og desentral luftbehandling
2.3
SD/SRO-anlegg
2.4
SD-anlegg - aktuelle frem til utgivelse i 1995
2.5
Lokal vannbåren kjøling
2.6
Brannventilasjon
2.7
Beskyttelsesventilasjon
2.8 Del I
Behovsstyrt ventilasjon - Del I
2.8 Del II
Behovsstyrt ventilasjon - Del II
2.9
Sentralstøvsugeranlegg
2.10
Kjøletak/kjølekonvektorer
2.11
Komponentnummerering
2.12
SD-/SRO-anlegg – Kriterier for valg av anlegg
2.13
Fuktighetskontroll - befuktning
2.14
Luft-luft-varmepumper
2.15
VRV - Kjøling Variable Refrigerant Volume
2.16
Punktavsug
2.18
Røykkontroll i trapperom NYTT!
3
Bruksområde
Expand sub pages Kapittel
Aktuelle leverandører
3.1.1
Ventilasjon av svømmehaller - del I
3.1.2
Ventilasjon av svømmehaller - del II
3.3
Ventilasjon av skoler - undervisningslokaler
3.4
Ventilasjon av restauranter og kjøkken (REVIDERT - 2018)
3.5
Ventilasjon av sveiseverksteder (NYTT 2019!)
3.6
Ventilasjon av maling-, lakk- og plastindustri
3.8
Ventilasjon av høye rom
3.9
Naturlig ventilasjon (REVIDERT I 2019)
3.10
Ventilasjon av tekniske rom
3.11
Ventilasjon av bo- og behandlingssentre
3.12
Ventilasjon av parkeringshus
3.13
Klimatisering av data- og serverrom
3.14
Ventilasjon av frisørsalonger
3.15
Impulsvifter for ventilasjon og røykkontroll av garasjer
3.16
Rene rom
3.17
Ventilasjon av bensinstasjoner
3.18
Ventilasjon av bilverksteder
3.19
Ventilasjon av kontorer
3.20
Ventilasjon av møterom
3.21
Boligventilasjon
3.23
Ventilasjon i laboratorier
3.24
Ventilasjon av fyrrom og maskinrom for kuldeanlegg
3.25
Boligventilasjon - praktisk anvendelse
3.26.1
Ventilasjon i sykehus - del 1
3.26.2
Ventilasjon i sykehus - del 2
3.26.3
Ventilasjon i sykehus - del 3 - Operasjonsstuer
3.26.4
Ventilasjon i sykehus - del 4 - Isolatrom
3.26.5
Ventilasjon i sykehus - del 5
4
Luftbehandlingsutstyr
Expand sub pages Kapittel
Aktuelle leverandører
4.1
Luftinntak og avkast
4.2
Partikkelfiltre for vanlig ventilasjon (REVIDERT 2019)
4.3
Filter og filterøkonomi - del 2
4.4
Ventilasjonsbatteri - Praktiske forhold
4.6
Vifter - generell orientering
4.7
Takaggregater
4.8
Lyddempere
4.9
Luftbehandlingsaggregater (NYTT 2019!)
4.10
Luftinntak og fuktproblemer (NYTT 2019!)
4.11
Kammervifter - fordeler og ulemper (REVISJON 2017)
4.12
Batterigjenvinnere for ventilasjonsanlegg
4.13
Luftavfuktning
4.14
Varmegjenvinnere/varmevekslere Del 1 (NYTT! 2018)
4.14.1
Roterende gjenvinnere (NYTT! 2018)
4.14.2
Plategjenvinnere (NYTT 2018)
4.14.3
Batterigjenvinnere (NYTT 2018)
4.14.4
Kammergjenvinnere (NYTT 2018)
4.14.5
Heatpipegjenvinnere (NYTT 2018)
4.14.6
Varmepumper (NYTT 2018)
4.14.7
Omluft (NYTT 2018)
5
Distribusjon
Expand sub pages Kapittel
Aktuelle leverandører
5.1
Kanaler - praktisk utforming NYTT! (2017)
5.2
Isolasjon i luftbehandlingsanlegg (REVISJON 2017)
5.3
Rengjøring av ventilasjonsanlegg
5.4
Isvannssystemet (REVIDERT I 2020)
5.5
Kanaler - materialer og oppheng (REVISJON 2017)
5.6
Innregulering av ventilasjonsanlegg (REVIDERT 2017)
5.7
Kjøling i ventilasjonsanlegg - direkte ekspansjon
5.8
Kanaler - et effektivt distribusjonssystem for luft (REVISJON 2018)
5.9
Trykkfohold i bygninger og luftbevegelser
5.10
Ventilasjonskanaler i grunnen
5.11
Merking av ventilasjonsanlegg
6
Luftfordelingsutstyr
Expand sub pages Kapittel
Aktuelle leverandører
6.1
Ventiltyper og plassering – Omrøringsventilasjon
6.2
Ventiltyper og plassering – Fortrengningsventilasjon
6.3
Innreguleringsspjeld og faste målestasjoner
6.4
Praktiske råd vedrørende luftbevegelse i rom ved komfortventilasjon
6.5
Høytsittende lavimpuls tilluftsenheter
6.6
Spjeld og kanaler med brannmotstand
6.7
Elektriske motorer og utstyr
6.8
Fan-coilapparater anvendelse og dimensjonering
6.9
Hvorfor benytte luftporter
6.10
Frekvensomformere
6.11
Dysekanaler - tilluftsenhet
6.12
Poseventilasjon - tekstilkanaler
6.13
Kombibafler
6.14
EC-motoren til bruk for viftedrift
7
Funksjonskrav
Expand sub pages Kapittel
Aktuelle leverandører
7.1.1
Ventilasjonsluftmengder
7.1.2
Ventilasjonsluftmengder basert på karbondioksid (NYTT - 2018)
7.2
Termisk inneklima
7.3
Energieffektiv luftdistribusjon
7.4
Praktisk anvendelse av SFP (Specific Fan Power)
7.5
Anbefalte faglige normer for inneklima (REVIDERT 2017)
7.6
Varmepumper i ventilasjonsanlegg
7.7
Ventilasjonsmengder - praktiske eksempler
7.8
Energimerking av bygg
7.10
Måling av energibruk i ventilasjonsanlegg (NYTT - 2017)
7.11
Usikkerhet ved dimensjonering av ventilasjonsanlegg
7.12
Varmegjenvinning i ventilasjonsanlegg
8
Avtaleverk
Expand sub pages Kapittel
Aktuelle leverandører
8.1
Overtagelse og kontroll
8.2
Driftsinstruks (REVIDERT 2018)
8.3
Avtale- og kontraktsformer
8.4
Forsikringer
9
Helse - Miljø - Sikkerhet
Expand sub pages Kapittel
Aktuelle leverandører
9.1
Praktiske tiltak ved innemiljøproblemer
9.2
Dokumentasjon av brannsikkerhet i bygninger
9.3
Ventilasjon for allergikere og overømfintlige
9.4
Etablering av system for internkontroll av inneklima (REVIDERT I 2019)
9.5
Lyd i luftbehandlingsanlegg (REVIDERT I 2019)
9.6
Støyproblemer i ventilasjonsanlegg
9.7
Rent Bygg - Krav til en renere byggeprosess
9.8
Byggherreforskriften - praktisk veiledning
9.9
Asbest - kartlegging og sanering
9.10
Rom for oppbevaring av brannfarlig vare
9.11
Mikroorganismene i ventilasjonsanlegg
9.12
Radongass i bygninger (REVIDERT I 2020)
9.13
Kjøletårn - drift og vedlikehold spesielt i forhold til legionella
9.14
Emisjon fra materialer
9.15
Rent Tørt Bygg
9.16.1
Rengjøring i yrkesbygg - Støv i innemiljø
9.16.2
Rengjøring i yrkesbygg - Effektivt renhold
10
Forvaltning - Drift - Vedlikehold
Expand sub pages Kapittel
Aktuelle leverandører
10.1
Nøkkeltall for drift av bygninger
10.2
Periodisk tilstandskontroll
10.3
Serviceavtaler
10.4
Økonomisk argumentasjon
10.5
Frostproblemer i ventilasjonsaggregater
10.6
Feilsøking i ventilasjonsanlegg
10.7
Tilstandskontroll av bygninger
10.8
Ettersyn av ventilasjonsanlegg og offentlige krav
10.9
Rehabilitering av ventilasjonsanlegg
10.10
Avslutning av ventilasjonsanlegg
Varmenormen (2017)
Expand sub pages Publikasjon 1
1
Administrative bestemmelser (endret til 2017-versjon)
Expand sub pages Kapittel
1.1
Navn og formål
1.2
Forhold til gjeldende lovverk og andre publikasjoner
1.3
Oppbygging av Varmenormen
1.4
Organisering
1.4.1
Sekretariat
1.4.2
Utvalg
2
Lover, forskrifter, standarder og normer (endret til 2017-versjon)
Expand sub pages Kapittel
2.1
Generelt
2.2
Plan- og bygningsloven
2.2.1
Pbl § 20 Søknadsplikt
2.2.2
Pbl § 23 Ansvar i byggesaker
2.2.3
Pbl § 27 Tilknytning til infrastruktur
2.3
Teknisk forskrift 2010
2.4
Forskrift om brannforebyggende tiltak og tilsyn (Forebyggendeforskriften)
2.5
Forskrift om begrensning av forurensning (Forurensningsforskriften)
2.6
Forskrift om gjenvinning og behandling av avfall (Avfallsforskriften)
2.7
Energimerkeforskriften
2.8
Forskrift om miljørettet helsevern
2.9
Productforskriften
2.9.1
Produktforskriften – F-gassforordningen
2.9.2
Produktforskriften - Regulering av ozonreduserende stoffer
2.10
Relevante standarder som berører prosjektering, bygging og drift av varmetekniske installasjoner
2.11
Norsk kulde- og varmepumpenorm og NS-EN 378:2016
2.12
Gassnormen
2.13
Tegnesymboler i skjemategning
3
Bygningens effekt- og energibehov (endret til 2017-versjon)
Expand sub pages Kapittel
3.1
Generelt
3.2
Varmeeffektbehov
3.2.1
Varmeffektbehov – Generelt
3.2.2
Romoppvarming
3.2.3
Transmisjonsvarmetap
3.2.4
Ventilasjonsvarmetap
3.2.5
Tappevannseffekt
3.2.6
Annet effektbehov
3.3
Kjøleeffektbehov
3.3.1
Kjøleeffektbehov – Generelt
3.3.2
Krav og behov for kjøling etter TEK10
3.3.3
Kjøling i passivhus
3.3.4
Internlaster
3.3.5
Soltilskudd
3.4
Energibehovsberegninger
3.4.1
Energibehovsberegning – Generelt
3.4.2
Krav til energibruk i bygninger
3.4.3
Temperaturvarighetskurver, fyringssesong og graddagstall
3.5
Energiøkonomisering
3.5.1
Energiøkonimsering – Generelt ved valg av utstyr
3.5.2
Lønnsomhetsberegninger
4
Varmesentraler (endret til 2017-versjon)
Expand sub pages Kapittel
4.1
Lover og forskrifter
4.1.1
Lover og forskrifter som berører bygging og drift av energisentraler
4.2
Forskriftskrav etter TEK 2010
4.2.1
Forskriftsmessig oppvarmingsmetode
4.3
Distribusjonsløsninger og temperaturnivåer
4.3.1
Distribusjonsløsninger og temperaturnivåer – Nye anlegg
4.3.2
Fordelingsprinsipper i varmesentralen
4.3.3
Koblingsprinsipper i energisentraler
4.3.4
Forbrukskretser
4.4
Eksisterende anlegg
4.4.1
Energivurdering
4.4.2
Krav til energiforsyning
4.4.3
Krav til drift
4.5
Varmeproduserende utstyr i varmesentraler
4.5.1
Generelt
4.5.2
Øvrig utstyr i energisentralen
4.5.3
Varmeakkumulering
4.5.4
Elektrokjele/El-kassett
4.5.5
Oljekjel
4.5.6
Gasskjel
4.5.7
Biobrenselkjel
4.5.8
Varmepumper
4.5.9
Solvarmesystemer
4.5.10
Skorsteiner og røkgasskanaler
4.5.11
Gasstanker inklusiv fordamper
4.5.12
Oljetanker
5
Varmeavgivere og kjøleelementer (endret til 2017-versjon)
Expand sub pages Kapittel
5.1
Varmeavgivere
5.1.1
Gulvvarme
5.1.2
Radiatorer og konvektorer
5.1.3
Strålepaneler
5.1.4
Varmebatterier
5.2
Romkjøleavgivere
5.2.1
Kjølebafler, kjøletak og kjølekonvektorer
6
Rørnett og komponenter (endret til 2017-versjon)
Expand sub pages Kapittel
6.1
Rørnett – materialvalg og klamring
6.1.1
Materialvalg og klamring
6.2
System for termisk utvidelse
6.2.1
Ekspansjonsanlegg
6.3
Ventiler
6.3.1
Ventiler – generelt
6.3.2
Sikkerhetsventiler
6.3.3
Innreguleringsventiler (strupeventiler)
6.3.3.1
Krav til plassering
6.3.3.2
Krav til produkt
6.3.3.3
Krav til prosjektering
6.3.4
Avstengningsventiler
6.3.4.2
Beskrivelse og krav til produkt
6.3.5
Tilbakeslagsventiler
6.3.6
Avtappingsventiler
6.3.7
Vakuumventiler
6.3.8
Vekselventiler
6.4
Pumper
6.4.1
Pumper i vannbårne anlegg
6.4.1.1
Generelt om pumper
6.4.1.2
Plassering av pumper
6.4.1.4
Krav til prosjekteringen
6.4.1.5
Krav til utførelse
6.4.1.6
Krav til dokumentasjon
6.4.1.7
Krav til igangkjøring og drift
6.5
Utstyr for opptak av termisk lengdeering
6.5.1
Kompensatorer
6.5.1.1
Generelt om produkt
6.6
Varmevekslere
6.6.1.1
Generelt om varmevekslere
6.6.1.4
Krav til system
6.7
Medier i væskebårne anlegg
6.7.1
Frostbeskyttende medier
6.7.1.1
Generelt om frostbeskyttede medier
6.8
Vannbehandling
6.8.1
Generelt
6.8.2
Lufteanordninger
6.8.3
Filter
6.8.3.6
Dokumentasjonskrav
7
Isolering (endret til 2017-versjon)
Expand sub pages Kapittel
7.1
Isolering
7.1.1
Isolasjon av rørsystemer og utstyr
7.1.1.1
Generelt om system/produkt
7.1.1.2
Krav til isoleringsomfang
7.1.1.3
Krav til produkt
7.1.1.4
Krav til system
7.1.1.5
Preaksepterte ytelser – rør- og kanalisolasjon
7.1.1.6
Krav til prosjektering
7.1.1.7
Krav til utførelse
7.1.1.8
Krav til dokumentasjon
7.1.1.9
Krav til igangkjøring og drift
8
Styring, regulering og overvåking (endret til 2017-versjon)
Expand sub pages Kapittel
8.1
Generelt
8.2
Systemoppbygging
8.2.2
Reguleringsutstyr for mindre anlegg
8.2.3
Lokale kontrollsentraler
8.2.4
Sentralt driftskontrollanlegg
8.3
Definisjoner og krav til system
8.3.1
Feltingstrumenter
8.3.1.1
Definisjoner
8.3.2
Krav til produkt
8.3.2.1
Generelt – krav
8.3.2.2
Krav til målenøyaktighet
8.3.2.3
Reguleringsventiler
8.3.2.4
Energimålere
8.3.3
Krav til prosjekteringen
8.3.3.2
Dokumentasjonskrav
8.3.4
Krav til utførelse
8.3.4.1
Generelle – krav
8.3.4.2
Dokumentasjonskrav og testing
8.4
Generelt om regulering av anlegg
8.4.1
Regulering av energisentraler
8.4.2
Romtemperaturregulering
8.4.3
Mengderegulering
8.4.3.2
Trykkforhold ved mengderegulering
8.4.4
Reguleringsventiler og shuntkoblinger
8.4.4.1
Krav til plassering
8.4.4.2
Krav til akuatorer
8.4.4.3
Beskrivelse og krav til produkt
8.4.5
Regulering av gulvvarmekurser
8.4.6
Varme-/kjølebatterier i ventilasjonsanlegg
8.4.6.1
Ventilasjonsbatterier med frostfare
8.4.6.2
Ventilasjonsbatterier uten frostfare
8.4.7
Natt- og helgesenking av innetemperaturen
9
Distribusjonssystemer (endret til 2017-versjon)
Expand sub pages Kapittel
9.1
Generelt
9.2.2
Prinsipper
9.2.3
Systemtopografi, mv.
9.2.3.1
Et-trørssystem
9.2.3.2
To-rørsystem
9.2.3.3
Fordelingsprinsipp
9.2.3.4
Kursoppdeling
9.2.4
Konstant vannmengde eller mengderegulering
9.2.5
Dimensjonerende temperaturer for nett
9.2.6
Dimensjonering og beregning av rørnett
9.3
Nærvarme
9.3.2
Distribusjonsnett
9.3.3
Kundesentraler
9.4
Fjernvarme
9.5
Fjermkjøling – nærkjøling
9.6
Andredistribusjonssystemer
9.6.1
Gatevarme og snøsmelteanlegg
9.6.1.2
Krav til plassering
9.6.1.3
Krav til produkt
9.6.1.4
Krav til system
9.6.1.5
Krav til prosjektering
9.6.1.6
Krav til utførelse
9.6.1.7
Krav til dokumentasjon
9.6.1.8
Krav til igangkjøring og drift
10
Anlegg for varmt tappevann (endret til 2017-versjon)
Expand sub pages Kapittel
10.1
Generelt
10.2
Plassering
10.3
Systemløsninger
10.3.1
Oppvarming med ladeveksler
10.3.2
Dobbeltmantlet bereder
10.3.3
Beredskapstanker med spiralrorcoiler
10.4
Legionellasikring
10.4.1
Generelt om legionellaspredning
10.4.2
Risikovurdering
10.4.3
Tiltak for å hindre vekst og spredning av legionellabakterier
10.4.3.1
Krav til beredere og akkumulatortanker for varmtvann
10.4.4
Fjernvarmeanlegg
10.5
Prosjektering
10.5.1
Dimensjonering av varmtvannsbehov
10.5.2
Varmtvannsproduksjon
10.5.3
Rørnett
10.5.4
Sirkulasjonsledninger
10.5.5
Ekspansjonskar for tappevannsystemer
10.6
Utførelse
10.7
Drift av anlegg for varmt tappevann
11
Innregulering, igangkjøring og overlevering (endret til 2017-versjon)
Expand sub pages Kapittel
11.1
Generelt
11.2
FDV-dokumentasjon
11.2.2
Orientering
11.2.3
System og anleggsinformasjon
11.2.4
Systeminformasjon
11.2.5
Driftsinformasjon
11.2.6
Feilsøking
11.2.7
Vedlikehold/tilsyn
11.2.7.1
Systematisk vedlikehold
11.2.7.2
Loggbok (kvitterings- og reparasjonskort etc.)
11.2.7.3
Forbruksmateriell/reservedeler
11.2.8
Dokumentasjon
11.2.8.1
Anleggsdokumentasjon
11.2.8.2
Brosjyrer
11.2.8.3
Protokoller
11.2.8.4
Tegninger
11.3
Trykk og tetthetsprøving
11.4
Utlufting
11.4.1
Oppfylling og utlufting av anlegg
11.4.1.2
Krav til anlegget
11.4.1.3
Krav til utførelse
11.4.1.4
Krav til drift
11.5
Innregulering av anlegg
11.5.1
Store anlegg
11.5.2
Sirkulasjonsledninger
11.6
Igangkjøringsprosedyrer
11.6.1
Overlevering
11.6.1.1
Entreprenørens ansvar
11.6.2
Opplæring
11.7
Merking
12
Vedlegg
Expand sub pages Kapittel
Vedlegg A – Relevante standarder
Vedlegg A – Relevante standarder
Varmenormen - tidligere utgaver
Expand sub pages Kapittel
Vannbaserte oppvarmings- og kjølesystemer (2014)
Expand sub pages Publikasjon 1
1
Bygningers varmeeffektbehov
Expand sub pages Kapittel
1
Bygningers varmeffektbehov
1.1
Generelt
1.2
Varmeeffektbehov
1.2.1
Transmisjonstapet
1.2.2
Ventilasjonsvarmetap
1.2.2.1
Infiltrasjon
1.2.2.2
Ventilasjon
2
Varme- og kjøleavgivere
Expand sub pages Kapittel
2
Varme- og kjøleavgivere
2.1
Termisk inneklima
2.2
Varmeavgivere
2.2.1
Bygningsflater
2.2.1.1
Gulvvarme
2.2.1.2
Veggvarme
2.2.1.3
Takvarme
2.2.2
Punktvarme
2.2.2.1
Radiator
2.2.2.2
Konvektor
2.2.2.3
Varmelist
2.2.2.4
Strålevarmeplaner
2.2.2.5
Ventilasjonsvarme
2.2.3
Oppsummering og sammenligning av varmeavgivere
2.3
Kjøleavgivere
2.3.1.1
Takkjøling
2.3.2
Punktkjøling
2.3.2.1
Kjølebafler
2.3.2.2
Viftekonvektor
2.3.2.3
Ventilasjonskjøling
3
Energikilder
Expand sub pages Kapittel
3
Energikilder
3.1
Varmepumpe
3.1.1
Historisk tilbakeblikk
3.1.2
Varmepumpens virkemåte
3.1.2.1
Ulike varmepumpetyper
3.1.2.2
Innføring i termodynamikk for varmepumper
3.1.2.3
Komponenter
3.1.2.4
Arbeidsmedier og oljer
3.1.2.5
Log PH-diagrammet og COP
3.1.3
Forbedringsalternativer
3.1.4
Varmekilde for varmepumper
3.1.5
Karbondioksidvarmepumper
3.1.6
Dimensjonering
3.2
Solvarme
3.2.1
Introduksjon
3.2.1.1
Solinnstråling på jorden og dens effekt
3.2.1.2
Energimengde fra solen
3.2.1.3
Omgjøring av solenergi til anvendbar energi
3.2.1.4
Solfangers orientering
3.2.2
Solvarmeanleggets ulike komponenter
3.2.2.1
Solfangeren
3.2.2.2
Overoppheting i ikke-drenerende systemer
3.2.2.3
Solfangers virkningsgrad
3.2.2.4
Solkretsen
3.2.2.5
Akkumulering av solvarme
3.2.3
Prosjektering av solvarmeanlegg
3.2.3.1
Systemløsninger
3.2.3.2
Dimensjonering av solvarmeanlegg
3.3
Elektrokjel
3.3.1
Elementkjel
3.3.2
Elektrodekjel
3.3.3
Induksjonskjel
3.3.4
Sikkerhetsfunksjoner for elektrokjeler
3.4
Oljekjel
3.4.1
Oljekjelen
3.4.1.1
Støpejernskjel
3.4.1.2
Platekjel
3.4.1.3
Utstyr på kjel
3.4.1.4
Fyringsformer
3.4.1.5
Feiing av kjel
3.4.1.6
Lavtemperaturkjeler
3.4.2
Oljebrennere
3.4.3
Dyser
3.4.4
Brennerautomatikk
3.4.5
Oljetanken
3.4.6
Lufttilførsel og skorsteiner
3.4.7
Bioolje
3.5
Gasskjel
3.5.1
Gasskjeler
3.5.2
Gasstyper
3.5.3
Transport og oppbevaring av gass
3.6
Biokjel
3.6.1
Generelt om biomasse som brensel
3.6.2
Konvertering av biobrensel til varme
3.6.3
Valg av forbrenningsteknologi
3.6.4
Lagring av brensel
3.6.5
Dimensjonering av biokjeler
4
Varmeakkumulering, ekspansjon og sikkerhet i vannbårne anlegg
Expand sub pages Kapittel
4
Varmeakkumulering, ekspansjon og sikkerhet i vannbårne anlegg
4.1
Varmeakkumulering
4.2
Ekspansjonssystemer
4.2.1
Åpne ekspansjonssystemer
4.2.2
Lukkede ekspansjonssystemer
4.3
Sikkerhetsventiler
4.3.1
Sikkerhetsinnretninger
4.3.2
Funksjon, typer og oppbygning av sikkerhetsventiler
4.3.3
Dimensjonering av sikkerthetsventiler
4.3.4
Plassering og montering av sikkerhetsventiler
5
Dimensjonering og isolering av rørnett
Expand sub pages Kapittel
5
Dimensjonering og isolering av rørnett
5.1
Trykktapsberegning
5.1.1
Volumstrøm og hastighet i rør
5.1.2
Forenklet dimensjonering av rørnett
5.1.3
Friksjonstap i rør
5.1.4
Støttap
5.1.5
Reguleringsventiler
5.2
Varmesystemer
5.2.1
Torørs oppdriftssystem
5.2.2
Torørs system med pumpedrift
5.2.3
Torørs system med vendt retur
5.2.4
Ettrørs system
5.3
Isolering av rør
5.3.1
Generelle krav og typer isolasjon
5.3.2
Dimensjonering
6
Effektregulering
Expand sub pages Kapittel
6
Effektregulering
6.1
Innledning, terminologi og grunnleggende begrep
6.2
Reguleringsmetoder
6.2.1
Tostillingsregulering
6.2.2
Flytende regulering
6.2.3
Modulerende regulering
6.2.4
Adaptiv regulering
6.2.5
Fuzzy regulering
6.3
Reguleringsprinsipp
6.3.1
Behovsstyrt effektregulering
6.3.2
Temperaturregulering
6.3.2.1
Utekompensert turtemperatur og utekompenseringskurve
6.3.2.2
Varme- og kjølebatteri i ventilasjonsanlegg
6.3.3
Mengderegulering
7
Varmegjenvinning og kjøling
Expand sub pages Kapittel
7
Varmegjenvinning og kjøling
7.1
Ventilasjonsvarmegjenvinning
7.1.1
Passiv ventilasjonsvarmegjenvinning
7.1.2
Aktiv ventilasjonsvarmegjenvinning
7.1.3
Kombinert aktiv og passiv ventilasjonsvarmegjenvinning
7.2
Kjøling
7.2.1
Passiv kjøling
7.2.1.1
Regulering av varmeanlegg og varmegjenvinner
7.2.1.2
Redusere varmetilskudd
7.2.1.3
Nattkjøling og varmeforflytning
7.2.1.4
Jordvarmeveksler
7.2.1.5
Passiv kjøling i kombinasjon med varmepumpe
7.2.2
Aktiv kjøling
7.2.2.1
Utnytting av varme fra kjøleanlegg
7.2.3
Kombinert passiv og aktiv kjøling
7.3
Gråvannsvarmegjenvinning
7.3.1
Passiv gråvannsvarmegjenvinning
7.3.2
Aktiv gråvannsvarmegjenvinning
7.3.3
Kombinert aktiv og passiv gråvannsvarmegjenvinning
8
Vannvarmere
Expand sub pages Kapittel
8
Vannvarmere
8.1
Historisk tilbakeblikk
8.2
Innføring i og oppbygning av dagens varmtvannsberedere
8.2.1
Innertank
8.2.2
Anslutninger
8.2.3
Yttermantel
8.2.4
Isolasjon
8.2.5
Komponenter
8.3
Overordnede hensyn for varmtvannsberedere
8.3.1
Vannkvalitet og korrosjonsbeskyttelse
8.3.2
Tappevannstemperatur og Legionella
8.3.3
Beredertemperatur og varmetap
8.3.4
Ekspansjon og tilbakestrømning
8.3.5
Plassering av varmtvannsbereder og tiltak mot vannskader
8.3.6
Sirkulasjonsledning varmekabel og ettervarmer
8.3.7
Varmetapsberegning av varmtvanns- og sirkulasjonsledninger
8.4
Varianter og systemløsninger
8.4.1
Gjennomstrømningsvarmer
8.4.2
Direkte oppvarmet varmtvannsbereder
8.4.3
Indirekte oppvarmet varmtvannsbereder
8.4.4
Kombinert direkte og indirekte oppvarmet varmtvannsbereder
8.4.5
Sammenkobling av flere beredere
8.4.6
Direkte ladende systemer
8.5
Dimensjonering av varmtvannsberedersystem
8.5.1
Forenklet berederdimensjonering ved hjelp av tabeller
8.5.2
Berederdimensjonering for enkeltboliger og større anlegg med kort dimensjonseringsperiode
8.5.3
Dimensjonering av større berederanlegg
9
Anleggsutførelser og systemløsninger
Expand sub pages Kapittel
9
Anleggsutførelser og systemløsninger
9.1
Reguleringsventiler
9.1.1
Toveis reguleringsventiler
9.1.2
Treveis reguleringsventiler
9.2
Sammenkobling av energikilder
9.3
Systemløsninger
10
Innregulering og igangkjøring
Expand sub pages Kapittel
10
Innregulering og igangkjøring
10.1
Generelt
10.2
Utlufting
10.3
Innregulering
Ventilasjonsteknikk Del I (utgave 2019)
Expand sub pages Publikasjon 1
0
Innholdsfortegnelse
Expand sub pages Kapittel
Innholdsfortegnelse
1
Introduksjon til ventilasjonsfaget (oppdatert februar 2019)
Expand sub pages Kapittel
Introduksjon til ventilasjonsfaget
1.1
Kort historikk om ventilasjon
1.2
Ventilasjonsfagets ulike komponenter - en enkel oversikt
1.3
Luftinntak og luftavkast
1.3.1
Luftinntak
1.3.1.1
Inntaksrist
1.3.1.2
Inntakshatt
1.3.2
Luftavkast
1.3.3
Kombihatt
1.4
Ventilasjonsaggregat
1.5
Filter
1.5.1
Filterets virkemåte
1.5.1.1
Vanlig filter
1.5.1.2
Elektrostatfilter
1.5.2
Filterets virkningsgrad
1.5.3
Anbefalt filterklasse
Luftforurensninger i norske byer
1.5.4
Energimerking av ventilasjonsfilter
1.6
Kanaler
1.6.1
Spirokanaler
1.6.2
Rektangulære kanaler
1.7
Spjeld
1.7.1
Statiske spjeld, innreguleringsspjeld
1.7.2
Dynamiske spjeld
1.8
Brannspjeld
1.9
Lyddemper
1.9.1
Lyddemper for spirokanal
1.9.2
Lyddemper for rektangulær kanal
1.9.3
Egenstøy og plassering
1.10
Tillufts-, avtrekks- og overluftsventiler
1.10.1
Tilluftsventiler
1.10.1.1
Tilluftsventiler for omrøringsventilasjon
1.10.1.2
Tilluftsventiler for fortrengningsventilasjon
1.10.2
Avtrekksventiler
1.10.3
Overluftsventiler
1.11
Oppholdssonen
1.12
Kjøling
1.12.1
Dimensjonering av kjølekapasitet
1.12.2
Kjøling via isvannmaskin
1.12.3
DX-kjøling
1.12.4
Adiabatisk kjøling
1.13
Vifter
1.13.1
Sentrifugalvifte
1.13.1.1
Kammervifte
1.13.1.3
Kanalvifte
1.13.1.4
Takvifte
1.13.2
Aksialvifte
1.13.2.1
Aksialvifte for kanalmontasje
1.13.2.2
Aksialvifte for veggmontasje
1.13.3
Motor og reguleringsmetode
1.14
Luftport
1.15
Isolering
1.15.1
Termisk isolering
1.15.1.1
Cellegummi
1.15.1.2
Mineralull
1.15.2
Lydisolasjon
1.15.3
Brannisolasjon
1.16
Automatikk
1.16.1
Flytskjema for ventilasjonsaggregat
1.16.2
Flytskjema for komplett system
1.16.3
Symboloversikt
1.17
Enheter
2
Inneklima (oppdatert februar 2019)
Expand sub pages Kapittel
2
Inneklima
2.1
Krav til inneklima
2.1.1
Arbeidstilsynets veiledning 444
2.1.2
Byggeteknisk forskrift TEK17
2.1.3
NS-ISO 7730
2.1.4
NS-EN 15251
2.2
Termisk miljø - kroppens varmebalanse
2.2.1
Metabolismen
2.2.2
Bekledning
2.2.3
Middelstrålningstemperatur
2.2.4
Operativ temperatur
2.2.5
Varmebalanseligningen
2.2.6
Komfortdiagram
2.3
Komfortkriterier
2.3.1
PMV-indeks
2.3.2
PPD-indeks
2.4
Lokal termisk ubehag
2.4.1
Vertikal temperaturgradient
2.4.2
Assymetrisk stråling
2.4.3
Trekk
2.4.4
Betydning av luftfuktigheten
2.5
Konsekvens av dårlig inneklima
2.5.1
Helseplager
2.5.2
SBS - Sykt Bygg Syndrom
2.5.3
Nedsatt arbeidseffektivitet
2.6
Inneklimaundersøkelser
3
Fuktig luft
Expand sub pages Kapittel
3
Fuktig luft (oppdatert februar 2019)
3.1
Krav til fuktinnhold
3.2
Diagram for fuktig luft – Mollierdiagram
3.3
Fuktig luft med formler
3.3.1
Tilstandsligningen
3.3.2
Fuktighetsgrad
3.3.3
Metningsgrad og relativ fuktighet
3.3.4
Beregning av relativ luftfuktiget og duggpunktstemperatur
3.3.5
Fuktig lufts spesifikke masse og densitet
3.3.6
Fuktig lufts entalpi
3.4
Oppbyggingen av Mollierdiagrammer
3.4.1
Det umettede området av hx-diagrammet
3.4.2
Det mettede området av hx-diagrammet
3.4.3
hx-diagrammet med andre totaltrykk
3.4.4
Randskalaen i hx-diagrammet, dh/dx
3.5
Tilstandsendringer i hx-diagrammet
3.5.1
Blanding av to luftmengder
3.5.2
Kjøling av luft
3.5.3
Befuktning
3.5.3.1
Befuktning med damp
3.5.3.2
Befuktning med vann
3.5.3.3
Befuktningsgraden
3.5.4
Avfuktning
Mollier-diagrammet (vedlegg)
4
Varmeoverføring
Expand sub pages Kapittel
4
Varmeoverføring (oppdatert februar 2019)
4.1
Varmegjenvinnere en oversikt
4.1.1
Temperaturvirkningsgrad, årsgjennomsnittlig temperaturvirkningsgrad og årsenergivirkningsgrad
4.1.1.1
Temperaturvirkningsgrad
4.1.1.2
Tørr virkningsgrad og årsgjennomsnittlig temperaturvirkningsgrad
4.1.1.3
Årsenergivirkningsgrad
4.2
Varme- og kjølebatterier, en oversikt
4.2.1
Ulike tilkoblinger
4.3
Fysikken i varmeoverføring
4.3.1
Varmeledning
4.3.2
Konveksjon
4.3.2.1
Turbulent strømning i rør og kanaler
4.3.2.2
Tvungen konveksjon utvendig rør/kanaler
4.3.3
Termisk stråling
4.3.3.1
Strålingsutveksling mellom grå overflater
4.3.3.2
Varmeoverganskoeffisient ved stråling
4.3.4
Stråling gjennomgangskoeffisienten, U-verdi
4.3.4.1
U-verdi for sylinder, isolering av rør og kanaler
4.4
Varmebatterier og kjølebatterier
4.4.1
Beregning av varmeoverføring
4.4.2
Strømningsforhold
4.4.2.1
Kobling i motstrøm
4.4.2.2
Kobling i medstrøm
4.4.2.3
Kobling i krysstrøm (tverrstrøm)
4.4.2.4
Varmebatteri og kjølebatteri i en varmepumpeprosess
4.4.3
Beregning av varmeoverføring med ε,NTU metoden
4.4.4
Varmeoverføring ved våte flater
4.5
Varmegjenvinnere
4.5.1
Varmepumpe
4.5.2
Roterende varmegjenvinner
4.5.2.1
Ulike typer roterende varmegjenvinnere
4.5.3
Kammerveksler
4.5.4
Plateveksler
4.5.4.1
Plateveksler type kryssveksler
4.5.4.2
Plateveksler type motstromsveksler
4.5.5
Batterigjenvinner
4.6
Kjølebaffel og adiabatisk kjøling
4.6.1
Kjølebaffel
4.6.1.1
Passiv kjølebatteri kjølebaffel (med egen konveksjon)
4.6.1.2
Aktiv kjøolebaffel
4.6.2
Adiabatisk kjøling
5
Strømningsteknisk grunnlag
Expand sub pages Kapittel
5
Strømningsteknisk grunnlag (oppdatert februar 2019)
5.1
Kontinuitetsligningen
5.2
Bernoullis ligning
5.2.1
Trykkmålinger
5.3
Trykkendringer i kanalsystemet
5.3.1
Friksjonstap med diagram
5.3.1.1
Hydraulisk diameter
5.3.1.2
Ekvivalent diameter
5.3.2
Støttap enkel motstand
5.4
Strømningsteknikken med formler
5.4.1
Reynolds tall
5.4.1.2
Kinematisk viskositet
5.4.2
Laminær og turbulent luftstrøm
5.4.3
Friksjonstap med formler
5.4.3.1
Moodys diagram
5.4.4
Støttap (enkeltmotstand)
5.4.4.1
Tverrsnittutvidelse
5.4.4.2
Tverrsnittreduksjon
5.4.4.3
Bend
5.4.4.4
Forgrening (avgrening)
5.4.4.5
Andre støttap
5.5
Trykkfallsberegning og utbalansering
5.5.1
Trykkfallsberegning og utbalansering uten optimalisering (REVIDERT 2017)
5.5.2
Trykkfallsberegning og utbalansering med optimalisering (REVIDERT 2017)
6
Luftmengdebehov
Expand sub pages Kapittel
6
Luftmengdebehov (oppdatert februar 2019)
6.1
Minimumskrav i Byggteknisk forskrift (TEK)
6.1.1
§ 13-2 Ventilasjon i boenhet
6.1.2
§ 13-3 Ventilasjon i byggverk for publikum og arbeidsbygning
6.1.3
NS-EN 15251
6.2
Arbeidstilsynets veiledning 444
6.3
Behovet for ventilasjon for personer og emisjoner
6.3.1
Behagelighetskriterier - opplevd luftkvalitet
6.3.1.1
Luftmengder basert på olf og decipol
6.3.1.2
Luftmengder basert pa CO₂
6.3.2
Ventilering for sunnhet
6.3.2.1
Forskrift om tiltaks- og grenseverdier
6.3.2.2
Ventilering av garasje
6.3.3
Emisjoner - flyktige organiske forbindelser (VOC)
6.3.3.1
Lavemitterende bygningskonstruksjoner
6.3.4
Ikke-stasjonære forhold
6.3.5
Luftveksling
6.4
Klimatisering
6.4.1
Kontroll på temperatur
6.4.1.1
Varmetap grunnet transmisjon
6.4.1.2
Varmetap grunnet infiltrasjon
6.4.1.3
Varmetap grunnet ventilasjon
6.4.1.4
Varmetilskudd grunnet internlast
6.4.1.5
Varmetilskudd grunnet personbelastning
6.4.1.6
Varmetilskudd grunnet soltilskudd
6.4.1.7
Akkumulering
6.4.1.8
Forenklet metode for å beregne nødvendig kjøleeffekt
6.4.2
Kontroll på luftfuktighetsnivå
7
Hovedtypene av ventilasjonssystemer
Expand sub pages Kapittel
7
Hovedtypene av ventilasjonssystemer (oppdatert februar 2019)
7.1
Generell innføring
7.2
Naturlig ventilasjon
7.2.1
Termisk oppdrift
7.2.1.1
Termisk oppdrift med kanalføring
7.2.1.2
Termisk oppdrift i høye bygninger
7.2.1.3
Port og døråpninger
7.2.2
Vindkrefter
7.2.2.1
Bygningens formfaktorverdi
7.2.2.2
Vindhastighet
7.2.2.3
Terrengruhet
7.3
Avtrekksventilasjon
7.3.1
Trykkforholdene ved avtrekksventilasjon
7.3.2
Friskluftsventiler
7.3.2.1
Klaffventiler
7.3.2.2
Spalteventiler
7.3.2.3
Friskluftsventiler med integrert oppvarming
7.3.3
Avtrekksvarmepumpe
7.3.3.1
Årsgjennomsnitlig produksjonsvarmefaktor
7.3.3.2
Årsgjennomsnitlig distribusjonsvirkningsgrad
7.3.3.3
Årsgjennomsnitlig romvirkningsgrad
7.4
Balansert ventilasjon
7.4.1
Ventilasjon av eneboliger og rekkehus
7.4.2
Ventilasjon av leiligheter
7.4.3
Ventilasjon i næringsbygg
7.5
Hybrid ventilasjon
7.5.1
Systemløsning
7.5.2
Automatisk vindusåpning
8
Luftstrømninger i rom
Expand sub pages Kapittel
8
Luftstrømninger i rom (oppdatert februar 2019)
8.1
Ventilasjonsprinsipper
8.1.1
Oppholdssonen
8.1.2
Ventilasjonens effektivitet
8.1.2.1
Luftvekslingstallet (n)
8.1.2.2
Ventilasjonseffektivitet (εv)
8.1.2.3
Temperatureffektivitet (εvt)
8.1.3
Omrøringsventilasjon
8.1.3.1
Kastelengde
8.1.3.2
Coandaeffekt
8.1.3.3
Maksimal inntrengningslengde
8.1.3.4
Sverting rundt ventil
8.1.3.5
Tilluft med overtemperatur
8.1.3.6
Ventiler for omrøringsventilasjon
8.1.4
Fortrengningsventilasjon
8.1.4.1
Sjikthøyde
8.1.4.2
Nærsone
8.1.4.3
Temperaturgradient
8.1.4.4
Tilluftsventiler for fortrengningsventilasjon
8.1.5
Avtrekksventiler
8.1.5.1
Avtrekksventiler ved omrøringsventilasjon
8.1.5.2
Avtrekksventiler ved fortrengningsventilasjon
8.1.5.3
Ulike typer avtrekksventiler
8.2
Effektivitetsmål
8.2.1
Luftens alder
8.2.1.1
Stempelstrøm
8.2.1.2
Sporgassundersøkelse
8.2.2
Luftvekslingseffektivitet (εa)
8.2.3
Lokal luftvekslingsindikator (εi)
8.2.4
Ventilasjonseffektivitet (εv eller εv,op)
8.2.5
Lokal ventilasjonsindeks (εv,p)
8.3
Luftbevegelser
8.3.1
Fri horisontal isoterm luftstråle
8.3.1.1
Sirkulær stråle, tilnærmet isoterm
8.3.1.2
Plan stråle, tilnærmet isoterm
8.3.1.3
Radiell stråle, tilnærmet isoterm
8.3.1.4
Sammenhengen mellom kastelengder og ulike slutthastigheter
8.3.2
Ikke-isoterm luftstråle
8.3.2.1
Arkimedes tall
8.3.2.2
Klebelengde
8.3.2.3
Inntrengningslengde for horisontal stråle
8.3.2.4
Banekurve
8.3.2.5
Vertikale stråler påvirket av termiske krefter
8.3.3
Naturlig konveksjon
8.3.3.1
Konveksjonsstrøm fra varmekilde i rom uten temperaturgradient
8.3.3.2
Konveksjonsstrøm fra varmekilde i rom med temperaturgradient
8.3.3.3
Vertikale luftbevegelser fra varm eller kald flate
Kildehenvisninger
Expand sub pages Kapittel
Kildehenvisninger
Ventilasjonsteknikk Del II (utgave 2019)
Expand sub pages Publikasjon 1
Innholdsfortegnelse
Expand sub pages Kapittel
Innholdsfortegnelse
Lyd og lyddemping i ventilasjonsanlegg
Expand sub pages Kapittel
9
Lyd og lyddemping i ventilasjonsanlegg
9.1
Lydkrav i ventilasjonsanlegg
9.1.1
Lydkrav i boliger
9.1.2
Lydkrav på kontorer
9.1.3
Lydens veier
9.2
Hva er lyd?
9.2.1
Frekvens
9.2.2
Lydstyrke i lydeffekt og lydtrykk
9.2.3
Logaritmisk skala og summering av lyd
9.2.4
Tilpasning til vår hørsel - A-filter
9.2.4.1
A-, C- og Z-filter
9.2.4.2
RC-kurver
9.3
Lydutbredelse innendørs
9.3.1
Retningsfaktor
9.3.2
Absorpsjonsfaktor
9.3.3
Etterklangstid
9.3.4
Romkonstant og romdempning
9.3.4.1
Lydtrykknivå i store udempede rom
9.3.4.2
Lydtrykknivå i dempede rom
9.4
Lydutbredelse utendørs
9.4.1
Lydskjerm
9.5
Lyddempning i ventilasjonsanlegget
9.5.1
Lyddempere
9.5.1.1
Absorpsjonslyddemper
9.5.1.2
Aktiv lyddemper
9.5.2
Dempning i kanalens ende
9.5.2.1
Dempning ved enderefleksjon
9.5.2.2
Egendempning i ventil
9.5.3
Dempning i kanalnettet
9.5.3.1
Dempning i rette kanaler uten innvendig isolasjon
9.5.3.2
Dempning i rette kanaler med innvendig isolasjon
9.5.3.3
Lyddempning i avgreining
9.5.3.4
Dempning i bend
9.5.3.5
Dempning i kammer
9.5.3.6
Dempning i andre ventilasjonskomponenter
9.6
Lydgenering i ventilasjonsanlegget
9.6.1
Lydgenering i rett kanal
9.6.2
Lydgenering i bend og avgreining
9.6.3
Lydgenering i lyddemper
9.7
Lyddokumentasjon for ventilasjonskomponenter
9.7.1
Lyddokumentasjon for ventiler
9.7.2
Lyddokumentasjon for spjeld
9.7.3
Lyddokumentasjon for vifter og aggregater
9.7.4
Lyddokumentasjon for kjølemaskin
9.8
Lydberegning
9.9
Lydoverføring
9.9.1
Lydreduksjonstall
9.9.2
Lydoverføring gjennom veggen
9.9.3
Flankeoverføring
9.9.3.1
Lydoverføring gjennom kanaler uten åpninger
9.9.4
Lekkasje
9.9.5
Lydoverføring gjennom kanalnettet
9.9.6
Lydoverføring med overluftsventil
9.10
Lydmålinger
9.10.1
Lydmålinger innendørs
9.10.2
Lydmålinger utendørs
9.11
Vibrasjoner
9.11.1
Krav til vibrasjoner
9.11.2
Den forstyrrende kraft
9.11.3
Vibrasjonsdempning
9.12
Feilsøking
9.12.1
Innledende målinger
9.12.2
Lydproblemer
9.12.3
Vibrasjonsproblemer
Energibruk til viftedrift, oppvarming og kjøling
Expand sub pages Kapittel
10
Energibruk til viftedrift, oppvarming og kjøling
10.1
Myndighetskrav til energibruk
10.1.1
NS 3031 Beregning av bygningers energiytelse
10.1.2
Netto energibehov og levert energi
10.1.3
Energimerking og energivurdering
10.1.3.1
Energimerking
10.1.3.2
Energikarakter
10.1.3.3
Oppvarmingskarakter
10.1.4
Energivurdering
10.2
Energi til viftedrift
10.2.1
Proposjonallovene
10.2.2
Viftens arbeidspunkt og anleggslinje
10.2.2.1
Endring i luftmengde og trykk
10.2.2.2
Anleggslinje med trykkregulering
10.2.3
SFP-verdi
10.2.3.1
Ulike SFP-verdier som skal dokumenteres
10.3
Energi til oppvarming
10.3.1
Graddager og Graddagsmetoden
10.3.2
Varighetsdiagrammer
10.3.2.1
Energibehov til oppvarming uten varmegjenvinner
10.3.2.2
Energibehov til oppvarming med varmegjenvinner
10.3.2.3
Fuktvarighetsdiagram
10.4
Energi til kjøling
10.4.1
Entalpivarighetsdiagram
10.4.2
Kjølegjenvinning
10.5
Effektvarighetsdiagram
10.6
LCC - Livssykluskostnad
10.6.1
Nåverdi
10.6.2
Årskostnadsmetoden
10.6.3
Internrente
10.6.4
Tilbakebetalingstid - Payback-metoden
10.7
Kontroll av energibruk
10.7.1
ET-kurve
10.7.2
Graddager
10.7.3
Middeltemperaturer
10.7.4
Dynamisk beregning - avansert metode
Behovsstyrt ventilasjon
Expand sub pages Kapittel
11
Behovsstyrt ventilasjon
11.1
En introduksjon
11.1.1
Behovsstyrt og brukerstyrt ventilasjon
11.1.2
Reservekapasitet
11.1.3
Fallgruver og vanlige feil
11.1.4
Full luftmengde ved brann
11.2
Energibesparelse med behovsstyrt ventilasjon
11.2.1
Samtidighet
11.2.2
Besparelse på vifteenergi
11.2.3
Besparelse på energi til ettervarme
11.2.4
Besparelse i romoppvarming
11.3
Komponenter i kanalnettet
11.3.1
DCV-spjeld
11.3.1.1
Innstilling av luftmengde
11.3.1.2
Avstand til forstyrrelser
11.3.1.3
Master slavekobling sammenlignet med parallellkobling
11.3.2
DCV-ventil (aktiv tilluftsventil)
11.3.3
Selvvirkende mekaniske CAV-spjeld
11.3.4
Spjeld med aktuator
11.3.5
Trykkregulert sone
11.4
Måleparameter i rommet
11.4.1
Plassering av sensorer
11.4.1.1
Sensorplassering ved fortrengningsventilasjon
11.4.1.2
Sensorplassering med omrøringsventilasjon
11.4.2
Bevegelsesdetektor
11.4.3
Temperatursensor
11.4.4
CO2- og temperatursensor
11.5
Valg av automatiseringsprinsipp
11.5.1
Lokalt regulert anlegg
11.5.2
Sentralt regulert anlegg
11.5.2.1
Administrasjonsnivået (SD-anlegg)
11.5.2.2
Automatiseringsnivået
11.5.2.3
Feltnivå
11.5.2.4
Distribuert intelligens
11.6
Valg av reguleringsprinsipp for vifter
11.6.1
Trykkregulert anlegg
11.6.1.1
Statisk trykkføler nær aggregatet
11.6.1.2
Statisk trykkføler i kanalnettet
11.6.1.3
Trykkregulering med sonespjeld
11.6.2
Optimalt regulert anlegg
11.6.2.1
Regulering av vifteturtall basert på spjeldvinkel
11.6.2.2
Spjeldvinkelregulering med sonespjeld
11.6.2.3
Optimalisering via trykkpunktjustering
11.6.2.4
Aktive tilluftsventiler
11.6.3
Blande variable og konstante soner på samme kanalnett
11.6.3.1
Trykkregulert anlegg og luften forsynes fra trykkregulert kanal
11.6.3.2
Selvvirkende mekaniske CAV-spjeld til konstant rom
11.6.3.3
Trykkregulering av sonen
11.7
Prosjekteringsunderlag og dokumentasjon
11.7.1
Funksjonsbeskrivelse
11.7.2
Romskjema/TAG-liste med luftmengder
11.7.3
Topologiskjema
11.8
Oppstart funksjonstest og belastningstest
11.8.1
Oppstart av et trykkregulert anlegg
11.8.1.1
Trykkregulert anlegg/sone uten opptimaliseringsfunksjon
11.8.1.2
Trykkregulert anlegg/sone med DCV-spjeld og reguleringsspjeld
11.8.2
Belastningstest
11.8.2.1
Maksimal samtidighet for bygget
11.8.2.2
Minimum luftmengde i bygningen
11.8.2.3
Hvordan endre innstilt luftmengde
11.8.2.4
Kontrollmåling av luftmengde
11.8.2.5
Stikkprøve ved tredjepartskontroll
Kanaler
Expand sub pages Kapittel
12
Kanaler
12.1
Tetthet
12.2
Spirokanaler
12.3
Rektangulære kanaler
12.3.1
Skjøting av rektangulære kanaler
12.4
Trykktap
12.4.1
Trykktap i kanaler
12.4.2
Trykktap over komponenter
12.4.3
Anleggskarakteristikk
12.4.4
Viftekarakteristikk og driftspunkt
12.5
Materialkrav
12.6
Renhet
12.6.1
Kontroll av renhet
12.6.1.1
Gravimetrisk måling
12.6.1.2
Filmtykkelse
12.6.1.3
Optisk måling
12.6.2
Rengjøring av kanaler
12.6.2.1
Manuelle metoder støvsuging og avtørking
12.6.2.2
Roterende borster
12.6.2.3
Trykkluft
12.6.2.4
Tørris
12.7
Oppheng
12.8
Merking
12.9
Planlegging av kanalsystemet
12.10
Kanaldimensjonering av CAV-anlegg
12.10.1
Tilluftskanaler
12.10.1.1
Bahcos 1/3-dels metode (revidert juni 2017)
12.10.1.2
Hastighetsmetoden (revidert juni 2017)
12.10.1.3
Konstant trykkfallsmetoden
12.10.1.4
Statisk trykkgjenvinningsmetoden
12.10.1.5
Konstant dimensjon
12.10.2
Avtrekkskanaler
12.11
Kanaldimensjonering av behovsstyrte anlegg
Brannsikring av ventilasjonsanlegg
Expand sub pages Kapittel
13
Brannsikring av ventilasjonsanlegg
13.1
Brannmotstand og overflatekrav
13.1.1
Overflater
13.2
Brannsikkerhetsstrategi
13.3
Lover og forskrifter
13.3.1
Brannskillets brannmotstand
13.3.1.1
Risikoklasse
13.3.1.2
Brannklasse
13.3.2
Brannseksjoner
13.3.3
Brannceller
13.3.4
Krav til tekniske installasjoner
13.4
Ventilasjon stoppet under brann steng inne strategi
13.4.1
Krav til brannspjeld
13.4.1.1
Montasje av brannspjeld
13.4.2
Styring av aggregat
13.5
Ventilasjon i drift under brann trekk ut strategi
13.5.1
Tilgjengelig romningstid ved brann
13.5.2
Temperaturkrav
13.5.2.1
Standard brannkurve ISO 834
13.5.3
Sikring av kanalnettet
13.5.3.1
Nødvendig trykk i kanalnettet
13.5.3.2
Brannisolasjon (revidert i 2019)
13.5.4
Sikring av ventilasjonsaggregatet luftinntak og luftavkast
13.5.4.1
Full luftmengde
13.5.4.2
Omluft må stenge
13.5.4.3
Sikker strømtilforsel
13.5.4.4
Temperaturkrav til vifte
13.5.4.5
Bypass
13.5.4.6
Styring av ventilasjonsaggregat
13.5.4.7
Luftinntak og luftavkast
13.5.5
Automatisk slokkeanlegg sprinkling
13.5.5.1
Automatisk slokkeanlegg og krav til brannisolasjon
13.5.5.2
Automatisk slokkeanlegg og temperaturkrav til avtrekksvifte
13.5.5.3
Automatisk slokkeanlegg og krav til bypass
13.5.5.4
Automatisk slokkeanlegg og øvrige krav
13.6
Brannisolering av kanal fra kjøkkenavtrekk
13.7
Kombinert løsning steng inne og trekk ut
13.8
Røykventilasjon
13.8.1
Røykventilasjon av garasjeanlegg
13.8.2
Røyventilering av heissjakt og installasjonssjakt
13.8.3
Røyventilasjon av trapperom
13.8.3.1
Termisk røykevakuering
13.8.3.2
Trykksetting av trapperom
13.8.4
Røykventilasjon av overbygde gårder og gater
13.8.4.1
Dimensjonerende brannareal og røykgasstemperatur
13.8.4.2
Termisk røykventilasjon av overbygde gårder og gater
13.8.4.3
Mekanisk røykventilasjon av overbygde gårder og gater
Innregulering og overlevering av anlegg
Expand sub pages Kapittel
14
Innregulering og overlevering av anlegg
14.1
Innregulering
14.1.1
Manuelle metoder
14.1.1.1
Proporsjonalmetoden
14.1.1.2
Forinnstillingsmetoden
14.1.1.3
Innreguleringsskjema
14.1.2
Automatiske metoder
14.1.2.1
Selvvirkende mekaniske CAV-spjeld (konstantvolumregulatorer)
VVS-tegning med oppgavesamling
Expand sub pages Publikasjon 1
Bruk av VVS-tegning
Expand sub pages Kapittel
0
Innledning - bruk av VVS-tegning
Innføring
Expand sub pages Kapittel
1.01
Kunnskapsmål
1.02
Prosjektering og bruk av standarder og symboler for bygg
1.03
Farger
1.04
Tegningsformater
1.05
Feltene på tegningsarket
1.06
Målestokk
1.07
Byggtegninger – oversikt over ulike tegningstyper
1.08
Situasjonskart
1.09
Plantegninger
1.10
Snitt
1.11
Fasader
1.12
Skjemaer
1.13
Detaljtegninger
1.14
3D-tegninger/BIM
1.15
BIM
1.16
Målsetting av byggtegninger
1.17
Akser og moduler
1.18
Buer og vinkelmål
1.19
Konstruksjonstegning
1.20
Projeksjonstegning
Bygningen
Expand sub pages Kapittel
2.01
Kunnskapsmål
2.02
Konstruksjon og bygningsdeler – definisjoner
2.03
Arealdefinisjoner
2.04
Hulltaking og utsparinger
2.05
Vannskadesikkerhet
2.06
Energikrav – isolering
2.07
Elektriske installasjoner
2.08
Feste av utstyr – spikerslag og festemateriell
2.09
Byggesøknader, dokumentasjon og kontroll
Sanitær
Expand sub pages Kapittel
3.01
Kunnskapsmål
3.02
Hva er et sanitæranlegg?
3.03
Prosjektering av sanitæranlegg – underlaget for prosjekteringen
3.04
Prosjektering av sanitæranlegg – rekkefølgen i tegnearbeidet
3.05
Spesielt om overvannsledninger
3.06
Spesielt om sanitærutstyr og rom med sanitæranlegg
3.07
Bad- og dusjrom
3.08
Vaskerom
3.09
Kjøkken
3.10
WC-rom
3.11
Sanitærrom for bevegelseshemmede
3.12
Brannslanger og brannskap
3.13
Hagevanningskraner
3.14
Snitt
3.15
Detaljer
3.16
Anlegg for spredt bebyggelse
3.17
3D-tegninger
3.18
BIM
Varme
Expand sub pages Kapittel
4.01
Kunnskapsmål og læremidler
4.02
Hva er et vannbåret sentralvarmeanlegg?
4.03
Prosjektering av sentralvarmeanlegg – fremgangsmåte
4.04
Forenklet dimensjonering av effektbehov
4.05
Radiatoranlegg
4.06
Gulvvarmeanlegg
4.07
Distribusjon – Rør og ventiler
4.08
Energikilder
4.09
Flytskjemaer
4.10
Oppleggsskjema for varme – varmeskjema
4.11
3D-tegninger/isometriske tegninger
4.12
BIM for varmeanlegg
Ventilasjon
Expand sub pages Kapittel
5.01
Kunnskapsmål og læremidler
5.02
Boligventilasjon – generelt
5.03
Prosjektering av et boligventilasjonsanlegg – fremgangsmåte
5.04
Forenklet dimensjonering
5.05
Plantegninger
5.06
Flytskjemaer
5.07
Oppleggsskjema for boligventilasjon
5.08
3D-tegninger og BIM
5.09
Støvsugeranlegg
Boligsprinkler
Expand sub pages Kapittel
6.01
Kunnskapsmål
6.02
Hva er et boligsprinkleranlegg?
6.03
Prosjektering av boligsprinkleranlegg
6.04
Forenklet dimensjonering
6.05
Sprinklerhoder – typer og plassering
6.06
Vanntåkeanlegg
Boliggass
Expand sub pages Kapittel
7.01
Kunnskapsmål
7.02
Hva er boliggass?
7.03
Lover og regelverk
7.04
Rørdimensjonering
7.05
Tank eller flasker?
7.06
Spesielle krav til tank
7.07
Krav til installasjonen
7.08
Rørledninger og skjøter
7.09
Nyttige opplysninger vedrørende boliggass
7.10
Symboler for gasstegninger
7.11
Eksempel på boliggassinstallasjon
BricsCAD-VVS
Expand sub pages Kapittel
8.01
Innledning
8.02
Brukermanual
Øvinger og oppgaver
Expand sub pages Kapittel
9.1
Grunnlag for øvingsrekkene
9.2
YFF-plan for NIVÅ 1 - dwg
9.3
YFF-plan for NIVÅ 1 - pdf
9.4
YFF-plan for NIVÅ 2 - dwg
9.5
YFF-plan for NIVÅ 2 - pdf
9.6
Eksempel
9.7
Øvingsrekker og oppgaver NIVÅ-1
9.8
Øvingsrekker og oppgaver NIVÅ-2
9.9
Øvingsrekker og oppgaver NIVÅ-3
Kompendium for Fgass-sertifisering (2019)
Expand sub pages Publikasjon 1
Minimumskrav sertifisering
Expand sub pages Kapittel
0.1
Introduksjon (s. 2-4)
0.2
Minimumskrav til sertifisering (s. 5-13)
Grunnleggende teori
Expand sub pages Kapittel
1.1
Grunnleggende enheter (s. 15-24)
1.2
Kuldesystemens grunnleggende teori og termodynamikk (s. 25-35)
1.3
Kuldeprosessen og hovedkomponentenes funksjon (s. 36-39)
1.4
Log.p-h diagram og metningstabeller (s. 40-45)
1.5
Kunnskap og kuldemediets termodynamiske egenskaper (s. 46-51)
1.6
Bruk av relevante tabeller og diagrammer (s. 52-56)
1.7
Beskrive kuldeprosessen og hovedkomponentenes funksjon (s. 57-65)
1.8
Funksjon og hensikt til komponenter (s. 66-68)
Kuldemedier og reguleringer
Expand sub pages Kapittel
2.1
Krav til kuldemedier (s. 69-70)
2.2
Fysikalske egenskaper (s. 71-72)
2.3
Hvilke gasser er det snakk om? (s. 73)
2.4
Hvilke gasser er aktuelle i dag? (s. 74)
2.5
Hvile reguleringer gjelder? (s. 75)
2.6
Om nedbryting av ozonlaget (s. 76)
2.7
Global oppvarminspotensial - GWP (s. 77-80)
2.8
Hvor miljøfarlige er gassene? (s. 80-81)
2.9
Reguleringer for kuldemedier (s. 82-89)
2.10
Forskrift om særavgifter (s. 90-91)
2.11
Produktforskriften - Den reviderte Fgass-forordningen (EU) 517/2014 (s. 92-108)
2.12
Minimumskrav sertifisering (s. 108-111)
2.13
(EU) 2015/2067, Minimumskrav til sertifisering, minstekrav til ferdigheter og kunnskaper (s. 112-113)
2.14
Hvordan foregår eksamen? (s. 114)
2.15
Forordningen (EU) nr. 517/2014 - Artikkel 11, 12 og 13 (s. 115-118)
Inngrep i anlegget
Expand sub pages Kapittel
3.1
Tømming av anlegg (s. 119-222)
3.2
Tømmeaggregatets virkemåte (s. 123-134)
3.3
Dokumentasjon av aktivitet og kulemedieregnskap (s. 135-137)
3.4
Transport av kuldemedium (s. 138-141)
3.5
Farlig avfall (s. 142-143)
3.6
Kontroll av kuldemediets renhet (s. 144-148)
3.7
Reparasjon av anlegget (s. 149)
3.8
Legge, sveise/hardlodde og klamre rørene (s. 150-156)
3.9
Utføring av prøver go vakuumering (s. 157-160)
3.10
Tetthetsprøve og vakuumering (s. 161-172)
Igangkjøring av anlegg
Expand sub pages Kapittel
4.1
Installere, igangkjøre og vedlikeholde kuldeanlegg (s. 173-180)
4.2
Kontroll av væskefylling og av prosessen i h.logp diagrammet (s. 181-182)
4.3
Installere, igangkjøre og vedlikeholde termostatiske eksp.ventiler og andre komponenter (s. 183-192)
4.4
Kontroll og innstillinger på anlegget i forbindelse med oppstart (s. 193-199)
4.5
Innstilling av fordampertrykksregulator (s. 200-207)
Lekkasjekontroll
Expand sub pages Kapittel
5.1
Fgass-forordningen og lekkasjekontroll (s. 208-211)
5.2
Hovedpunkter i lekkasjekontroll (s. 212-221)
5.3
Direkte kontrollmetoder (s. 222-228)
Relevante teknologier som erstatter eller minsker anvendelsen av Fgasser
Expand sub pages Kapittel
6.1
Alternative kuldemedier og systemløsninger (s. 229-236)
6.2
Relevante sikkerhetsforskrifter og standarder (s. 237-240)
6.3
Hvordan bestemme risikokategorien for det ferdige anlegget? (s. 241-248)
6.4
Mer om relevant lovgivning (s. 249-252)
6.5
Oppsummering av HMS-forhold på grunn av trykk (s. 253-257)
6.6
Klassifisering og soneinndeling av eksplosjonsfarlige områder (s. 258-259)
6.7
Vernetiltak mot eksplosjoner (s. 260-263)
6.8
Relevante systemløsninger for å minske mengden av fluorholdige drivhusgasser og øke energieffektiviteten (s. 264-273)
Sentrale tema i forbindelse med sertifikat i kategori 2
Expand sub pages Kapittel
7.1
Introduksjon (s. 274)
7.2
Grunnleggende ISO-standardenheter (s. 276)
7.3
Kuldesystemenes grunnleggende teori og termodynamikk (s. 277-288)
7.4
Montasje av en varmepumpe (s. 289-293)
7.5
Kontroll av en varmepumpe ved igangkjøring etter en reparasjon (s. 294-296)
7.6
Krav for sertifisering kategori 2 (s. 297-299)
Vedlegg
Expand sub pages Kapittel
8.1
Vedlegg - Produktforskriften (s. 300-302)
8.2
Vedlegg - Fgass-forordningen (s. 303-320)
8.3
Forordning (EF) nr. 1516/2007 (s. 321-327)
8.4
Utdrag av Forordning (EU) nr. 2015/2067 om sertifisering vedr kjøleanlegg (s. 328-331)
8.5
Utdrag av Forordning (EU) nr. 2015/2068 om merking av produkter og utstyr (dansk) (s. 332-333)
8.6
Oppsummering over noen av de viktigste reguleringene (s. 334-336)
Øvingsoppgaver
Expand sub pages Kapittel
9.1
Øvingsoppgaver - del 1 (s. 338-343)
9.2
Øvingsoppgaver - del 2 (s. 344-352)
9.3
Øvingsoppgaver - del 3 (s. 353-363)
9.4
Øvingsoppgaver - del 4 (s. 363-367)
9.5
Praktisk øving på et Fgass-anlegg (s. 368)
9.6
Skjemaer, tabeller, formularer og diagrammer (s. 369-386)
9.7
Svar på øvingsoppgaver (s. 387)
Praktisk kuldeteknikk
Expand sub pages Publikasjon 1
Grunnleggende målesystem
Expand sub pages Kapittel
1.1
Grunnleggende målesystem
Varmelære
Expand sub pages Kapittel
2.1
Temperatur
2.2
Varmeenergi - varmestrøm
2.3
Aggregattilstander
2.4
Varmeoverføring
2.5
Oppvarming – nedkjøling
2.6
Smelting – størkning
2.7
Fordampning – kondensering
2.8
Varmeytelse - kuldeytelse
2.9
Blandinger
2.10
Kjøling av vann med is
2.11
Kaldtvannsanlegg
2.12
Oppgaver i varmelære
Beregning av kuldeanlegg
Expand sub pages Kapittel
3.1
Beregning av kuldeanlegg
3.2
Varebelastning
3.3
Frysing
3.4
Modningsvarme
3.5
Oppgaver i varmebelastning
Isolasjon
Expand sub pages Kapittel
4.1
Isolasjon
4.2
Varmemotstand (varmeisolans)
4.3
Varmemotstand (varmeovergangsisolans)
4.4
Varmegjennomgangskoeffisient (U-verdi)
4.5
Temperaturfall
4.6
Prefabrikerte isolasjonspaneler
4.7
Utjevningsventil
4.8
Oppgaver isolasjon
Klimateknikk
Expand sub pages Kapittel
5.1
Klimateknikk
5.2
Bruk av h-x diagram
5.3
Blanding av luft
5.4
Oppgaver i klimateknik
Bruk av beregningskjema
Expand sub pages Kapittel
6.1
Bruk av beregningskjema
Kuldeteknisk anlegg
Expand sub pages Kapittel
7.1
Kuldeteknisk anlegg - komponenter
7.2
Bruksområder
7.3
Kuldemedier
7.5
Global oppvarming
7.6
Norsk Standard
7.7
Tegneeksempel
Kuldetekniske diagrammer
Expand sub pages Kapittel
8.1
Kuldetekniske diagrammer
8.2
Kretsprosess – Modellprosess
8.3
Absolutt trykk – overtrykk
8.4
Spesifikt volum
8.5
Effektfaktor for kuldeanlegg og varmepumpe
8.6
Oppgaver i kuldeteknikk
Praktisk kuldeteknisk kretsprosess
Expand sub pages Kapittel
9.1
Praktisk kuldeteknisk kretsprosess
9.2
Overhetet damp
9.3
Trykk i væsker
9.4
Underkjølt væske
9.5
Underkjølt væske – overhetet damp
9.6
Trykktap i sugeledningen
9.7
Sugegassvarmeveksler
9.8
Et komplett anlegg
9.9
Isentropisk virkningsgrad
9.10
Leveringsgrad (Volumetrisk virkningsgrad)
9.11
Kompressorytelse – fordamperytelse
9.12
Temperaturglidning – et fenomen med noen nye kuldemedier
9.13
Oppgaver i kuldeteknikk
Strupeventil
Expand sub pages Kapittel
10.1
Strupeventil
10.2
Håndreguleringsventil
10.3
Automatisk strupeventil og kapillarrør
10.4
Termisk strupeventil
10.5
Fyllingen i termodelen
10.6
MOP ventil med begrenset fylling
10.7
Elektronisk styrt strupeventil
10.8
Flottører
Kuldeteknisk automatikk
Expand sub pages Kapittel
11.1
Fordampertrykksregulatoren
11.2
Kombinert anlegg
11.3
Sugetrykkregulatoren
11.4
Varmgassomløpsregulator
11.5
Termisk innsprøytingsventil
11.6
Kondensatortrykksregulator
11.7
Sikkerhetsventiler
11.8
Bruk av reguleringsteknisk automatikk
Fordamper
Expand sub pages Kapittel
12.1
Fordamper
12.2
Glattrørsfordampere
12.3
Kompakte fordampere
12.4
Fordamperteori
12.5
Utnytting av fordamperflaten
12.6
Valg av fordamper
12.7
Indirekte kjøling
12.8
Friksjon i væsker og gasser
12.9
Blandingsforhold for varme-/kuldebærer
12.10
Avriming
Kondensator
Expand sub pages Kapittel
13.1
Kondensator
13.2
Luftkjølt kondensator
13.3
Fordunstningskondensator
13.4
Kjøletårn
13.5
Legionella
13.6
Tørrkjøler
13.7
Vannkjølt kondensator
13.8
Kondensatorens varmeytelse
13.9
Væsketank
Kompressor
Expand sub pages Kapittel
14.1
Kompressor
14.2
Skruekompressor
14.3
Valg av kompressoraggregat
14.4
Balansediagram for fordamper - kompressor
14.5
Beregningsskjema for kuldeanlegg
Totrinnsanlegg
Expand sub pages Kapittel
15.1
Totrinnsanlegg
15.2
Mellomkjøler (trykkgassvarmeveksler)
15.3
Kompressorer
15.4
Kaskadeanlegg
15.5
Economizer
15.6
Beregning av to-trinnsanlegg
Olje i kuldeanlegget
Expand sub pages Kapittel
16.1
Olje i kuldeanlegget
16.2
Trykkgasstemperatur/oljetype
16.3
Oljeutskiller
16.4
Oljevarmer
16.5
Oljekjøler
16.6
Skifting og etterfylling av olje
16.7
Oljeutligning
16.8
Sugegassakkumulator
16.9
Oljeretur fra væskefylt fordamper
16.10
Avriming av væskefylte anlegg
16.11
Automatisk varmgassavriming
16.12
Oljeretur på ammoniakkanlegg
16.13
Luft i anlegget
16.14
Luftskiller
Montering av kuldeanlegg
Expand sub pages Kapittel
17.1
Vakuumtørking
17.2
Seglass med fuktighetsindikator
17.3
Tørkemiddel
17.4
Rørlegging
17.5
Fylling av kuldemedium
Spesielle kuldetekniske anlegg
Expand sub pages Kapittel
18.1
RSW - tankkjøling
18.2
Varmepumpe
18.3
Lufttørker
18.4
Transport av LPG gasser
18.5
R 744 – Karbondioksid – CO2
18.6
Totrinnsanlegg og anlegg for indirekte kjøling med naturlige kuldemedier
18.7
NS-EN 1861 Kuldetekniske symboler
Oppgaver i kuldeteknikk
Expand sub pages Kapittel
19.1
Oppgaver i kuldeteknikk
19.2
Ukeoppgaver i kuldeteknikk
19.3
Eksamensoppgaver
Diagrammer og tabeller
Expand sub pages Kapittel
20.1
Diagrammer og tabeller
RHB digitalt tillegg
Expand sub pages Publikasjon 1
Sanitaerinstallasjoner
Expand sub pages Kapittel
310.01
Vannkvalitet (REVIDERT: 2019-UTGAVEN)
Ledningsnett - sanitær
Expand sub pages Kapittel
312.42
Avløp fra utstyr - uten lufting
312.43
Avløp fra utstyr med lufting
312.72
Sirkulasjonsledninger 2
Armatur - sanitær
Expand sub pages Kapittel
314.11
Berøringsfrie armaturer (ENDRET: 2019-UTGAVEN)
314.21
Utette armaturer - lekkasjemengder
Utstyr - sanitær
Expand sub pages Kapittel
315.11
Vakuumtoaletter
315.81
Avfallskverner
Utstyr - varmanalegg
Expand sub pages Kapittel
325.03
Energimerking av bygg - 1
325.04
Energimerking av bygg - 2
325.05
Energimerking av bygg - 3
325.06
Energimåling for anlegg med varmepumper
325.23
Energibruk varmeprodukter
325.51
Røykgassanalyse (ENDRET: 2019-UTGAVE)
325.52
Lagring av olje utendørs
325.53
Lagring av olje innendørs (ENDRET: 2019-UTGAVEN)
325.61
Røykkanaler
Andre anleggstyper og branngjennomføringer
Expand sub pages Kapittel
345.10
Forskrift om trykkpåkjent utstyr (FTPU) eller Pressure Equipment Directive (PED)
Utvendig sanitæranlegg
Expand sub pages Kapittel
731.30
Nivellering 1 - utstyr
731.31
Nivellering 2 - høydemålinger
Bedrift, helse, miljø, og sikkerhet
Expand sub pages Kapittel
910.10
Sikker jobbanalyse
910.11
Entrepriseformer
910.13
Aktuelle lover, forskrifter og veiledninger
910.19
Varme arbeider
910.26
Varslingsskjema
910.29
Jobbdokumentasjon og samsvarserklæring
910.41
Kvalitetssikring - definisjoner og terminologi
910.43
Varer levert av kunden (REVIDERT – 2018-versjon)
910.45
Kundens overprøving av faglig råd
910.46
TFM-merkesystem for bygninger
910.57
Reparasjons- og rehabiliteringsarbeider (REVIDERT – 2018-versjon)
Føringsveier, rør og vannskadesikring
Expand sub pages Kapittel
940.41
Definisjoner av byggtyper – boliger (NYTT 2018)
Sanitærteknikk - Prosjektering og utførelse av sanitærinstallasjoner i bygg
Expand sub pages Publikasjon 1
Innholdsfortegnelse
Expand sub pages Kapittel
0.1
Forordet
0.2
Kildehenvisninger
Introduksjon til VA- og sanitærteknikkfaget
Expand sub pages Kapittel
1.1
Sanitærteknikkens historie
1.2
Lovverk og utdanning
1.3
Definisjoner og terminologi
1.4
Utvendige sanitæranlegg
1.5
Innvendige sanitæranlegg
1.6
Prosjektering av VA-anlegg
1.7
Prosjektering av sanitæranlegg i bygg
1.8
Sanitærinstallasjonens egenskaper og ytelser
1.9
Vannkvalitet
1.10
Vannkapasitet
1.11
Vannskader
1.12
Kvalitetssikring, dokumentasjon og kontrollrutiner
1.13
BIM
1.14
Dokumentasjon av produkter
VA-anlegg
Expand sub pages Kapittel
2.1
Hva omfatter betegnelsen VA-anlegg
2.2
Krav og normer
2.3
Distribusjonsnettet
2.4
Hovedvannledningen
2.5
Hovedspillvannsledningen
2.6
Hovedovervannsledningen
2.7
Lokal håndtering av overvann
2.8
Fellesledninger
2.9
Grøftefrie installasjoner
2.10
Rørinspeksjon
Stikkledninger
Expand sub pages Kapittel
3.1
Innledning
3.2
Krav og normer
3.3
Vannledninger
3.4
Spillvannsledninger
3.5
Overvannsledninger
3.6
Kummer
3.7
Pumpeløsninger
Grøfter
Vannledninger i bygg
Expand sub pages Kapittel
4.1
Krav og normer
4.2
Vanninntaket
4.3
Vannmengder
4.4
Vanntrykk
4.5
Føringsveier
4.6
Vannskadesikre installasjoner
4.7
Rørtyper
4.8
Skjøtemetoder
4.9
Isolering av vannledninger
4.10
Termisk isolering
4.11
Klamring av rør
4.12
Forenklet rørdimensjonering
4.13
Strømningsteknisk grunnlag og trykktapsdimensjonering
4.14
Legionella
4.15
Ventetider på kaldt- og varmtvann
4.16
Korrosjon
4.17
Vannforbruk
4.18
Vannbesparende tiltak
Spillvann og overvann i bygg
Expand sub pages Kapittel
5.1
Krav og normer
5.2
Betegnelser og føringsveier
5.3
Rørtyper, deler og systemer
5.4
Vannlåser
5.5
Ventilasjonsledninger (luftledninger)
5.6
Forenklet dimensjonering
5.7
Strømningsteknisk grunnlag
5.8
Klamring
5.9
Drenering
5.10
Innvendige taknedløp
5.11
Frost, støy, brann- og kondensisolering
5.12
Korrosjon
Utstyr og armaturer
Expand sub pages Kapittel
6.1
Tilbakeslagssikring av vann og avløp
6.2
Armaturer og ventiler
6.3
Sanitærutstyr
6.4
Utskillere
Vannvarmere
Expand sub pages Kapittel
7.1
Historisk tilbakeblikk
7.2
Innføring i og oppbygning av dagens varmtvannsberedere
7.3
Overordnede hensyn for varmtvannsberedere
7.4
Varianter og systemløsninger
7.5
Dimensjonering av varmtvannsberedere
Våtrom
Expand sub pages Kapittel
8.1
Krav og normer
8.2
Oppbygging av bad
8.3
Byggematerialer
8.4
Fall til sluk
8.5
Membransystemer - tetting rundt rør og sluk
8.6
Plassering av sanitærutstyr
Øvrige rom
Expand sub pages Kapittel
9.1
Krav og normer
9.2
Kjøkken
9.3
Toalettrom
9.4
Tekniske rom
9.5
Våtromskabiner
Brannsikring og brannslokking
Expand sub pages Kapittel
10.1
Generelt om brannsikring og kobling mot sanitæranlegg
10.2
Krav, normer og definisjoner
10.3
Manuell slokking
10.4
Sprinkleranlegg
10.5
Rørgjennomføring i brannskiller
Gråvannsvarmegjenvinning
Expand sub pages Kapittel
11.0
Generelt
11.1
Passiv gråvannsvarmegjenvinning
11.2
Aktiv gråvannsvarmegjenvinning
11.3
Kombinert aktiv og passiv gråvannsvarmegjenvinning
Sanitæranlegg i spredt bebyggelse
Expand sub pages Kapittel
12.1
Innledning
12.2
Ulike anleggstyper for rensing og utslipp av avløpsvann
12.3
Forbruksvann i spredtbebygde områder
Spesielle sanitæranlegg
Expand sub pages Kapittel
13.1
Innledning
13.2
Fontener
13.3
Vanningsanlegg
13.4
Husdyranlegg
13.5
Nødutstyr
13.6
Bilvaskeanlegg
13.7
Høye bygg
Støy fra sanitærinstallasjoner
Expand sub pages Kapittel
14.1
Introduksjon til lyd- og støyfaget
14.2
Lydteori
14.3
Lydutbredelse innendørs
14.4
Krav og normer til lyd og støy fra sanitæranlegg
14.5
Støy fra vanninstallasjoner
14.6
Støy fra avløpsledninger
14.7
Støyisolering av avløpsrør
Tegninger og symboler
Expand sub pages Kapittel
15.1
Tegnesymboler for sanitæranlegg
15.2
Tegninger for sanitæranlegg
15.3
Tegnesymboler for VA-anlegg
15.4
Tegninger for VA-anlegg
15.5
BIM
Drift, vedlikehold og merking av sanitærinstallasjoner
Expand sub pages Kapittel
16.1
Levetid
16.2
Dokumentasjon, drift- og vedlikeholdsinstruks
16.3
Røinspeksjon og rørfornying
16.4
Huseiers huskeliste
16.5
Byggdrifterens oppgaver
16.6
Merking
16.7
Lekkasjekostnader
Stensaas, Leif I. Ventilasjonsteknikk Del I - Grunnlaget og systemer (1998)
Expand sub pages Publikasjon 1
Forord og innledning
Expand sub pages Kapittel
1.1
Forord og innledning
Varmeteknisk grunnlag
Expand sub pages Kapittel
2.0
Innhold
2.1
Fuktig luft
2.2
Fuktighetsgrad
2.3
Fordunstning
Fysiologisk grunnlag
Expand sub pages Kapittel
3.0
Innhold
3.1
Generelt
3.2
Kroppens varmebalanse
3.3
Termiske behagelighetskriterier
3.4
Behovet for ventilasjon
3.5
Helsemessige og økonomiske konsekvenser av inneklimaet
Strømningsteknisk grunnlag
Expand sub pages Kapittel
4.0
Innhold
4.1
Kontinuitetsligningen
4.2
Bernouills ligning
4.3
Laminær og turbulent luftstrøm
4.4
Trykktap
Hovedtypene i ventilasjonsanlegg
Expand sub pages Kapittel
5.0
Innhold
5.1
Oppdriftsanlegg
5.2
Viftedrevne anlegg
Dimensjonering av klimaanlegg
Expand sub pages Kapittel
6.0
Innhold
6.1
Generelt
6.2
Dimensjonerende utetilstand
6.3
Varighetskurver
6.4
Dimensjonerende romklima
6.5
Varme- og kjølebelastning
6.6
Forenklet beregning av romtemperaturen
Lufttilførsel og avtrekk
Expand sub pages Kapittel
7.0
Innhold
7.1
Innledning
7.2
Luftvekslings- og ventilasjonseffektivitet/-indeks
7.3
Fortrengningsventilasjon
7.4
Stråleventilasjon
7.5
Maksimal kjøleeffekt
7.6
Innblåsning gj. spalteformede åpninger
7.7
Avtrekk gj. spalteformede åpninger
7.8
Utførte forsøk med luftinnblåsning
7.9
Strømningsforhold omkring avtrekksåpninger
Lyd og lyddemping i ventilasjonsanlegg
Expand sub pages Kapittel
Innhold
8.1
Grunnbegrep
8.2
Romakustikk
8.3
Lydkriterier, lydmåling
8.4
Lydkilder i ventilasjonsanlegg
8.5
Lyddempning
8.6
Lydisolasjon i og mellom rom
8.7
Vibrasjonsisolering
8.8
Lydberegninger
Kanaler
Expand sub pages Kapittel
9.0
Innhold
9.1
Kanaltverrsnittets utforming
9.2
Kanaldimensjonering
9.3
Kanalmaterialer, skjøtemetoder, tetthet
9.4
Ventilasjonssystemers tetthet
9.5
Kanalisolasjon
9.6
Branntekniske krav
Litteraturliste
Expand sub pages Kapittel
Litteraturliste
Tekniske bestemmelser - Standard abonnementsvilkår for vann og avløp
Expand sub pages Publikasjon 1
Forord og innledning
Expand sub pages Kapittel
0.1
Forord
0.2
Innledning
Generelt
Expand sub pages Kapittel
1
Generelt
Vannforsyning
Expand sub pages Kapittel
2.1
Dimensjonering
2.2
Tettehetskrav
2.3
Utførelse
2.4
Sikring mot forurensning
2.5
Stengeventiler
2.6
Vannmålere
2.7
Varmtvann
2.8
Energiøkonomisering
Avløp
Expand sub pages Kapittel
3.1
Dimensjonering
3.2
Utførelse
3.3
Beskyttelse mot luktproblemer
3.4
Beskyttelse mot slamavleiring
3.5
Beskyttelse mot tilbakeslag
3.6
Renovering av avløpsledninger
3.7
Uskillere og renseanlegg
Vedlegg
Expand sub pages Kapittel
4
Vedlegg
Kuldehåndboka 2007
Expand sub pages Publikasjon 1
Last ned Kuldehåndboka 2007
Expand sub pages Kapittel
Last ned Kuldehåndboka 2007
Veileder for vannbehandling i lukkede energianlegg
Expand sub pages Publikasjon 1
Last ned Veileder for vannbehandling i lukkede energianlegg
Expand sub pages Kapittel
Last ned Veileder for vannbehandling i lukkede energianlegg
Klimadata M21
Expand sub pages Publikasjon 1
Last ned Klimadata M21
Expand sub pages Kapittel
Last ned Klimadata M21
Arbeidsdokument
Expand sub pages Publikasjon 1
Introduction to ventilation
Expand sub pages Kapittel
1.0
Introduction
1.1
Brief history of ventilation
1.2
The different components in ventilation - a simple overview
1.3
Fresh air intake and air exhaust outlets
1.4
Air handling unit
1.5
Filter
1.6
Ducts
1.7
Dampers
1.8
Fire dampers
1.9
Silencers
1.10
Supply extract and transfer air devices
1.11
The occupied zone
1.12
Active cooling
1.13
Fans
1.14
Air curtains
1.15
Insulation
1.16
Automation
1.17
Units
Indoor climate
Expand sub pages Kapittel
2.0
Introduction
2.1
Indoor environment requirements
2.1.1
The Norwegian Labour Inspection Authority's guidance 444
2.1.2
“Regulations on technical requirements for building works” ("TEK17")
2.1.3
NS-EN ISO 7730
2.1.4
NS-EN 16798-1:2019
2.2
Thermal environment - the body's heat balance
2.2.1
The metabolism
2.2.2
Clothing
2.2.3
Mean radiant temperature
2.2.4
Operative temperature
2.2.5
The heat balance equation
2.2.6
The comfort diagram
2.3
Comfort criteria
2.3.1
PVM-index
2.3.2
PPD-index
2.4
Local thermal discomfort
2.4.1
Vertical temperature gradient
2.4.2
Asymmetric thermal radiation
2.4.3
Draught
2.4.4
The significance of the humidity level
2.5
Consequences of poor indoor climate
2.5.1
Health problems
2.5.2
Sick Building Syndrome (SBS)
2.5.3
Reduced work efficiency
2.6
Indoor clima studies
Humid air
Expand sub pages Kapittel
3.0
Introduction
3.1
Demand specifications related to humidity content
3.2
Diagram for humid air - The Mollier diagram
3.3
Equations for humid air
3.3.1
The equation of state
3.3.2
Absolute humidity
3.3.3
Degree of saturation and relative humidity
3.3.4
Calculation of relative humidity and dew point temperature
3.3.5
The specific mass and density of humid air
3.3.6
The enthalpy of humid air
3.4
The build-up of the Mollier diagram
3.4.1
The unsaturated area of the h-x diagram
3.4.2
The saturated area of the h-x diagram
3.4.3
The h-x diagram with other total pressures
3.4.4
The boundary scale in the h-x diagram, dh/dx
3.5
Process changes in the h-x diagram
3.5.1
Mixture of two air volumes
3.5.2
Cooling of air
3.5.3
Humidification
3.5.4
Dehumidification
Varmeoverføring
Expand sub pages Kapittel
4
Heat transfer
4.1
Heat recovery - an overview
4.1.1
Temperature efficiency, annual average temperature efficiency and annual energy efficiency
4.1.1.1
Temperature efficiency
4.1.1.2
“Dry efficiency” and mean annual temperature efficiency
4.1.1.3
Annual energy efficiency
4.2
Heating and cooling coils, an overview
4.2.1
Various connections
4.3
Basics of heat transfer
4.4
Heating coils and cooling coils
4.4.1
Calculation of heat transfer
4.4.2
Flow patterns
4.4.2.1
Counter flow coupling
4.4.2.2
Parallel-flow coupling
4.4.2.3
Cross flow coupling
4.4.2.4
Heating and cooling coil in a heat pump process
4.4.3
Calculation of heat transfer with the ε,NTU method
4.4.4
Heat transfer on moist surfaces
4.5
Heat recovery units
4.5.1
Heat pumps
4.5.2
Rotary heat recovery exchanger
4.5.2.1
Various types of rotary heat exchangers
4.5.3
Cassette exchanger
4.5.4
Plate heat exchanger
4.5.4.1
Cross flow plate heat exchanger
4.5.4.2
Counter flow plate heat exchanger
4.5.5
Run-around heat recovery exchanger
4.6
Chilled beams and adiabatic cooling
4.6.1
Chilled beam
4.6.1.1
Passive cooling coil with chilled beam (with natural convection)
4.6.1.2
Active chilled beam
4.6.2
Adiabatic cooling
Basic fluid mechanics
Expand sub pages Kapittel
5
Basic fluid mechanics
5.1
The continuity equation
5.2
Bernoulli’s equation
5.2.1
Pressure measurements
5.3
Pressure changes in the ducting system
5.3.1
Friction losses and pressure loss gradient diagram
5.3.1.1
Hydraulic diameter
5.3.1.2
Equivalent diameter
5.3.2
Impact or local losses
5.4
Fluid mechanics with equations
5.4.1
Reynolds numbers
5.4.1.2
Kinematic viscosity
5.4.2
Laminar and turbulent airflow
5.4.3
Friction loss with equations
5.4.3.1
Moody's diagram
5.4.4
Impact loss (Minor loss)
5.4.4.1
Cross-sectional expansion
5.4.4.2
Cross-sectional reduction
5.4.4.3
Bend
5.4.4.4
Branching
5.4.4.5
Other minor losses
5.5
Pressure drop calculation and balancing
5.5.1
Pressure drop calculation and balancing without optimization
5.5.2
Pressure drop calculation and balancing with optimization
Airflow requirements
Expand sub pages Kapittel
6
Airflow requirements
6.1
Minimum requirements in the building technical regulations TEK17
6.1.1
§ 13-2 Ventilation in residential buildings
6.1.2
§ 13-3 Ventilation in construction work for the public and work buildings
6.1.3
NS-EN 15251
6.2
Guidance 444
6.3
The need for ventilation for persons and materials
6.3.1
Comfort criteria - perceived air quality
6.3.1.1
Airflow rates based on olf and decipol
6.3.1.2
Airflow rates based on CO₂
6.3.2
Ventilation for health
6.3.2.1
Regulations concerning Action and Limit Values
6.3.2.2
Ventilation of the garage
6.3.3
Emissions - volatile organic compounds (VOC)
6.3.3.1
Low-emitting building constructions
6.3.4
Non-stationary conditions
6.3.5
Air exchange
6.4
Air conditioning
6.4.1
Control of temperature
6.4.1.1
Heat loss due to transmission
6.4.1.2
Heat loss due to infiltration
6.4.1.3
Heat loss due to ventilation
6.4.1.4
Heat gains due to internal loads
6.4.1.5
Heat gain from occupants
6.4.1.6
Heat gain from the sun
6.4.1.7
Heat storage
6.4.1.8
Simplified method for calculating power demand for cooling
6.4.2
Control on the humidity level
Main types of ventilation systems
Expand sub pages Kapittel
7
Main types of ventilation systems
7.1
General introduction
7.2
Natural ventilation
7.2.1
Thermal buoyancy
7.2.1.1
Thermal buoyancy with ductwork
7.2.1.2
Thermal buoyancy in tall buildings
7.2.1.3
Gates and doorways
7.2.2
Wind pressure
7.2.2.1
The shape factor of the building
7.2.2.2
Wind speed
7.2.2.3
Terrain roughness
7.3
Extract ventilation
7.3.1
Pressure conditions for exhaust ventilation
7.3.2
Fresh air outlets
7.3.2.1
Flap vents
7.3.2.2
Trickle vents
7.3.2.3
Fresh air vents with integrated heating
7.3.3
Exhaust air heat pump
7.3.3.1
Annual average coefficient of performance
7.3.3.2
Annual average distribution efficiency
7.3.3.3
Annual average room efficiency
7.4
Balanced ventilation
7.4.1
Ventilation of single-unit dwellings and row houses
7.4.2
Ventilation of apartments
7.4.3
Ventilation in commercial buildings
7.5
Hybrid ventilation
7.5.1
System solution
7.5.2
Automatic window opening
Airflow patterns in rooms (under construction)
Expand sub pages Kapittel
8
Airflow patterns in rooms
8.1
Ventilation principles
8.1.1
The occupied zone
8.1.2
Ventilation efficiency
8.1.2.1
Air change rate (n)
8.1.2.2
Ventilation efficiency (εv)
8.1.2.3
Temperature efficiency (εvt)
8.1.3
Mixing ventilation
8.1.3.1
Air throw length
8.1.3.2
The Coanda effect
8.1.3.3
Maximum penetration length
8.1.3.4
Blackening around the supply air terminal device
8.1.3.5
Supply air with excess temperature
8.1.3.6
Supply air terminal devices for mixing ventilation
8.1.4
Displacement ventilation
8.1.4.1
Stratification layer height
8.1.4.2
Near zone
8.1.4.3
Temperature gradient
8.1.4.4
Supply air devices for displacement ventilation
8.1.5
Extract devices
8.1.5.1
Extract devices for mixing ventilation
8.1.5.2
Extract devices for displacement ventilation
8.1.5.3
Different types of extract devices
8.2
Ventilation effectiveness indices
8.2.1
The age of air
8.2.1.1
Piston flow
8.2.1.2
Tracer gas measurements
8.2.2
Air change efficiency (εa)
8.2.2.2
Fully mixed flow
8.2.2.3
Displacement flow
8.2.3
Local air change index (εaP)
8.2.4
Contaminant removal effectiveness (εc or εcoz)
8.2.5
Local air quality index (εcP)
8.3
Airflow patterns
8.3.1
Free horizontal isothermal air jet
8.3.1.1
Circular jet, approximately isothermal
8.3.1.2
Plane jet, approximately isothermal
8.3.1.3
Radial jet, approximately isothermal
8.3.1.4
Relation between throw lengths and different end velocities
8.3.2
Non-isothermal air jet
8.3.2.1
Archimedes number
8.3.2.2
Separation distance
8.3.2.3
Penetration length for a horizontal jet
8.3.2.4
Penetration curve
8.3.2.5
Vertical jets affected by thermal forces
8.3.3
Natural convection
8.3.3.1
Convection currents from heat sources in rooms without temperature gradient
8.3.3.2
Convection current from heat source in a room with temperature gradient
8.3.3.3
Vertical air movements from hot or cold surfaces
Sound and noise reduction in ventilation systems
Expand sub pages Kapittel
9
Sound and noise reduction in ventilation systems
9.1
Sound requirements in ventilation systems
9.1.1
Sound requirements in residential buildings
9.1.2
Sound requirements for offices
9.1.3
Sound pathways
9.2
What is sound?
9.2.1
Frequency
9.2.2
Sound intensity, sound power and sound pressure
9.2.3
Logarithmic scale and summation of sound
9.2.4
Adaptation to our hearing - A filter
9.2.4.1
A, C and Z filters
9.2.4.2
RC curves
9.3
Sound propagation indoors
9.3.1
Directional factor
9.3.2
Absorption factor
9.3.3
Reverberation time
9.3.4
Room constant and room attenuation
9.3.4.1
Sound level in large not sound attenuated rooms
9.3.4.2
Sound level in sound attenuated rooms
9.4
Sound propagation outdoors
9.5
Sound attenuation in the ventilation system
9.5.1
Silencers
9.5.1.1
Dissipative silencers
9.5.1.2
Active silencer
9.5.2
Sound attenuation at the end of the duct
9.5.2.1
Sound attenuation at end reflection
9.5.2.2
Internal attenuation in the terminal device
9.5.3
Sound attenuation in the ductwork
9.5.3.1
Sound attenuation in straight ducts without internal insulation
9.5.3.2
Sound attenuation in straight ducts with internal insulation
9.5.3.3
Sound attenuation in duct branches
9.5.3.4
Sound attenuation in bends
9.5.3.5
Sound attenuation in plenum chambers
9.5.3.6
Sound attenuation in other ventilation components
9.6
Sound generation in the ventilation system
9.6.1
Sound generation in a straight duct
9.6.2
Sound generation in bends and branches
9.6.3
Sound generation in silencers
9.7
Sound documentation for ventilation components
9.7.1
Sound documentation for terminal devices
9.7.2
Sound documentation for damper
9.7.3
Sound documentation for fans and aggregates
9.8
Sound calculations
9.9
Sound transmission
9.9.1
The sound reduction factor
9.9.3
Flanking sound
9.9.3.1
Sound transmission through ducts without openings
9.9.4
Leakage
9.9.5
Sound transmission through the ductwork
9.9.6
Sound transmission through transfer grilles
9.10
Sound measurements
9.10.1
Indoor sound measurements
9.11
Vibrations
9.11.1
Vibration requirements
9.11.3
Vibration attenuation
9.12
Troubleshooting
9.12.1
Initial measurements
9.12.2
Sound problems
9.12.3
Vibration problems
Energy use in buildings
Expand sub pages Kapittel
10
Energy use in buildings
10.1
Regulatory requirements for energy use
10.1.1
NS 3031 Calculation of buildings energy performance
10.1.2
Net energy need and delivered energy
10.1.3
Energy labelling and energy assessment
10.1.3.1
Energy labelling
10.1.3.2
Energy grade
10.1.3.3
Heating grade
10.1.4
Energy assessment
10.2
Energy for fan operation
10.2.1
The proportional laws
10.2.2
The operating point of the fan and the fan system curve
10.2.2.1
Change in air flow rate and pressure
10.2.2.2
System curve with pressure control
10.2.3
SFP value
10.2.3.1
Different SFP values to be documented
10.3
Energy need for heating in buildings
10.3.1
Degree days and the Degree Day Method
10.3.2
Duration diagrams
10.3.2.1
Energy need for heating without heat recovery
10.3.2.2
Energy need for heating with heat recovery
10.3.2.3
Humidity duration diagram
10.4
Energy need for cooling in buildings
10.4.1
Enthalpy duration diagram
10.4.2
Cooling recovery
10.5
Power demand duration curve
10.6
LCC - Life Cycle Cost
10.6.1
Net Present Value
10.6.2
The annual cost method (annuity method)
10.6.3
Internal rate of return
10.6.4
Payback Time
10.7
Control of energy consumption
10.7.1
Energy signature (ET curve)
10.7.2
Degree days
10.7.3
Average temperatures
10.7.4
Dynamic calculation - advanced method
Demand-controlled ventilation
Expand sub pages Kapittel
11
Demand-controlled ventilation
11.1
An introduction
11.1.1
Demand-controlled and occupant-controlled ventilation
11.1.2
Spare capacity
11.1.3
Pitfalls and common mistakes
11.1.4
Full airflow rate in case of fire
11.2
Energy saving with demand-controlled ventilation
11.2.1
Simultaneity
11.2.2
Fan energy savings
11.2.3
Energy saving for the reheating coil
11.2.4
Energy savings for space heating
11.3
Components in the ductwork
11.3.1
DCV damper
11.3.1.1
Adjustment of airflow rate
11.3.1.2
Distance to flow disturbances
11.3.1.3
Master/slave coupling compared to parallel coupling
11.3.2
DCV device (active supply air device)
11.3.3
Automatic mechanical CAV damper
11.3.4
Damper with actuator
11.3.5
Pressure-controlled zone
11.4
Control parameter in the room
11.4.1
Location of sensors
11.4.1.1
Sensor location for displacement ventilation
11.4.1.2
Sensor location with mixing ventilation
11.4.2
Motion detector
11.4.3
Temperature sensor
11.4.4
CO2 and temperature sensor
11.5
Selection of building automation principle
11.5.1
Lokalt regulert anlegg
11.5.2
Centrally controlled system
11.5.2.1
Management level (Building Automation System (BAS))
11.5.2.2
Automation level
11.5.2.3
Field level
11.5.2.4
Distributed intelligence
11.6
Selection of control principle for fans
11.6.1
Pressure-controlled system
11.6.1.1
Static pressure sensor near the air-handling unit
11.6.1.2
Static pressure sensor in the duct
11.6.1.3
Pressure control with zone damper
11.6.2
Optimally controlled system
11.6.2.1
Fan speed control based on damper angle
11.6.2.2
Damper angle control with zone damper
11.6.2.3
Optimization via pressure point adjustment
11.6.2.4
Active supply air devices
11.6.3
Mixing of variable and constant zones in the same ductwork
11.6.3.1
Pressure-controlled system and air supply from pressure-controlled duct
11.6.3.2
Automatic mechanical CAV damper to constant flow rate room
11.6.3.3
Pressure control of the zone
11.7
Design baseline and documentation
11.7.1
Functional description
11.7.2
Room form with tags and airflow rates
11.7.3
Topology chart
11.8
Functional testing at handover and performance testing
11.8.1
Start-up of a pressure-controlled system
11.8.1.1
Pressure-controlled system / zone without optimal function
Pressure-controlled system / zone with DCV damper and balancing damper
11.8.2
Performance test
11.8.2.1
Maximum simultaneity of the building
11.8.2.2
Minimum airflow rate in the building
11.8.2.3
How to change the set airflow rate
11.8.2.4
Test measurement of airflow rate
11.8.2.5
Spot check by third party inspection
Ducts
Expand sub pages Kapittel
12
Ducts
12.1
Air tightness
12.2
Round ducts
12.3
Rectangular ducts
12.3.1
Joining of rectangular ducts
12.4
Pressure drop
12.4.1
Pressure loss in ducts
12.4.2
Pressure loss over components
12.4.3
System characteristics
12.4.4
Fan characteristic and operating point
12.5
Material requirements
12.6
Cleanness
12.6.1
Check of cleanness
12.6.1.1
Gravimetric measurement
12.6.1.2
Film thickness
12.6.1.3
Optical measurement
12.6.2
Duct cleaning
12.6.2.1
Manual methods vacuuming and wiping
12.6.2.2
Rotating brushes
12.6.2.3
Compressed air
12.6.2.4
Dry ice
12.7
Hanging
12.8
Labelling
12.9
Planning the duct system
12.10
Duct design for CAV systems
12.10.1
Supply air ducts
12.10.1.1
Bahco's 1/3 method
12.10.1.2
The velocity method
12.10.1.3
Constant pressure drop method
12.10.1.4
Static pressure recovery method
12.10.1.5
Constant size
12.10.2
Extract ducts
12.11
Duct desig of demand-controlled systems
Inneklima, FDV og HMS i praksis
Expand sub pages Publikasjon 1
Intro
Expand sub pages Kapittel
Intro
Forord
Expand sub pages Kapittel
Forord
Om forfatterne
Innholdsfortegnelse
Expand sub pages Kapittel
Innholdsfortegnelse
1 Innledning
Expand sub pages Kapittel
Innledning
Klimagassutslipp og FDV
Internkontrollsystemet må brukes aktivt
Sentrale råd og utvalg
Eksempler på ressurser og bidragsytere i skolers inneklima-, HMS- og FDV-arbeid
2 Grunnleggende om FDV
Expand sub pages Kapittel
Grunnleggende om FDV
Organisering av FDV-arbeidet
Samhandling er nøkkelen til godt FDV-arbeid
Opplæring av brukere og brukermedvirkning
3. Utemiljøets innvirkning på inneklimaet
Expand sub pages Kapittel
Utemiljøets innvirkning på inneklimaet
Uteluftens betydning for inneluften
Noen erfaringer om utemiljøets betydning for inneklimaet
4. Inneklima i bygninger
Expand sub pages Kapittel
Inneklima i bygninger
Termisk miljø («Temperaturmiljø»)
Luftkvalitet
Luftbåren smitte
VOC (Volatile Organic Compounds eller “flyktige organiske forbindelser”)
Luftfuktighet
Om fukt og hvordan fuktskader kan oppstå
Akustikk og støy
Lys og stråling
Mekanisk miljø (inventar, innredning og utstyr)
5. Oppvarmings-løsninger
Expand sub pages Kapittel
Oppvarmings-løsninger
Elektriske ovner
Elektrisk gulvvarme
Elektrisk og vannbåren takvarme
Vannbårne varme, radiatorer
Vannbåren gulvvarme
Sjekkliste for elektrisk oppvarming
Sjekkliste for vannbåren oppvarming
6 Ventilasjonsløsninger
Expand sub pages Kapittel
Ventilasjonsløsninger
Naturlig ventilasjon
Lufting med bruk av vindu
Mekanisk avtrekksventilasjon
Mekanisk balansert ventilasjon
Hybrid ventilasjon
Prinsipper for ventilasjon av rom
Omrøringsventilasjon
Fortrengningsventilasjon
Komponenter i ventilasjonsanlegg
Vifter
Varmegjenvinnere
Lydfeller
Brannspjeld
Filter
Filterklasser etter ny og gammel standard
Luftinntak og plassering av dette
Behovsstyrt ventilasjon
Innregulering av ventilasjonsanlegg
Ofte finner man ulike ventilasjonsløsninger i samme bygning
7 Sjekklister for de ulike ventilasjonsprinsipper
Expand sub pages Kapittel
Sjekklister for de ulike ventilasjonsprinsipper
Sjekkliste for naturlig ventilasjon
Sjekkliste for lufting med vindu
Sjekkliste for mekanisk avtrekksventilasjon
Sjekkliste for mekanisk balansert ventilasjon
Sjekkliste for hybrid ventilasjon
8 Renhold og brukervirkning
Expand sub pages Kapittel
Renhold og brukervirkning
9 Hvordan vedlikehold og drift av bygningens uteområder påvirker inneklimaet
Expand sub pages Kapittel
Hvordan vedlikehold og drift av bygningens uteområder påvirker inneklimaet
Overvannshåndtering – forebyggende arbeid
Sjekkliste ved kartlegging av utemiljø og tomt
10 Bygningskroppen og håndtering av klimabelastninger
Expand sub pages Kapittel
Bygningskroppen og håndtering av klimabelastninger
11 Håndtering av fukt og muggsopp
Expand sub pages Kapittel
Håndtering av fukt og muggsopp
Eksempel på bruk av planskisser ved kartlegging av lekkasjer og fuktskader
12 Hygiene og sanitæranlegg
Expand sub pages Kapittel
Hygiene og sanitæranlegg
13 Håndtering av støykilder
Expand sub pages Kapittel
Håndtering av støykilder
14 Lysanlegg
Expand sub pages Kapittel
Lysanlegg
Fordeler og ulemper med nye og tidligere brukte lyskilder
15 Radon, stråling og elektromagnetisk
Expand sub pages Kapittel
Radon, stråling og elektromagnetisk
Elektromagnetiske felt
16 Medvirkning vil ofte bidra til bedre utforming og innredning
Expand sub pages Kapittel
Medvirkning vil ofte bidra til bedre utforming og innredning
17 Sentral driftskontroll
Expand sub pages Kapittel
Sentral driftskontroll
18 Bruk av sensorer for overvåkning av inneklima
Expand sub pages Kapittel
Bruk av sensorer for overvåkning av inneklima
Eksempel på praktisk bruk av data fra inneklimasensorene i skolens inneklimaarbeid
19 Sjekklister for bygging og ombygging
Expand sub pages Kapittel
Sjekklister for bygging og ombygging
Sjekkliste for ivaretakelse av inneklima og HMS ved bestilling av håndverkstjenester
20 Risikovurdering av inneklima og FDV
Expand sub pages Kapittel
Risikovurdering av inneklima og FDV
Mal for fotosafari som forarbeid til risikovurdering
21 Idébank for bedre inneklima
Expand sub pages Kapittel
Idébank for bedre inneklima
1. For varmt
2. For kaldt
3. Trekk/kaldt
4. Ventilasjon og lufting
5. Fukt og muggsopp
6. Lyd/støy
7. Belysning
8. Solinnstråling
9. Teknisk drift
10. Vedlikehold
11. Renhold
12. Brann/sikkerhet
13. Brukermedvirkning
Kilder
Expand sub pages Kapittel
Kildehenvisninger
Nyttige nettsider
Tilgjengelige ressurser og støttetjenester
Vedlegg
Expand sub pages Kapittel
Vedlegg
VEDLEGG A: Brukere som miljøfaktor
VEDLEGG B: Avkrysningsskjema for enkel
VEDLEGG C: Intervjuguide
VEDLEGG D: Flytskjema for bedre inneklima i klasserom